
Pronájem bytu 2+kk • 43 m²Podjavorinské, Praha - Chodov
Podjavorinské, Praha - ChodovMHD 2 minuty pěšky • VybavenoPoznámka k ceně
+ poplatky 2.149 Kč/měsíc/1 os. (každá další osoba za příplatek) + elektřina a plyn, které budou převedeny na nájemníkaMáte o nabídku zájem?
Ušetřete 18 490 Kč na provizi a komunikujte se všemi majiteli.
Vzhledem k vysokému zájmu o námi inzerované nemovitosti žádáme všechny vážné zájemce o prohlídky, aby nás pro rychlý a efektivní postup kontaktovali výhradně skrze formulář níže. Následně Vám emailem zašleme krátký osobní dotazník, ve kterém bude třeba uvést několik základních informací. Po vyplnění tohoto dotazníku obdržíte informaci o dalším postupu.
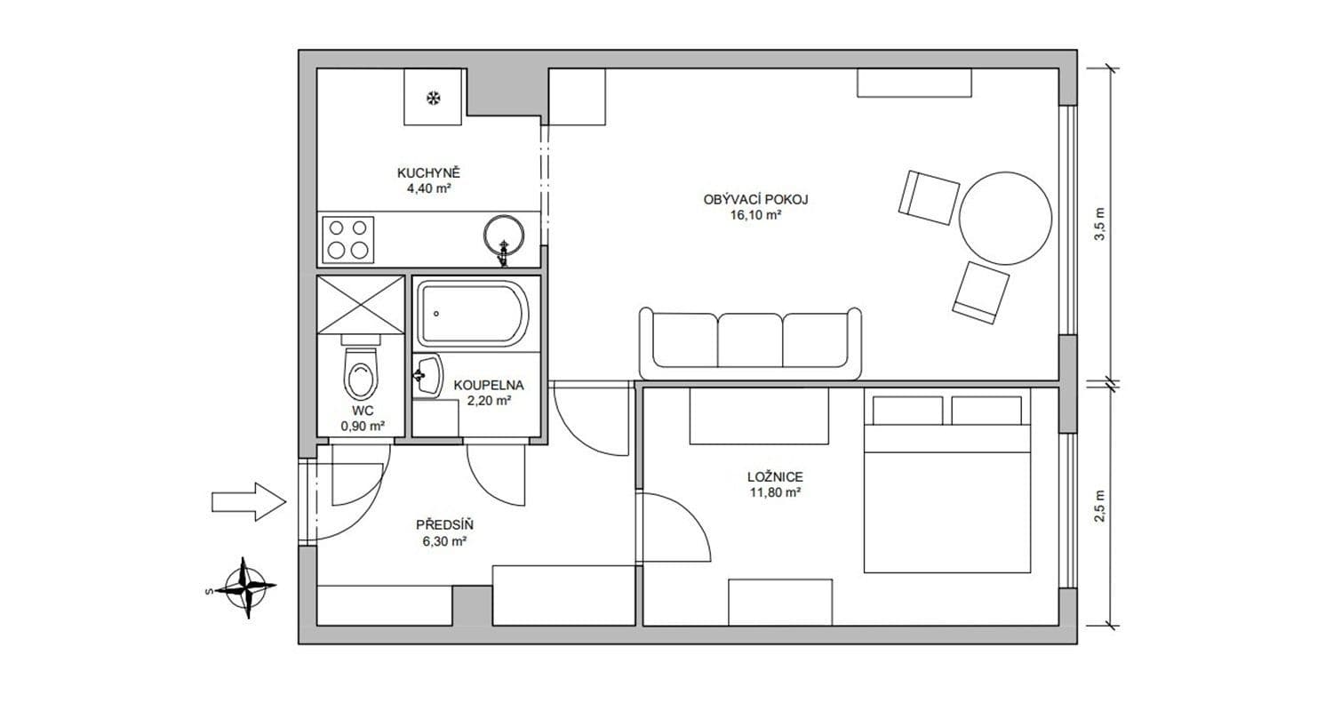
Nabízíme podnájem světlého bytu 2+kk, o celkové výměře 43 m², ve 3. nadzemním podlaží zrekonstruovaného panelového domu s výtahem, na Praze 4 – Chodov. Byt bude po dohodě k dispozici buď vybavený, nebo nezařízený, což Vám umožní přizpůsobit si interiér podle vlastních představ. Částečně zrekonstruovaná kuchyň nabízí kuchyňskou linku včetně základních spotřebičů, jako je lednice, sporák a digestoř. Koupelna disponuje vanou se sprchovým závěsem, zatímco toaleta je pro větší komfort oddělená. V bytě jsou navíc nově položeny laminátové podlahy. Součástí pronájmu je také uzamykatelná sklepní kóje (1,5 m²) v přízemí domu, která Vám poskytne dostatek úložného prostoru.
Nabídka je určena k dlouhodobému podnájmu a je po domluvě k nastěhování od 23.11.2025.
Dům se nachází jen 3 minuty pěšky od stanice metra C - Háje a v těsné blízkosti zeleně Centrálního parku. V docházkové vzdálenosti najdete také oblíbený lesopark a Hostivařskou přehradu, zatímco na opačné straně Vás přivítá krásný Milíčovský les. Veškerá občanská vybavenost je pohodlně dostupná pěšky – supermarkety Albert, Penny, Lidl, OC Háje, restaurace, školy, školky i poliklinika. Navíc jen 3 minuty od domu probíhají dvakrát týdně farmářské trhy, kde můžete nakoupit čerstvé lokální produkty.
Poznámka k ceně: Poplatky za služby vč. pojištění domácnosti a odpovědnosti činí 2.149 Kč/měsíc + elektřina a plyn, které budou převedeny na nájemníka. Při podpisu smlouvy nájemník hradí první nájemné, dále rezervaci a vratnou kauci ve výši jedné měsíční platby.
Pokud se nemůžete na prohlídku bytu dostavit osobně, je možné domluvit prohlídku formou videohovoru. V reakci na tento inzerát o sobě prosím uvádějte alespoň základní informace (počet osob, zaměstnání, od kdy hledáte bydlení, zda máte domácího mazlíčka). Děkujeme.
Parametry nemovitosti
| Dostupné od | 23. 11. 2025 |
|---|---|
| Konstrukce budovy | Panel |
| Vybaveno | Vybaveno |
| Číslo inzerátu | 961783 |
| PENB | C - Úsporná |
| Užitná plocha | 43 m² |
| Cena za jednotku | 430 Kč / m2 |
| Stav | Velmi dobrý |
|---|---|
| Dispozice | 2+kk |
| Podlaží | 2. podlaží |
| Vlastnictví | Osobní |
| Odpad | Veřejná kanalizace |
| Voda | Z veřejného zdroje |
Co tato nemovitost nabízí?
| MHD 2 minuty pěšky |
V okolí nemovitosti najdete
Poznámka k ceně
+ poplatky 2.149 Kč/měsíc/1 os. (každá další osoba za příplatek) + elektřina a plyn, které budou převedeny na nájemníkaMáte o nabídku zájem?
Ušetřete 18 490 Kč na provizi a komunikujte se všemi majiteli.
Stále hledáte to pravé?
Nastavte si hlídacího psa. Nabídky vybrané na míru dostanete souhrnně 1× denně e-mailem. S Premium profilem máte k ruce hlídačů rovnou 5 a když se něco objeví, informují vás obratem.



















