
Pronájem bytu 3+1 • 81 m² bez realitkySt.-Moritz-Str. 2, , Bavorsko
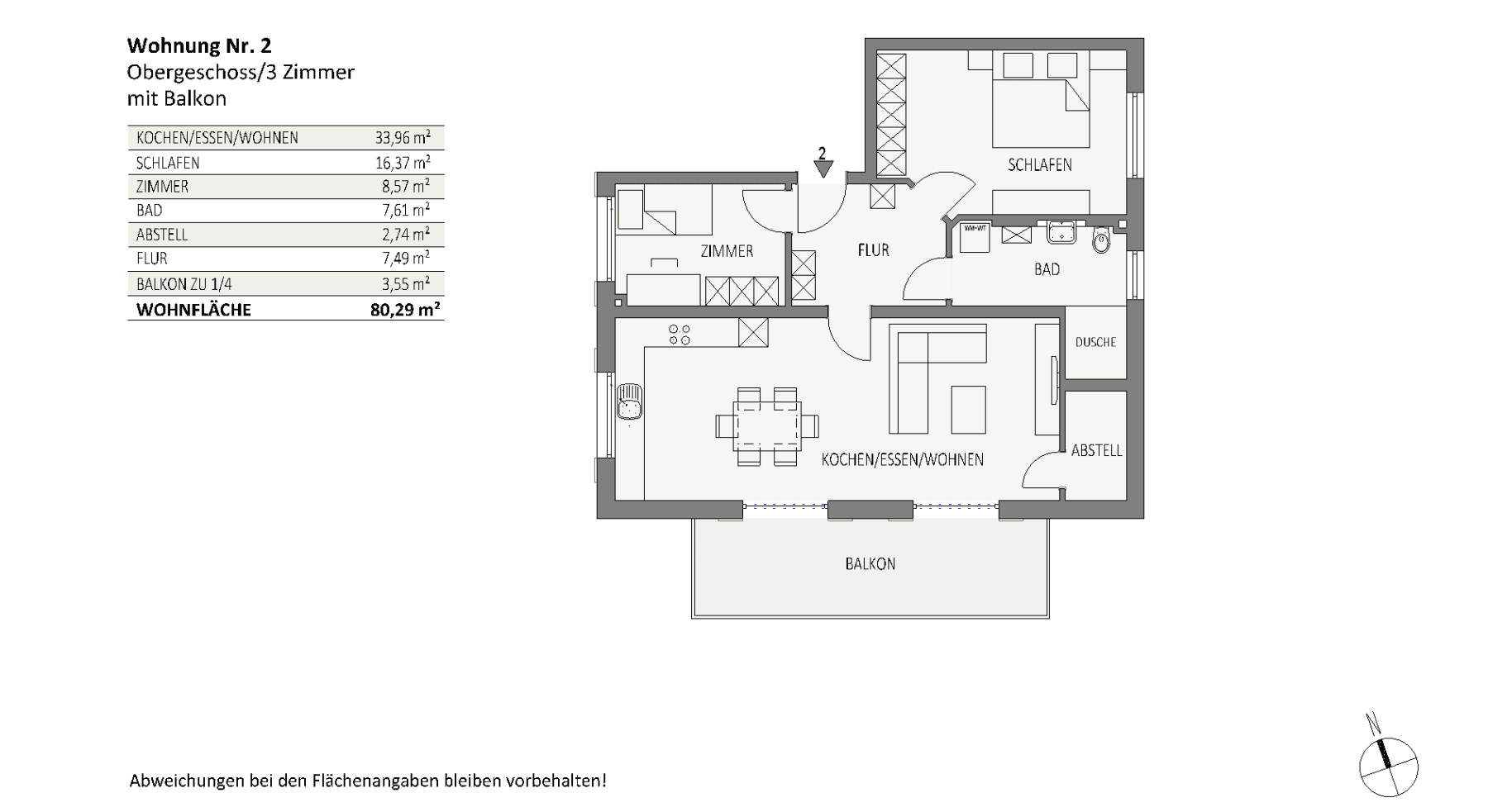
St.-Moritz-Str. 2, , BavorskoMHD 3 minuty pěšky • GarážByt v prvním patře se pyšní nadstandardním vnitřním vybavením. Součástí tohoto apartmánu jsou tři krásné pokoje a velká krytá jižní terasa. Otevřený obývací, kuchyňský a jídelní kout zve ke společnému vaření a posezení. Na prostorné jižní terase (rozměry cca 7 x 2 m) si můžete v klidu vychutnat konec dne. Nezáleží na tom, zda preferujete sluneční lehátko nebo gril – zde najde vše své místo.
Ve skladové místnosti můžete pohodlně uschovat své zásoby.
Velmi praktická je také sklepní místnost, která poskytuje úložný prostor pro vaše věci.
Pohodlně zaparkujete v samostatné garáži s elektrickým pohonem vrat (nájem: 60 €).
Nemovitost se nachází v krásné lokalitě Buchloe-Honsolgen. Můžete si užívat všechny přednosti bydlení v přírodě a přitom jste blízko centra Buchloe a dálnice A96. Vchod na dálnici A96/Buchloe Ost je dosažitelný za cca 5 minut. Ideální pro dojíždějící do Mnichova nebo Augsburgu.
Dopravní spojení:
- Mnichov: cca 45 minut
- Augsburg: cca 40 minut
- Füssen: cca 1 hodina
- Landsberg am Lech: cca 10 minut
- Türkheim: cca 14 minut
Místní nádraží v centru Buchloe hraje klíčovou roli v regionální i nadregionální železniční dopravě, s přímými spoji do Mnichova, Augsburgu, Lindau a do Allgäu. Letiště Memmingen je dosažitelné za cca 30 minut autem.
V Buchloe naleznete:
restaurace, kavárny, zmrzlinárnu, supermarkety, obchody s oděvy, čerpací stanice, autoservis, pekárnu, lékárny, dětské hřiště, školky, základní školu, gymnázium, reálnou školu, střední školu, venkovní bazén, krytý bazén, lékaře, fyzioterapii, zdravotnický obchod, nemocnici, sportovní kluby, hasiče a mnoho dalšího.
Přehled vybavení:
• Masivní stavba
• Podlahové vytápění
• Vytápění: Vzduch-voda tepelná čerpadla
• Zařízení pro změkčování vody
• Vchodový interkom s kamerou
• Ventilační systém s rekuperací tepla (decentralizovaný)
• Dřevěná izolační okna z larixového dřeva s trojitým zasklením
• Velká terasa (zábradlím: larixové dřevo, podlahou: terasové desky z WPC)
• Okenní parapety (uvnitř) z přírodního kamene
• Elektrické rolety a žaluzie
• Designový vinylový podlahový kryt
• Krásné bílé vnitřní dveře
• Vstupní dveře bytu: třída zvukové izolace 3
• Satelitní anténa
• Koupelna s oknem a připojením pro pračku
• Skladová místnost přímo v bytě
• K bytu náleží také sklepní místnost
• K dispozici je cyklistická místnost pro všechny obyvatele domu
Máte zájem?
Prosíme, zašlete nám písemnou zprávu s vašimi kontaktními údaji a krátkými informacemi o sobě.
Pro přihlášku na nájemní byt Vás prosíme, abyste připravili následující dokumenty (v kopii):
• Vyplněné prohlášení nájemce
• Kopii občanského průkazu (obě strany)
• Aktuální výpis ze Schufa (nesmí být starší než 3 měsíce)
• Mzdy doklady za poslední 3 měsíce nebo ekvivalentní doklad o příjmu
Poznámky:
- V této nemovitosti bohužel není povoleno chovat domácí zvířata.
- Nájemní smlouva bude uzavřena jako smlouva s postupným navyšováním nájemného.
- Fotografie odpovídají představám ilustrátora. Skutečná realizace se může od zobrazení lišit. Nábytek slouží pouze k vizualizaci a není zahrnut v nájemném.
V okolí nemovitosti najdete


Pronájem bytuPössinger Straße 24 Landsberg am Lech Landsberg am Lech Bayern 86899- 3+1
- 71 m²
960 € + 240 €
Stále hledáte to pravé?
Nastavte si hlídacího psa. Nabídky vybrané na míru dostanete souhrnně 1× denně e-mailem. S Premium profilem máte k ruce hlídačů rovnou 5 a když se něco objeví, informují vás obratem.










