
Pronájem bytu 1+1 • 27 m² bez realitkyMeyburginsel 31, , Severní Porýní-Vestfálsko
Meyburginsel 31, , Severní Porýní-VestfálskoMHD 3 minuty pěšky • ParkováníK datu 01.11.2025 je možné tento příjemný, udržovaný byt obývat mezi FH a Technologickým centrem.
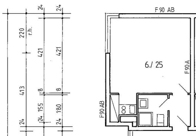
Byt se nachází v prvním patře a skládá se z pokoje s kuchyňským koutem, vstupní haly a koupelny. Součástí bytu je také sklep, který poskytuje další úložné prostory.
Bytový dům je ve velmi dobrém stavu a převážně ho obývají studenti či zaměstnanci výzkumného centrálního zařízení. Okna jsou opatřena tepelně izolačním dvojsklem a objekt je vybaven plynovým ústředním topením. Aktuální energetický průkaz je již k dispozici.
Všimněte si také zahrady, kde si můžete nádherně odpočinout od každodenní rutiny. Vybavená kuchyň vám ušetří čas i peníze. K bytu je možné pronajmout i venkovní parkovací místo.
Byt se nachází v prvním nadzemním patře obytného komplexu na Wiesenstr./Meyburginsel mezi FH a Technologickým centrem. Je umístěn uvnitř U-tvarovaného objektu na adrese Wiesenstr. 6H. Obchody s běžnými potřebami a veřejná doprava jsou všechny dostupné pěšky.
V okolí nemovitosti najdete
Stále hledáte to pravé?
Nastavte si hlídacího psa. Nabídky vybrané na míru dostanete souhrnně 1× denně e-mailem. S Premium profilem máte k ruce hlídačů rovnou 5 a když se něco objeví, informují vás obratem.





