
Pronájem bytu 2+1 • 56 m² bez realitkyHerweghstraße 13 Berlin Johannisthal Berlin 12487
Tento světlý a moderní 2-pokojový byt o přibližně 56 m² obytné plochy zaujme svou kvalitní rekonstrukcí, promyšleným půdorysem a prostornou zimní zahradou, kterou prostéká přirozené světlo. Velká okna vytvářejí přívětivé bydlení, zatímco prvotřídní vybavení přispívá k příjemnému pocitu z domova.
Zimní zahrada ideálně rozšiřuje obytnou plochu a je perfektní jako jídelna, malá kancelář nebo útulný koutek pro čtení. Kombinace klidného obytného prostředí, moderního vybavení a dobré dopravní dostupnosti činí byt ideálním pro jednotlivce, páry nebo mladé rodiny.
Byt se nachází v oblíbené jihozápadní čtvrti Berlína s vynikající infrastrukturou. Obchody, jako jsou supermarkety, pekárny i menší obchody, jsou v bezprostřední blízkosti. Několik mateřských škol a škol je dosažitelných pěšky, což dělá lokalitu obzvlášť vhodnou pro rodiny.
Veřejná doprava je vynikající: autobusové linky jezdí jen několik minut chůze a také je možné využít tramvajové spojení. Nádraží S-Bahn a regionální vlaky jsou rychle dostupné a nabízejí dobré spojení do centra Berlína i do okolí.
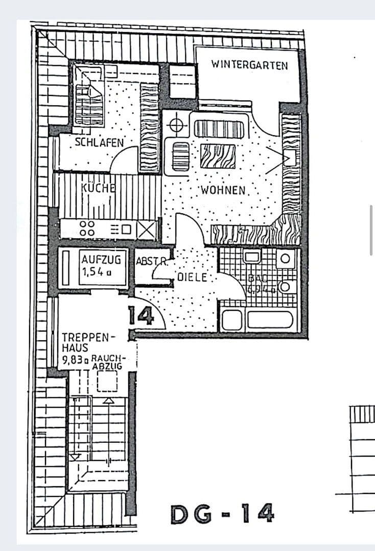
• přibližně 56 m² obytné plochy
• 2 pokoje + úložný prostor + zimní zahrada
• světlý obývací pokoj s přístupem do zimní zahrady
• moderní ložnice (skříň je k dispozici)
• nová vestavěná kuchyně s dostatkem úložného prostoru a dřevěnou pracovní deskou
• stylná koupelna se sprchou a vanou, moderní armaturou, kvalitními dlaždicemi
• praktický úložný koutek
• kvalitní parketové podlahy ve všech obytných místnostech
• čerstvě natřené stěny, moderní zásuvky a vypínače
• světlé, příjemné místnosti
• dodatečný sklepní sál
• k dispozici je sklep na kola
• v domě je výtah
k okamžitému pronájmu
V okolí nemovitosti najdete
Stále hledáte to pravé?
Nastavte si hlídacího psa. Nabídky vybrané na míru dostanete souhrnně 1× denně e-mailem. S Premium profilem máte k ruce hlídačů rovnou 5 a když se něco objeví, informují vás obratem.













