
Pronájem bytu 4+1 • 94 m² bez realitkyFeldbergblick 26, , Hessen
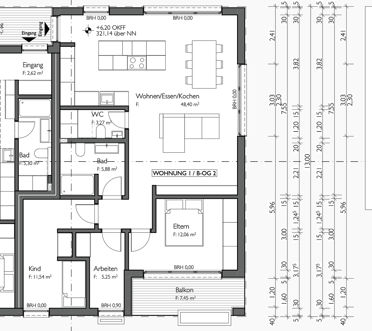
Feldbergblick 26, , HessenMHD 5 minut pěšky • ParkováníNež budete číst dále: další prohlídka proběhne v neděli 1. března v 11:00 před objektem. Každý byt v našem bytovém projektu disponuje certifikací QNG – nejvyšším možným kvalitačním razítkem pro ekologickou a energetickou výstavbu – a má tak energetickou náročnost nižší než úroveň pasivního domu. Poslední volný byt v přízemí kromě balkonu nabízí také malou terasu. Právě pro lidi, kteří chtějí bydlet bez schodů, je tento byt ideální, protože je bezbariérově dosažitelný. Byt obsahuje prostornou ložnici a dvě dětské pokoje/ kancelář pro práci z domova.
Dne 1. března v 11:00 se uskuteční naše další prohlídka objektu.
Pozor… viz další informace: hledáme spolubydlící, kteří mají zájem o společné bydlení… prosíme, přečtěte si podrobnosti.
Klidně se zeptejte i na další termíny našich informačních večerů v našem společenském prostoru. Prosíme o registraci předem na telefonním čísle: 0172-1665716.
Waldems-Bermbach se nachází asi 5 minut od přípojky na dálnici u Idsteinu k A3. Po dálnici A3 se za 25 minut dostanete do Limburgu a za 35 minut do Frankfurtu. Wiesbaden je vzdálen přibližně 30 minut. Bermbach má vlastní mateřskou školku. Základní škola se nachází 3 minuty daleko v Heftrichu. Nadstavbové školy jsou k dispozici v Idsteinu, kde se nachází i montessori škola. Nakupování je možné pěšky v obchodě v dvoře. Netto je dosažitelné asi 15 minut chůze. Obchody jako Lidl, Aldi, Edeka, Rewe, Dens apod. jsou v Idsteinu vzdáleny asi 5 minut jízdy. Do Idsteinu vede také cyklostezka. V Waldems-Esch najdete prakticky lékaře.
Absolutním vrcholem je vlastní fotovoltaická elektrárna o výkonu 6,5 kW Peak s vlastním 5kW úložištěm, které je kdykoli možné rozšířit. Jako nájemce využíváte energii přímo a bez omezení dle potřeby a přání. Ve spojení se smart přepínačovým systémem, vodou šetřícími armaturami a sprchami s rekuperací tepla a velmi rychlými infračervenými topeními šetří fotovoltaická elektrárna přibližně 65 % nákladů na elektřinu a vytápění. Na rozdíl od podlahového vytápění není třeba topit na požadovanou teplotu, pokud místnosti nejsou využívány. Primární energetická náročnost díky všem opatřením a velmi dobré izolaci činí 14 kW na m² ročně, což je pod úrovní pasivního domu.
Kdo má zájem, může si za malý poplatek domluvit instalaci vlastní 11kW Wallboxu prostřednictvím našeho elektrikáře. Wallbox může při odstěhování přejít na dalšího nájemce.
Byt je vybaven novým přírodním linoleem s krásným designem.
Koupelna a WC jsou kompletně vybaveny – stojanou sudetkou, umyvadlem, armaturami Hansgrohe Ecosmart+ Coolstart, zrcadlem, osvětlením, úspornými splachovacími WC a sprchou od Hansgrohe Ecosmart+ se sprchovou závěsnicí.
POZOR – VŠEM, KTEŘÍ MÁJÍ ZÁJEM O SPOLEČNÉ BYDLENÍ, MLADÉ RODINY, STARÉ RODINY, OSOBY BÝVAJÍCÍ SAMOSTATNĚ, JEDNOUDLNÉ RODIČE A VŠE OSTATNÍ – prostě lidé, kteří nechtějí bydlet sami, kteří hledají domov pro rodinné štěstí, nebo mají chuť na rodinné prostředí v našem bytovém projektu. Viz: wohnprojekt-bermbach. Toto není jen inzerát na byt. Naše komunita (10 bytových jednotek již bylo přiděleno) hledá pro náš velký společný bytový projekt skvělé lidi, kteří mají radost ze společného utváření a prožívání svého obytného prostředí. Náš objekt se nachází na nejvyšším bodě novostavby v Waldems Bermbach s nezastavitelným výhledem. Na hrací ulici se den co den hemží děti hledající parťáky na hru. Náš společný bytový projekt zejména nabízí možnost sdílení úkolů a vzájemné podpory. Od společné péče o děti, přes doučování až po večerní hlídání dětí je mnoho možností. Ve společném bydlení oživí několik společných prostor život. Společně se všemi obyvateli budeme rozvíjet společné vnitřní i venkovní prostory. Naše zahradnická skupina již zahájila plánování. A v našich prostorech chceme společně zažít spoustu aktivit: ať už jde o lekce jógy, herní večery, společné vaření a stolování, dovolenou dětí ve hře, využívání dílenského prostoru apod… téměř vše je možné. Na co máte chuť? Nabízíme zájemcům pro náš společný bytový projekt v Waldems, část Bermbach, nový domov. Společně s již ustálenou jádrovou skupinou rozvíjíme komunitu pro 22 bytových jednotek. Společně s co nejvíce zvědavými zájemci chceme naši komunitu dále rozvíjet. Byty nabízejí prostor pro singly, páry, rodiče samoživitele, starší, mladší, manžele, rozvedené, zamilované, dlouholeté páry a mnoho dalších. Musíte být rozmanití a tolerantní – pak k nám patříte. První byty jsou k dispozici od 31. března. Dokončení všech bytových jednotek je plánováno na listopad 2025.
Další termín prohlídky je v neděli 1. března v 11:00. Místem setkání je před objektem.
Náklady na bydlení za metr čtvereční včetně nákladů na služby a komunitních poplatků činí přibližně 16,50 €. Každý nájemce získá svou vlastní fotovoltaiku s vlastním úložištěm a ušetří tak přibližně 65 % nákladů za elektřinu díky vlastní výrobě … viz také naše webové stránky!
Dále nyní nabízíme 2 byty pro osoby s povolením k vazbě.
Pravidelně pořádáme pro zájemce různé informační večery.
Na našich webových stránkách wohnprojekt-bermbach naleznete další informace o budoucích termínech.
Případně se jako zájemce zaregistrujte nebo nám zavolejte na číslo: 0172-1665716.
V okolí nemovitosti najdete
Stále hledáte to pravé?
Nastavte si hlídacího psa. Nabídky vybrané na míru dostanete souhrnně 1× denně e-mailem. S Premium profilem máte k ruce hlídačů rovnou 5 a když se něco objeví, informují vás obratem.
































