
Inzerát již není v nabídce
Pronájem bytu 3+1 • 70 m² bez realitkyHansmannova, Brno - Černá Pole, Jihomoravský kraj
Hansmannova, Brno - Černá Pole, Jihomoravský krajMHD 2 minuty pěšky • Balkón 1,5 m²Měsíční nájemné19 500 Kč
+ Poplatky za služby900 Kč
+ Vratná kauce19 500 Kč
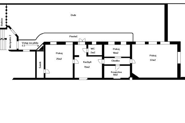
Nabízíme k pronájmu krásný slunný byt v 1NP bytového domu o velikosti 3+1 70,5m2 po rekonstrukci, se samostatným topením a balkónem. Výborná dostupnost, příjemné prostředí, samoobsluha a zelenina přes ulici. Upřednostňujeme dlouhodobý pronájem.
Energie ( elektřina a plyn)se přepisují na nájemníka. Odhad 1500Kč+1500Kč.
Parametry nemovitosti
Dostupné od | 2. 4. 2025 |
---|---|
Konstrukce budovy | Cihla |
Podlaží | 1. podlaží |
Číslo inzerátu | 614555 |
PENB | D - Méně úsporná |
Užitná plocha | 70 m² |
Stav | Velmi dobrý |
---|---|
Dispozice | 3+1 |
Vytápění | Plynové |
Vlastnictví | Osobní |
Umístění | Klidná část |
Cena za jednotku | 279 Kč / m2 |
Co tato nemovitost nabízí?
Balkón 1,5 m² | |
MHD 2 minuty pěšky |
V okolí nemovitosti najdete
MHDMerhautova
🚶 162 m (2 min)
PoštaBrno 13
🚶 606 m (7 min)
ObchodAlbert
🚶 154 m (2 min)
BankaČeská spořitelna
🚘 1 808 m (5 min)
RestauraceRestaurace Betlém
🚶 226 m (3 min)
LékárnaAstra
🚶 392 m (5 min)
ŠkolaZákladní škola Jugoslávská
🚶 528 m (6 min)
Mateřská školaMateřská škola Tišnovská
🚶 261 m (3 min)
SportovištěAC Fitness
🚶 305 m (4 min)
Hřiště
🚶 374 m (4 min)
Vzdálenost k:
Měsíční nájemné19 500 Kč
+ Poplatky za služby900 Kč
+ Vratná kauce19 500 Kč
Stále hledáte to pravé?
Nastavte si hlídacího psa. Nabídky vybrané na míru dostanete souhrnně 1× denně e-mailem. S Premium profilem máte k ruce hlídačů rovnou 5 a když se něco objeví, informují vás obratem.