
Prodej domu 4+1 • 115 m² bez realitkyKytnerova, Brno - Medlánky, Jihomoravský kraj
Kytnerova, Brno - Medlánky, Jihomoravský krajSklep 5 m²Tato nemovitost již od 62 468 Kč měsíčně s roční úrokovou sazbou od 4,79 %.
Nabízíme k prodeji rodinný dům v Brně Medlánkách po kompletní rekonstrukci s velkou zahradou v uzavřeném vnitrobloku. Dům je volný, ihned připravený k užívání.
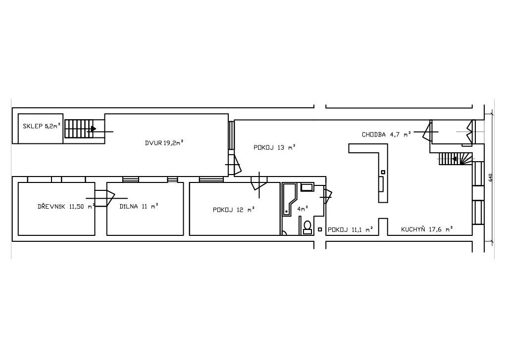
Pozemek celkem 600 m2 (z toho zastavěná plocha 168 m2), zahrada 432 m2.
Přízemí domu tvoří obývací pokoj, kuchyně, koupelna s toaletou a ložnice. Většina obytného prostoru má vysoké stropy s přiznanými trámy.
Patro domu, přístupné po schodech z kuchyně, tvoří otevřený obytný prostor, částečně rozdělený příčkou.
Z obývacího prostoru je přímý vstup na uzavřený dvorek a zahradu.
V roce 2014 byla dokončena celková rekonstrukce domu. Celý objekt je zateplený a vybavený protihlukovými okny s trojskly. Vytápění plynovým kondenzačním kotlem v kombinaci podlahové topení a radiátory.
V domě je instalována katexová jednotka pro změkčování vody v celém objektu. Přípojka 230/400 V, kabel Vodafone.
Dům disponuje dílnou napojenou na vytápění, přístupnou z dvorku a cihlovým klenutým sklepem pod úrovní terénu.
K domu přiléhá velká, udržovaná, přírodní zahrada, v rovině, orientovaná na jih. Součástí zahrady jsou nové vyvýšené záhony z masivního dřeva a skleník s kapkovou závlahou.
Na zahradě jsou také udržované plodící ovocné stromy, keře a pergola s vinnou révou.
Nemovitost se nachází v klidné lokalitě s dobrou přístupností do centra, zastávka MHD vzdálena 200m od domu.
Právní servis při prodeji domu včetně úschovy peněz zajištěn notářskou kanceláří.
Prohlídka po dohodě možná kdykoli.
Parametry nemovitosti
| Dostupné od | 14. 1. 2026 |
|---|---|
| Konstrukce budovy | Cihla |
| Vybaveno | Nevybaveno |
| Číslo inzerátu | 1011421 |
| PENB | G - Mimořádně nehospodárná |
| Užitná plocha | 115 m² |
| Celkem podlaží | 2 |
| Cena za jednotku | 129 565,22 Kč / m2 |
| Stav | Po rekonstrukci |
|---|---|
| Dispozice | 4+1 |
| Vytápění | Plynové |
| Vlastnictví | Osobní |
| Poloha domu | Řadový |
| Plocha pozemku | 600 m² |
| Rizika | Prověřit » |
Co tato nemovitost nabízí?
| Sklep 5 m² |
V okolí nemovitosti najdete
Tato nemovitost již od 62 468 Kč měsíčně s roční úrokovou sazbou od 4,79 %.




















