Prodej bytu 4+1 • 94 m² bez realitkyStaroměstská, České Budějovice - České Budějovice 3, Jihočeský kraj
Staroměstská, České Budějovice - České Budějovice 3, Jihočeský krajMHD 2 minuty pěšky • Částečně vybaveno • Výtah • Balkón 3 m² • Sklep 9 m²Tato nemovitost již od 32 701 Kč měsíčně s roční úrokovou sazbou od 4,79 %.
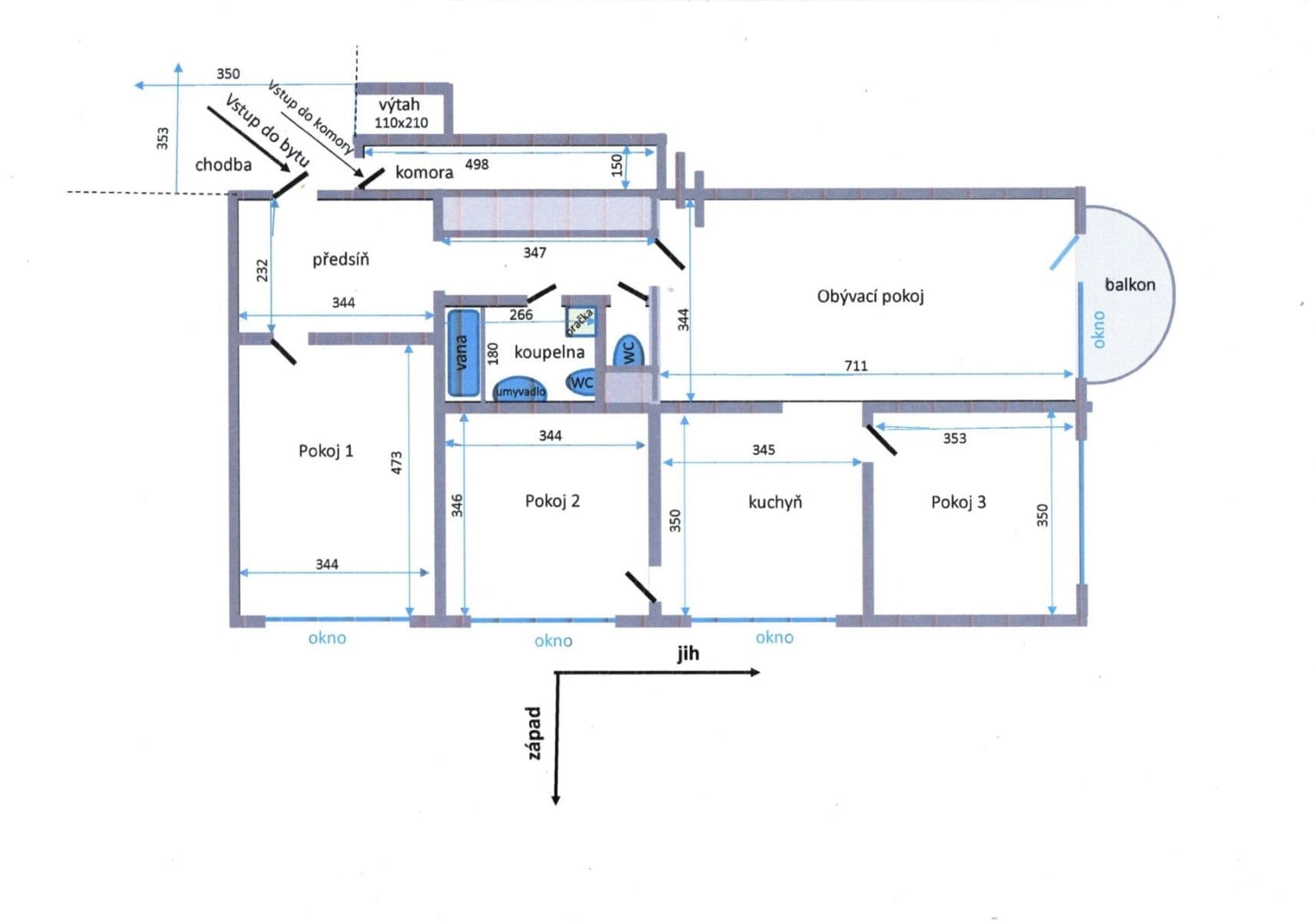
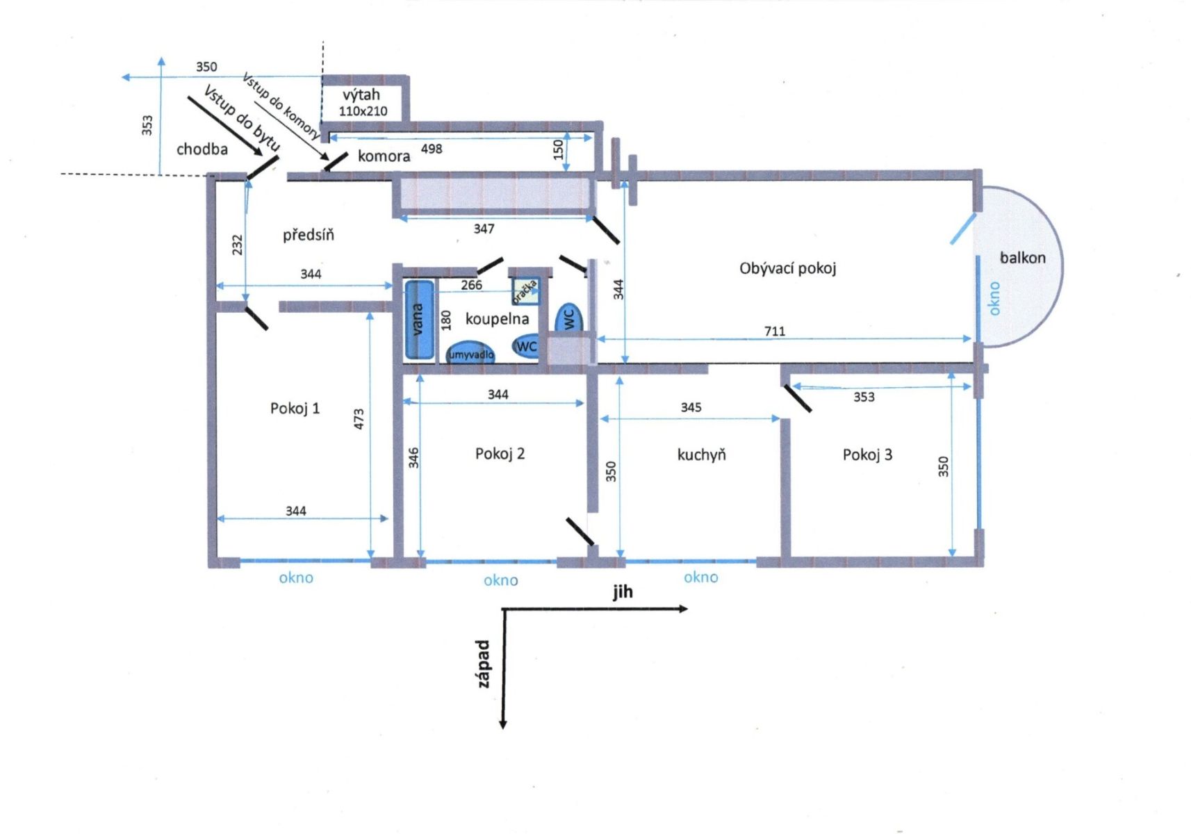
Nabízím k prodeji prostorný a světlý byt 4+1 o celkové ploše 94 m², který se nachází v panelovém domě. Nemovitost je ve velmi dobrém stavu a je částečně vybavená, takže si můžete zařídit interiér přesně podle svých představ. Dispozice bytu nabízí dostatek prostoru pro pohodlné rodinné bydlení a zároveň umožňuje flexibilní využití jednotlivých místností. Na podlaží jsou pouze 2 bytové jednotky s velkou chodbou a prostorným výtahem.
Byt se nachází v šestém nadpodlaží, je vybaven velkým výtahem a bezbariérovým přístupem, což ocení zejména starší obyvatelé či rodiny s malými dětmi. K domu bohužel parkování či garáž nenabízím, avšak v okolí domu jsou parkovací zóny určené pro místní obyvatele. Byt disponuje praktickým balkonem o ploše 3 m² a komorou vedle bytu o ploše 7.5 m² která poskytuje dostatek prostoru pro uskladnění osobních věcí. V přízemí domu je sklepní koje.
Byt má výhodnou polohu - do centra města 800m, nákupní centrum IGI 300m, pošta 300m, škola 400m, školka 200m, restaurace Perla do 100m.
Budova má energetický štítek kategorie C, což svědčí o relativně nízké energetické náročnosti a příznivých provozních nákladech. Nemovitost vlastním osobně, což zaručuje přímý a transparentní průběh celé transakce.
Pro další informace a domluvení prohlídky mě kontaktujte prostřednictvím zpráv na komunikační platformě.
Parametry nemovitosti
| Dostupné od | 31. 5. 2026 |
|---|---|
| Konstrukce budovy | Panel |
| Vybaveno | Částečně |
| Číslo inzerátu | 1014969 |
| PENB | C - Úsporná |
| Užitná plocha | 94 m² |
| Cena za jednotku | 82 978,72 Kč / m2 |
| Stav | Velmi dobrý |
|---|---|
| Dispozice | 4+1 |
| Podlaží | Přízemí |
| Vlastnictví | Osobní |
| Umístění | Klidná část |
| Rizika | Prověřit » |
Co tato nemovitost nabízí?
| Balkón 3 m² | |
| Sklep 9 m² | |
| Výtah |
| Bezbariérový přístup | |
| MHD 2 minuty pěšky |
V okolí nemovitosti najdete
Tato nemovitost již od 32 701 Kč měsíčně s roční úrokovou sazbou od 4,79 %.








