
Pronájem kanceláře • 103 m² bez realitkyUruguayská, Praha - Vinohrady
Máte o nabídku zájem?
Ušetřete 24 574 Kč na provizi a komunikujte se všemi majiteli.
Přímý majitel, developerská společnost REMCO s.r.o. nabízí k pronájmu kancelářské prostory v administrativní budově v Uruguayské ulici, Praha 2.
Ideální poloha blízko centra Prahy, 200m od stanice metra Nám. Míru a tramvajových zastávek.
Možnost pronájmu parkování v podzemní garáži.
Cena nájmu je 239,-Kč/m2 + poplatky za služby 119,-Kč/m2, topné náklady 20,-Kč/m2 a elektrická energie.
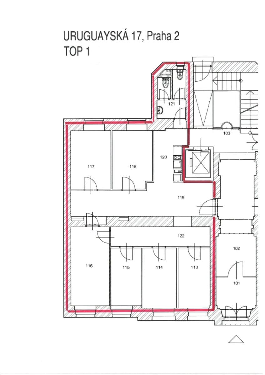
K dispozici je šest světlých, prostorných kanceláří o celkové výměře 102,82 m2. Kanceláře na nachází v 1NP objektu. Součástí prostor je vstupní hala s odděleným kuchyňským koutem, viz půdorys.
Prostory mají vlastní sociální zázemí, žaluzie a otevíratelná okna.
Elektrická energie se platí dle spotřeby (fakturace).
Prostory jsou volné od srpna, k pronájmu od září 2026.
Parametry nemovitosti
| Dostupné od | 1. 5. 2024 |
|---|---|
| Konstrukce budovy | Cihla |
| Podlaží | 1. podlaží z 5 |
| PENB | E - Nehospodárná |
| Plocha kanceláře | 103 m² |
| Stav | Dobrý |
|---|---|
| Vybaveno | Nevybaveno |
| Číslo inzerátu | 576148 |
| Umístění | Klidná část |
| Cena za jednotku | 239 Kč / m2 |
Co tato nemovitost nabízí?
| Bezbariérový přístup | |
| Parkování |
| Garáž | |
| Výtah | |
| MHD 1 minuta pěšky |
V okolí nemovitosti najdete
Máte o nabídku zájem?
Ušetřete 24 574 Kč na provizi a komunikujte se všemi majiteli.
Stále hledáte to pravé?
Nastavte si hlídacího psa. Nabídky vybrané na míru dostanete souhrnně 1× denně e-mailem. S Premium profilem máte k ruce hlídačů rovnou 5 a když se něco objeví, informují vás obratem.





