
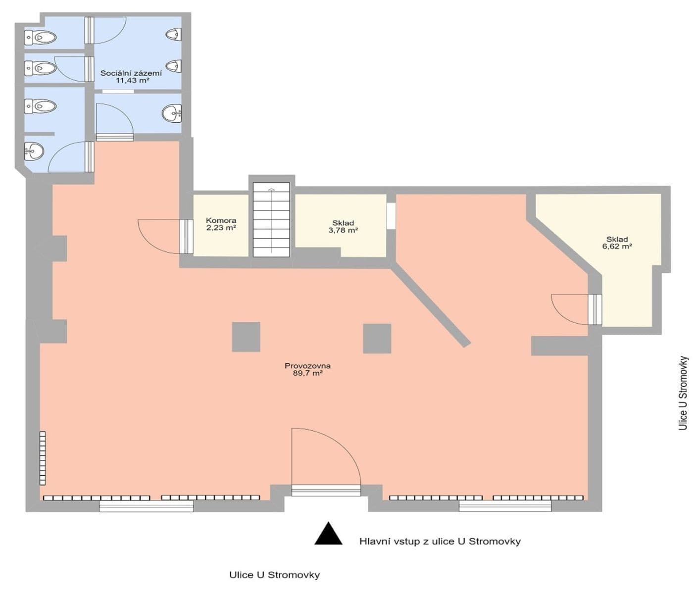
Pronájem nebytového prostoru • 179 m² bez realitkyU Stromovky, Havířov-město, Moravskoslezský kraj
U Stromovky, Havířov-město, Moravskoslezský krajMHD 6 minut pěškyPoznámka k ceně
+ služby 7000.00Pronajmeme komerční prostor v klidnější lokalitě s vynikající dostupností, umístěný v přízemí bytového domu na ulici U stromovky v Havířově. Výborná dopravní dostupnost, vynikající možnosti parkování.
Výlohy a vstup do ulice, sociální zázemí samozřejmostí.
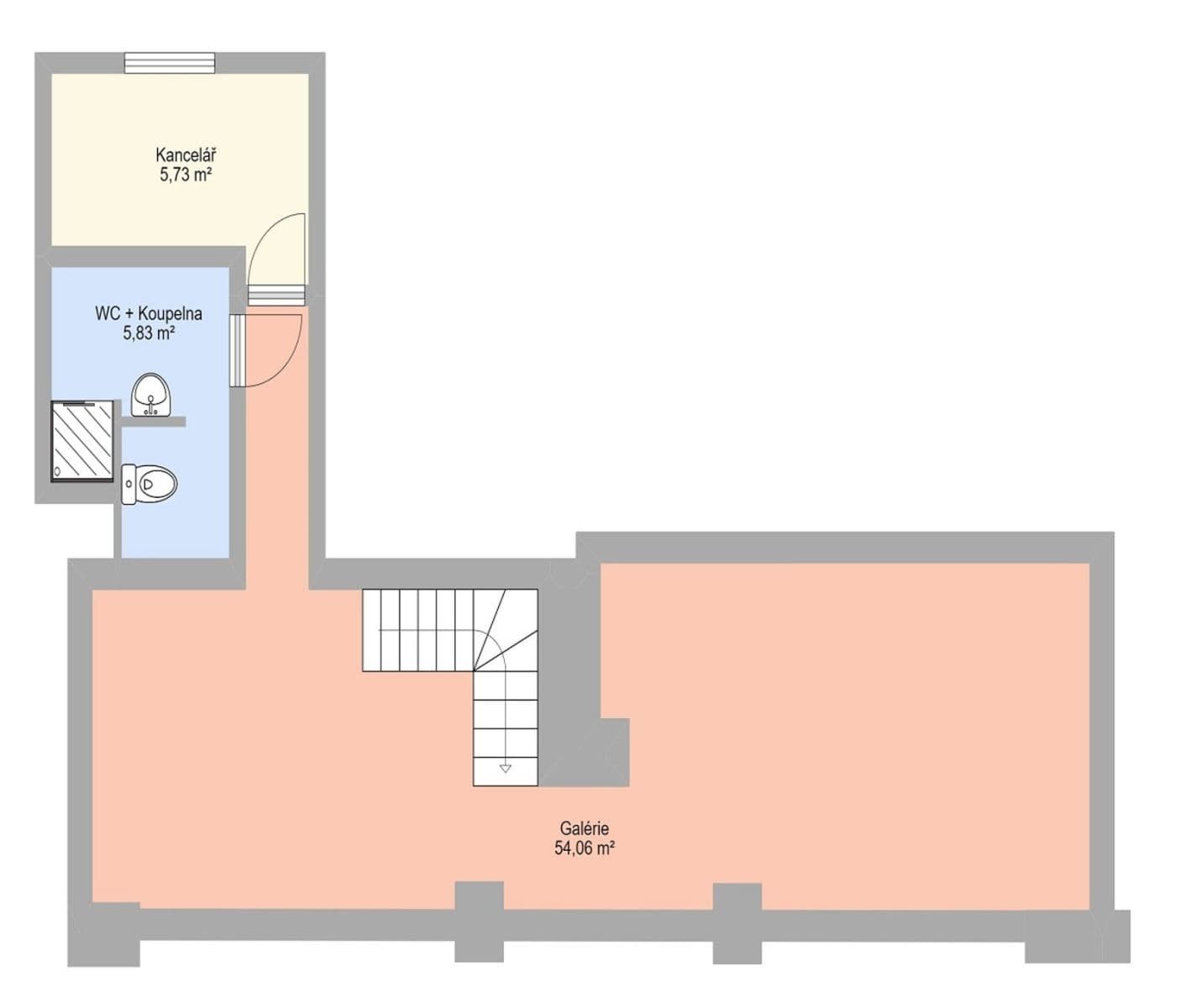
Dispozičně jsou prostory vhodné k provozování kavárny, restaurace, čajovny, klubu. V prostoru je galérie, kterou lze komerčně využívat. K pronájmu bez interiérového vybavení.
Poskytujeme studenou vodu, teplou vodu a topení. Elektrická energie formou přímého smluvního vztahu dle vlastního výběru dodavatele.
Prostor k dispozici.
Parametry nemovitosti
| Stav | Dobrý |
|---|---|
| Číslo inzerátu | 764577 |
| Umístění | Klidná část |
| Voda | Z veřejného zdroje |
| Konstrukce budovy | Cihla |
|---|---|
| PENB | E - Nehospodárná |
| Plocha nebytového prostoru | 179 m² |
| Cena za jednotku | 0 Kč / m2 |
Co tato nemovitost nabízí?
| MHD 6 minut pěšky |
V okolí nemovitosti najdete
Poznámka k ceně
+ služby 7000.00Stále hledáte to pravé?
Nastavte si hlídacího psa. Nabídky vybrané na míru dostanete souhrnně 1× denně e-mailem. S Premium profilem máte k ruce hlídačů rovnou 5 a když se něco objeví, informují vás obratem.


















