Prodej bytu 4+kk • 83 m² bez realitkyLidická, Kyjov - Kyjov, Jihomoravský kraj
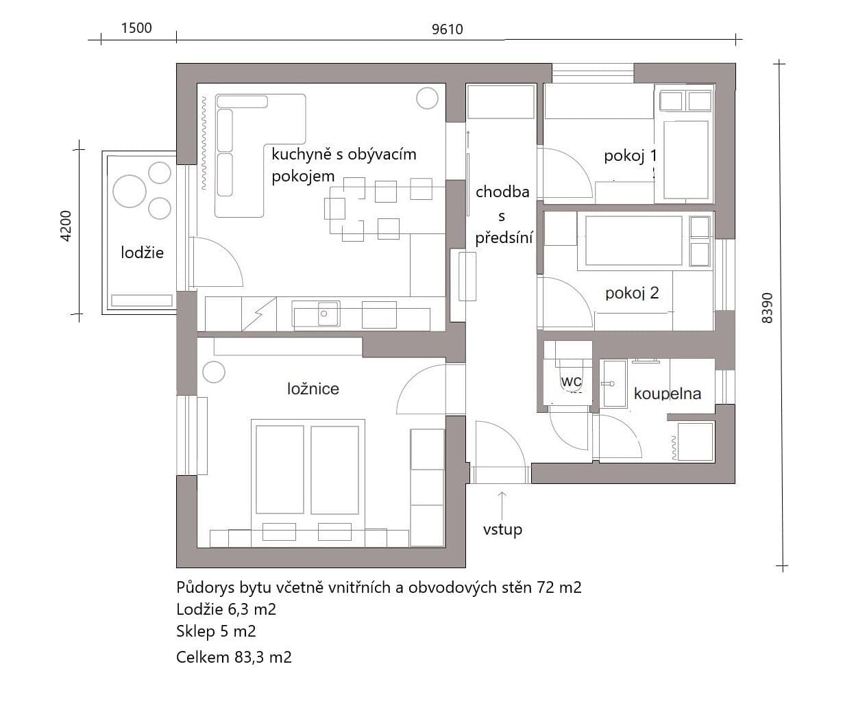
Lidická, Kyjov - Kyjov, Jihomoravský krajMHD 6 minut pěšky • Vybaveno • Parkování • Sklep 5 m² • Lodžie 6,3 m²Tato nemovitost již od 25 113 Kč měsíčně s roční úrokovou sazbou od 4,79 %.
Prodáme prostorný, prosluněný 4+kk byt v cihlové budově, umístěný ve 4. patře s celkovým počtem podlaží 4. Právě jsme dokončili jeho totální rekonstrukci v hodnotě 2,8mil.Kč.
Byt je svým řešením i návrhem velkého množství úložných prostor přímo určený pro pohodlný život 4 - 5 členné rodiny i pro nadstandardní komfort páru.
Byt má mnoho výhod
- Krásný výhled z horního patra na všechny strany - viz foto. O mnoho větší zážitek je pohledem vlastním okem.
- Energetická nenáročnost, vše nové - rozvody topení i elektřiny.
- K vytápění elektrokotel plus klimatizace.
- Výborně řešená dispozice, rekonstrukci provedla společnost Kintex - špičková designerská a realizační společnosti, která je zakládajícím členem skupiny CZECH DECO TEAM - skupiny architektů a realizačních firem, u jejíhož zrodu stál Bořek Šípek.
- Nová okna i dveře, vše v trojskle.
- Právě dokončená realizace zateplení celého domu a vybudování prostorných lodžií o velikosti 6,3m2.
- K bytu náleží sklep o velikosti 5 m2, společné uzamykatelné prostory pro kočárky a kola.
- Parkování před domem je k dispozici bez omezení počtu aut.
- Byt je velmi blízko centru Kyjova (5min.chůze), přitom v umístěný směrem do klidové zóny.
Byt má toto vybavení
- Luxusní vestavná kuchyně včetně spotřebičů Electrolux
- Vestavná předsíňová stěna s věšáky
- Vestavná skříň na chodbě
- Koupelnový nábytek a zrcadlo
Ostatní části bytu jsou ponechány pro individuální flexibilní řešení na konkrétní obyvatele. V případě zájmu propojíme nového majitele se zástupcem designerské a realizační firmy, která celou rekonstrukci navrhla a realizovala pro případné pokračování v návrhu a realizaci dalších částí bytu.
Nabízíme Vám ideální příležitost pro bydlení v klidné lokalitě s dobrou dostupností služeb a občanské vybavenosti. Pro více informací a domluvu na prohlídce nás neváhejte kontaktovat.
Tato nemovitost je skvělou investicí do Vaší budoucnosti.
Parametry nemovitosti
| Stáří | Do 10 let |
|---|---|
| Stav | Velmi dobrý |
| Dispozice | 4+kk |
| Podlaží | 4. podlaží z 4 |
| Vytápění | Elektrické |
| Vlastnictví | Osobní |
| Rekonstrukce | Kompletní |
| Užitná plocha | 83 m² |
| Cena za jednotku | 72 168,67 Kč / m2 |
| Dostupné od | 3. 3. 2025 |
|---|---|
| Konstrukce budovy | Cihla |
| Vybaveno | Vybaveno |
| Provedení | Luxusní |
| Číslo inzerátu | 854891 |
| PENB | B - Velmi úsporná |
| Umístění | Klidná část |
| Rizika | Prověřit » |
Co tato nemovitost nabízí?
| Sklep 5 m² | |
| Lodžie 6,3 m² | |
| MHD 6 minut pěšky |
| Parkování |
V okolí nemovitosti najdete
Tato nemovitost již od 25 113 Kč měsíčně s roční úrokovou sazbou od 4,79 %.


















