
Prodej domu 5+kk • 180 m² bez realitkyMarie Majerové, Teplice - Teplice-Trnovany, Ústecký kraj
Marie Majerové, Teplice - Teplice-Trnovany, Ústecký krajMHD 1 minuta pěšky • Částečně vybaveno • Parkování • Garáž • Balkón 6 m² • Terasa 24,5 m² • Lodžie 10 m²Tato nemovitost již od 27 285 Kč měsíčně s roční úrokovou sazbou od 4,29 %.
Nabízíme k prodeji krajní řadový rodinný dům v klidné zástavbě v Teplicích - Šanově. Třípodlažní dům, situovaný na konci slepé ulice Marie Majerové, disponuje četnými výhodami – výrazným prosvětlením, velkými úložnými prostory, dvěma balkóny, garáží a větší zahradou o rozloze 237m2.
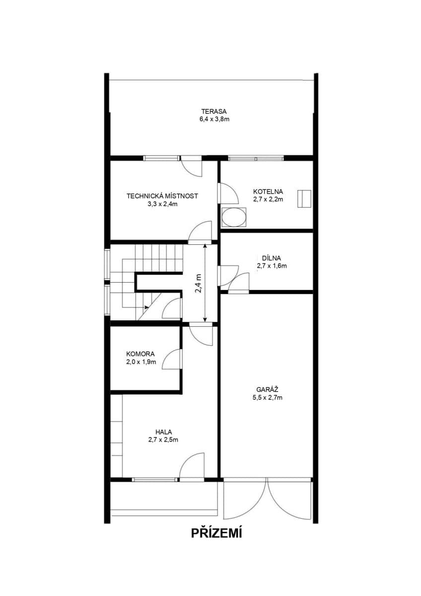
V přízemí se vedle garáže nachází vstupní hala s komorou, chodba s prosvětleným dřevěným schodištěm, spojujícím všechna patra domu. Dále je zde menší sklep, dílna, technická místnost a kotelna.
V prvním patře domu je umístěna kuchyně s jídelnou, toaleta a prostorný obývací pokoj s širokým balkónem.
V druhém patře se nachází koupelna s WC a čtyři pokoje: dva menší, s výhledem do zahrady, a dva prostornější, orientované na západ, se společným balkónem.
Celková zastavěná plocha domu je 89m2, jeho užitná plocha je 180 m2.
Vytápění: lokální plynové
Cena: 6.900.000,- Kč
Parametry nemovitosti
| Dostupné od | 2. 3. 2025 |
|---|---|
| Konstrukce budovy | Smíšená |
| Vybaveno | Částečně |
| Vlastnictví | Osobní |
| Poloha domu | Řadový |
| Užitná plocha | 180 m² |
| Celkem podlaží | 3 |
| Cena za jednotku | 38 333 Kč / m2 |
| Stav | Dobrý |
|---|---|
| Dispozice | 5+kk |
| Číslo inzerátu | 883213 |
| PENB | G - Mimořádně nehospodárná |
| Umístění | Klidná část |
| Plocha pozemku | 238 m² |
| Rizika | Prověřit » |
Co tato nemovitost nabízí?
| Balkón 6 m² | |
| Parkování | |
| Terasa 24,5 m² |
| Garáž | |
| Lodžie 10 m² | |
| MHD 1 minuta pěšky |
V okolí nemovitosti najdete
Tato nemovitost již od 27 285 Kč měsíčně s roční úrokovou sazbou od 4,29 %.
Stále hledáte to pravé?
Nastavte si hlídacího psa. Nabídky vybrané na míru dostanete souhrnně 1× denně e-mailem. S Premium profilem máte k ruce hlídačů rovnou 5 a když se něco objeví, informují vás obratem.








