
Prodej pozemku • 1310 m² bez realitkyLudkovice - Ludkovice, Zlínský kraj
Tato nemovitost již od 14 883 Kč měsíčně s roční úrokovou sazbou od 4,79 %.
DNESKA KOUPÍŠ, ZÍTRA STAVÍŠ!
!!!AKTUALIZACE!!!
V PRODEJI POUZE 3 POZEMKY - ASFALTOVÁ KOMUNIKACE A VEŘEJNÉ OSVĚTLENÍ HOTOVÉ.
Poslední 3 volné pozemky ze 6 - extra SLEVA 700.000 Kč na pozemek (původní cena 4 250 000 Kč) - platí už pouze pro jeden nejdříve prodaný pozemek.
❌pozemek č. 1 - závazně rezervováno
❌pozemek č. 2 - závazně rezervováno
✅pozemek č. 3 - volný
✅pozemek č. 4 - volný
✅pozemek č. 5 - volný
✅pozemek č. 6 - závazně rezervováno
VŠECHNY VOLNÉ POZEMKY MAJÍ:
😎Zasíťování vodou, elektřinou a kanalizací
😎Příjezd k pozemku po asfaltové komunikaci
😎Veřejné osvětlení u pozemku
😎Optický kabel pro internet na pozemku
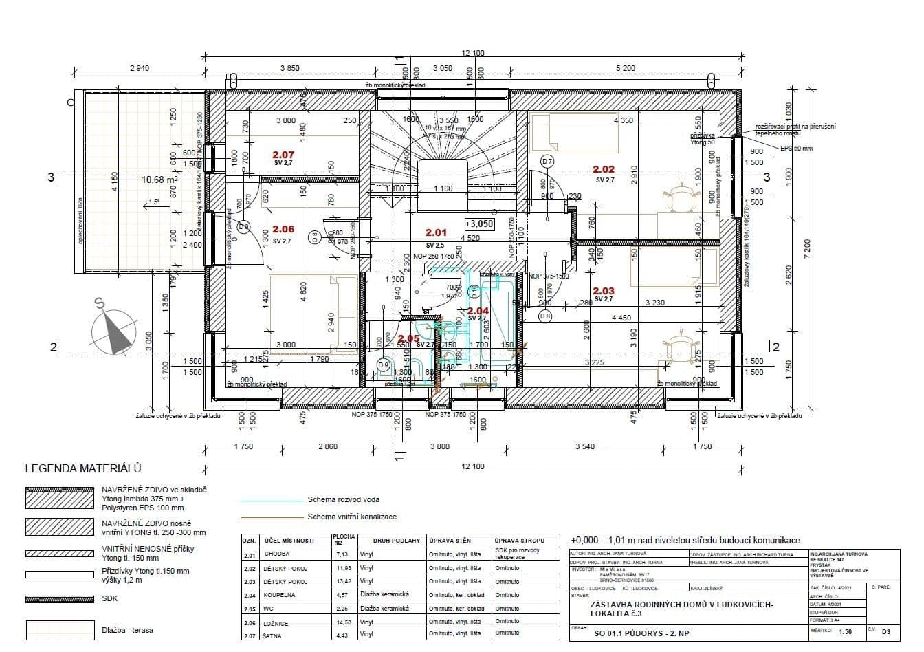
😎Projektovou dokumentaci a stavební povolení na dům
😎Parcelu s parkovacím stáním podél ulice ze zámkové dlažby
😎Srovnané pozemky - jsou zde provedené zemní práce, kdy na každém pozemku je odtěženo přes 1.000 m3 zeminy
😎Vizualizaci domu - exteriér i interiér - zde můžete čerpat inspiraci
pro více informací navštivte www.pozemkyludkovice.cz
🤓DNESKA KOUPÍŠ, ZÍTRA STAVÍŠ!
❌pozemek č. 7 - prodáno
Luhačovice - 6 km -> 6 min
Zlín - 16 km -> 19 min
Uherský Brod - 13 km -> 15 min
Parametry nemovitosti
| Dostupné od | 4. 7. 2025 |
|---|---|
| Typ pozemku | Stavební |
| Plocha pozemku | 1 310 m² |
| Číslo inzerátu | 921138 |
|---|---|
| Vlastnictví | Ostatní |
| Cena za jednotku | 2 709,92 Kč / m2 |
Co tato nemovitost nabízí?
| MHD 1 minuta pěšky |
V okolí nemovitosti najdete
Tato nemovitost již od 14 883 Kč měsíčně s roční úrokovou sazbou od 4,79 %.



















