
Pronájem kanceláře • 18 m² bez realitkyNový Zlíchov, Praha - Smíchov
Máte o nabídku zájem?
Ušetřete 4 750 Kč na provizi a komunikujte se všemi majiteli.
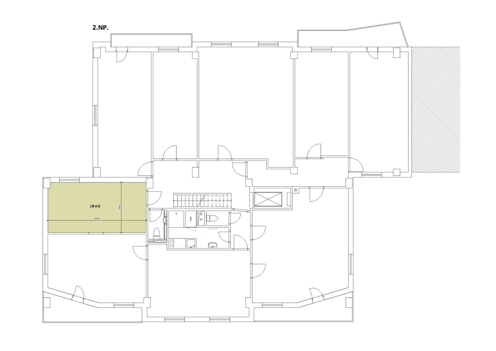
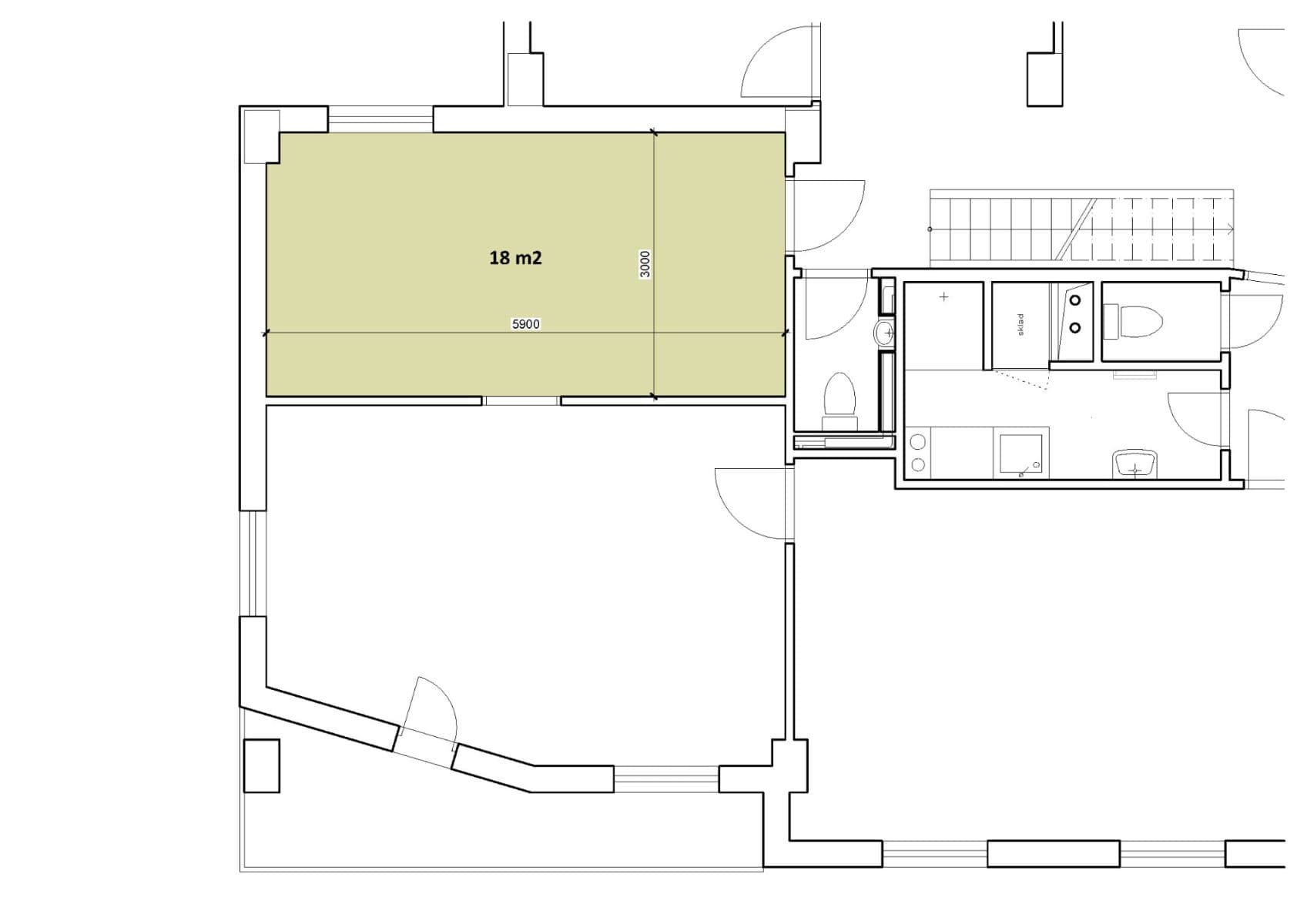
Nabízíme k pronájmu kancelář o rozloze 18 m², která se nachází ve druhém patře pětipodlažní cihlové budovy. Nemovitost je v dobrém stavu a její nevybavená dispozice umožňuje kompletní přizpůsobení interiéru individuálním potřebám. Kancelář je ideální volbou pro malé firmy či podnikatele, kteří hledají pracovní prostory s možností parkování přímo u budovy.
Budova disponuje výtahem, což usnadňuje přístup do vyšších pater, a zároveň garantuje rychlý a bezpečný pohyb mezi jednotlivými úrovněmi objektu. Prostor je určen k provozu kancelářských činností a jeho umístění na atraktivním místě.
V případě zájmu mě prosím kontaktujte prostřednictvím komunikační platformy a rád poskytnu další informace či domluvím prohlídku.
Parametry nemovitosti
| Dostupné od | 13. 8. 2025 |
|---|---|
| Konstrukce budovy | Cihla |
| Podlaží | 2. podlaží z 5 |
| Umístění | Klidná část |
| Cena za jednotku | 264 Kč / m2 |
| Stav | Dobrý |
|---|---|
| Vybaveno | Nevybaveno |
| Číslo inzerátu | 932704 |
| Plocha kanceláře | 18 m² |
Co tato nemovitost nabízí?
| Parkování |
| Výtah |
V okolí nemovitosti najdete
Máte o nabídku zájem?
Ušetřete 4 750 Kč na provizi a komunikujte se všemi majiteli.
Stále hledáte to pravé?
Nastavte si hlídacího psa. Nabídky vybrané na míru dostanete souhrnně 1× denně e-mailem. S Premium profilem máte k ruce hlídačů rovnou 5 a když se něco objeví, informují vás obratem.






