
Prodej bytu 2+kk • 71 m² bez realitkyKotojedská, Kroměříž - Kroměříž, Zlínský kraj
Kotojedská, Kroměříž - Kroměříž, Zlínský krajČástečně vybaveno • Výtah • Garáž • Balkón 17,73 m² • Sklep 4,79 m²Tato nemovitost již od 25 703 Kč měsíčně s roční úrokovou sazbou od 4,29 %.
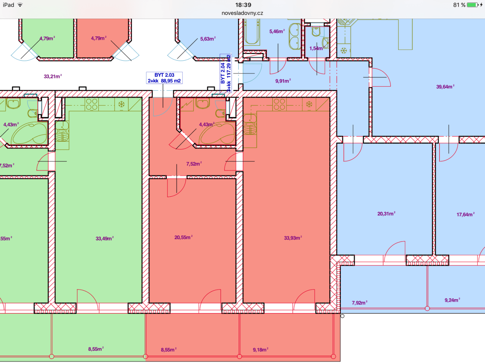
Nabízím ke koupi prostorný a světlý 2+kk byt umístěný v cihlové budově ( na fotografii červený půdorys). Nachází se v druhém patře s výtahem, což zajišťuje pohodlný přístup do bytu a bezbariérový přístup z garážového stání. Dispozice bytu nabízí promyšlené řešení s dostatkem prostoru o celkové ploše 71,22m², který je udržován ve velmi dobrém stavu. Byt je volný k okamžitému nastěhování. Fotografie vybavených pokojů jsou vizualizovány pro lepší představu.
Byt disponuje vybavenou kuchyní s jídelním stolem a židlemi. K nemovitosti náleží také prostorný balkón o rozloze 17,73 m², který je ideální pro relaxaci nebo posezení na čerstvém vzduchu. Jeho plocha není započítána v ploše bytu. Dále je k dispozici komora se vstupem na chodbě před bytem, o ploše 4,79 m², což přidává na praktičnosti a umožňuje uskladnění osobních věcí.
Byt je v osobním vlastnictví a budova nese energetický štítek třídy C, což svědčí o vyvážené energetické náročnosti. Součástí nabídky je také prostorné garážové stání, které poskytuje bezpečné parkování vozidla . Po dohodě nemusí být garážové stání předmětem prodeje.
V případě zájmu mě neváhejte kontaktovat prostřednictvím zpráv na komunikační platformě pro bližší informace a případnou prohlídku této atraktivní nemovitosti.
Parametry nemovitosti
| Stáří | 10 - 30 let |
|---|---|
| Stav | Velmi dobrý |
| Dispozice | 2+kk |
| Podlaží | 2. podlaží z 5 |
| Vytápění | Ústřední |
| Vlastnictví | Osobní |
| Umístění | Klidná část |
| Rizika | Prověřit » |
| Dostupné od | 27. 8. 2025 |
|---|---|
| Konstrukce budovy | Cihla |
| Vybaveno | Částečně |
| Provedení | Standardní |
| Číslo inzerátu | 936606 |
| PENB | C - Úsporná |
| Užitná plocha | 71 m² |
| Cena za jednotku | 91 549 Kč / m2 |
Co tato nemovitost nabízí?
| Balkón 17,73 m² | |
| Garáž | |
| Výtah |
| Sklep 4,79 m² | |
V okolí nemovitosti najdete
Tato nemovitost již od 25 703 Kč měsíčně s roční úrokovou sazbou od 4,29 %.
Stále hledáte to pravé?
Nastavte si hlídacího psa. Nabídky vybrané na míru dostanete souhrnně 1× denně e-mailem. S Premium profilem máte k ruce hlídačů rovnou 5 a když se něco objeví, informují vás obratem.
















