Prodej chaty, chalupy • 30 m² bez realitkyVelemín - Velemín, Ústecký kraj
Velemín - Velemín, Ústecký krajČástečně vybaveno • Parkování • Sklep 12 m² • Terasa 50 m²Tato nemovitost již od 8 343 Kč měsíčně s roční úrokovou sazbou od 4,79 %.
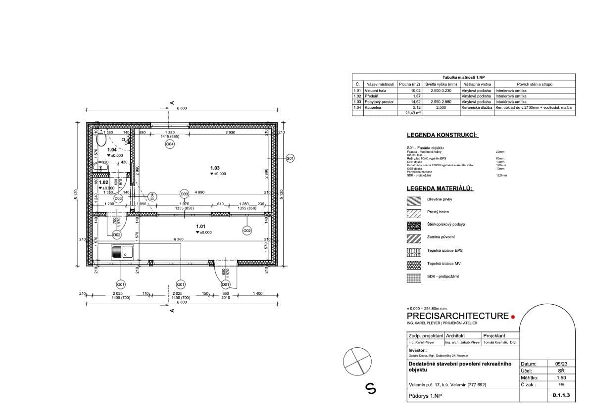
Nabízím k prodeji svou útulnou chatu/chalupu, která je postavena jako dřevostavba a představuje moderní novostavbu s osobním vlastnictvím. Nemovitost o dispozici 30 m² je situována na prostorném pozemku o výměře 800 m², což zaručuje dostatek místa pro relaxaci a rozmanité venkovní aktivity. Díky částečné vybavenosti ušetříte čas i starosti spojené s úpravou interiéru a můžete si domov ihned začít užívat. Dům je napojen na obecní vodovod a kanalizace, a elektřinu. Na pozemku je možnost postavit RD cca 70 M2, projekt je k dispozici. Vstup na pozemek přes čp. 8 je zajištěn věčným břemenům jízdy, chůzí a vedením komunikaci.
K nemovitosti náleží také terasa o rozloze 50 m², která je ideální pro letní posezení či grilování v příjemném prostředí, a sklep s rozlohou 12 m², který poskytuje další úložný prostor. V další výhodě nemovitosti je možnost parkování přímo na pozemku, což zajišťuje pohodlné a bezpečné umístění vozidla.
V případě zájmu mě, prosím, kontaktujte skrz zprávy na této komunikační platformě a domluvíme si termín prohlídky.
Parametry nemovitosti
| Dostupné od | 25. 9. 2025 |
|---|---|
| Konstrukce budovy | Dřevostavba |
| Číslo inzerátu | 948570 |
| PENB | B - Velmi úsporná |
| Umístění | Klidná část |
| Plocha pozemku | 800 m² |
| Stav | Novostavba |
|---|---|
| Vybaveno | Částečně |
| Vlastnictví | Osobní |
| Poloha rekreačního objektu | Samostatný |
| Užitná plocha | 30 m² |
| Cena za jednotku | 66 333,33 Kč / m2 |
Co tato nemovitost nabízí?
| Sklep 12 m² | |
| Parkování |
| Terasa 50 m² |
V okolí nemovitosti najdete
Tato nemovitost již od 8 343 Kč měsíčně s roční úrokovou sazbou od 4,79 %.











