
Prodej domu 3+1 • 128 m² bez realitkyBernartice - Svatkovice, Jihočeský kraj
Bernartice - Svatkovice, Jihočeský krajVybaveno • ParkováníTato nemovitost již od 21 452 Kč měsíčně s roční úrokovou sazbou od 4,19 %.
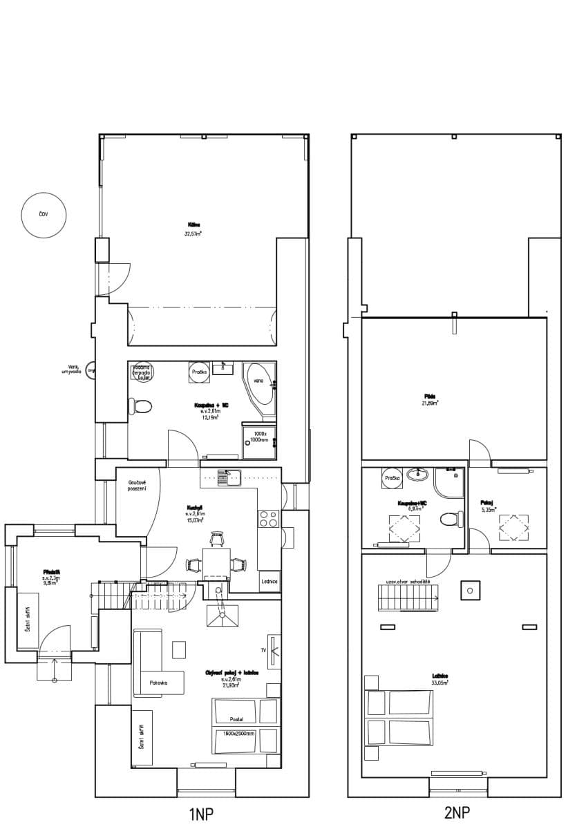
Nabízím k prodeji krásný zateplený kamenný dům v osobním vlastnictví, 20km od Písku, který se vyznačuje skvělou orientací na slunnou okrasnou zahradu s altánkem a komfortně zařízený byt s novou půdní vestavbou. Dům má dispozici 2+1 (třetí pokoj malý), obytná plocha 104m2 s dvěma koupelnami s WC a je ve velmi dobrém stavu. Dům je zateplen a vybaven. Vše to, co je vidět na fotografiích. Je k dispozici i nový interiérový návrh, který ještě více propojí bydlení se zahradou a změní nemovitost zcela v nadčasovou. Několik fotografií v náhledu.
Rozloha domu činí 128 m², přičemž se nemovitost pyšní i pozemkem, celková rozloha pozemku je 683 m². Upravená zahrad poskytuje dostatek prostoru pro zahradní aktivity či další možnosti využití. Provozní stránku zvyšuje možnost parkování přímo před domem, ale pohodlně si lze najet autem velkou bránou z ulice na nádherně zatravněnou plochu.
Energetický štítek budovy s označením B svědčí o její efektivní a úsporné provozní náročnosti. V nemovitosti najdete kvalitní řešení, která spojují historický charakter kamenné stavby s moderními standardy bydlení.
Vytápění je krbovými kamny na dřevo s výměníkem v prostoru obývací části. Nejenom, že rozvede teplo po celém domě, ale přes velké sklo kamen vytvoří příjemnou atmosféru, ideální pro posezení. Elektrická energie - E.ON. Dále je dům napojen na vodu ze studny a již nyní obec oznámila budoucí napojení na veřejný vodovod. Odpadní voda je odvedena do ČOV na pozemku. Okna plastová s izolačním dvojsklem, zateplení celého pláště budovy 10cm minerální vaty, 2 střešní okna.
Dům má obrovský potenciál, lze rozšířit o další přízemní i půdní pokoje (64m2). Ve 3D vizualizaci se změnou dispozice, se obývací část s kuchyní, krbem a jídelnou, přesouvá do výhodnější polohy pro ještě lepší propojení se zahradou a polohou altánku se zděným krbem. Neskutečně vzdušně na Vás bude působit posezení na centrální pohovce nad kterou je otevřený strop až do krovu. Dlouhé zasklení a pozice oken bude se světelnou atmosférou podtrhovat výhled na upravenou zahradu v plném Vašem soukromí, kam sousedé nevidí. Rozměry altánku jsou 6,5x3,6m, takže velice prostorný i třeba pro zaparkování auta nebo motorky.
Výborná dostupnost do Písku, Bechyně, Tábora, Českých Budějovic. Zastávka autobusu v obci.
Parametry nemovitosti
| Stáří | Nad 50 let |
|---|---|
| Stav | Velmi dobrý |
| Dispozice | 3+1 |
| Provedení | Standardní |
| Číslo inzerátu | 970243 |
| PENB | B - Velmi úsporná |
| Umístění | Okraj |
| Plocha pozemku | 683 m² |
| Rizika | Prověřit » |
| Dostupné od | 1. 1. 2026 |
|---|---|
| Konstrukce budovy | Kamenná |
| Vybaveno | Vybaveno |
| Vytápění | Ostatní |
| Vlastnictví | Osobní |
| Poloha domu | Samostatný |
| Užitná plocha | 128 m² |
| Celkem podlaží | 2 |
| Cena za jednotku | 42 891 Kč / m2 |
Co tato nemovitost nabízí?
| Bezbariérový přístup | |
| Parkování |
V okolí nemovitosti najdete
Tato nemovitost již od 21 452 Kč měsíčně s roční úrokovou sazbou od 4,19 %.
Stále hledáte to pravé?
Nastavte si hlídacího psa. Nabídky vybrané na míru dostanete souhrnně 1× denně e-mailem. S Premium profilem máte k ruce hlídačů rovnou 5 a když se něco objeví, informují vás obratem.



















