
Prodej nebytového prostoru • 800 m² bez realitkyJiřího Potůčka, Pardubice - Trnová, Pardubický kraj
Jiřího Potůčka, Pardubice - Trnová, Pardubický krajParkováníTato nemovitost již od 92 235 Kč měsíčně s roční úrokovou sazbou od 4,79 %.
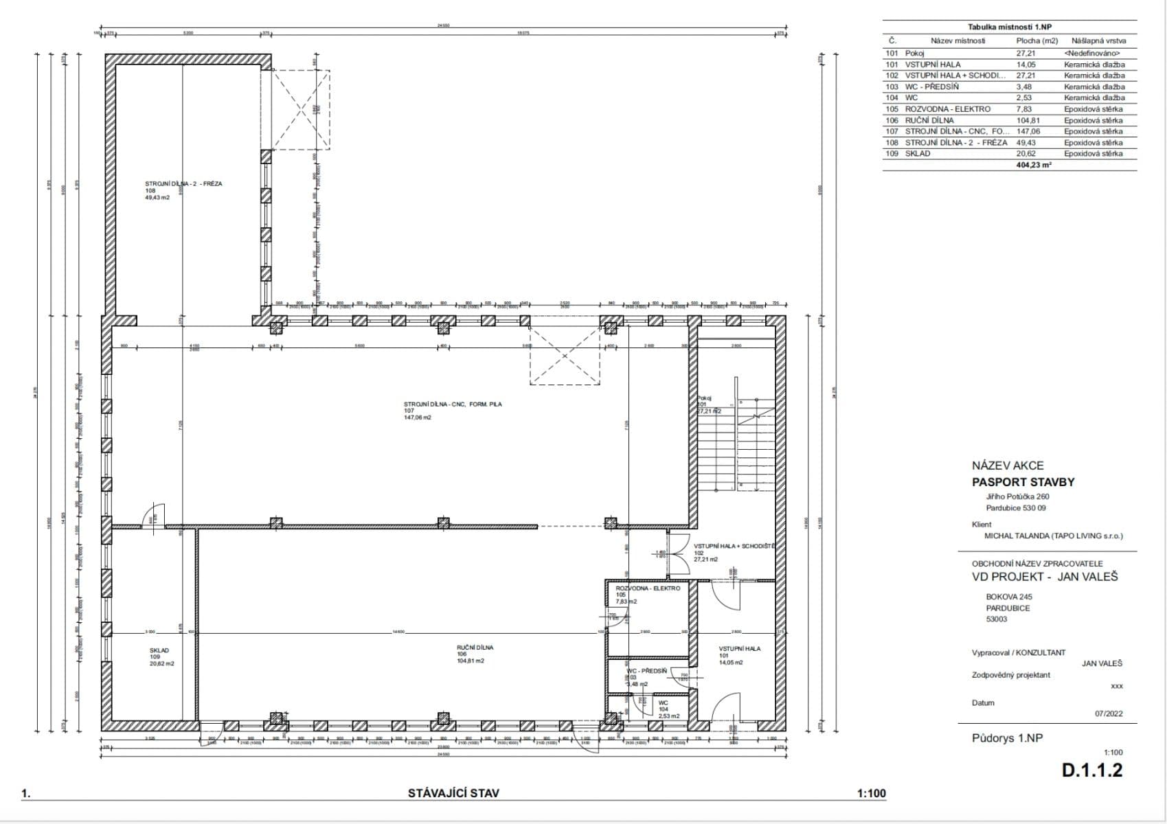
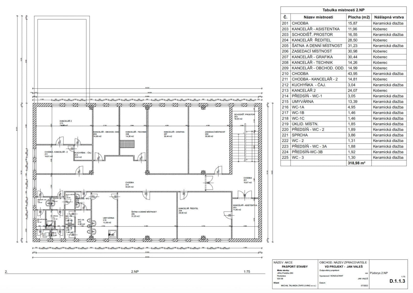
Nabízíme k prodeji administrativně provozní budovu s dílenskými prostory se sociálním zázemím v katastrálním území Trnová, Pardubice, č.p. 260 v dobře dostupné zastavěné části města. Nemovitost se nachází v okrajovém zastavěném území města Pardubic, nedaleko obchodní zóny a je součástí původního areálu, který je přístupný z místní veřejné asfaltové komunikaci. St. parc. č. 390 s výměrou 424 m2 1.NP 379,70 m2 a 2.NP 302,34 m2, st. parc. č. 394 s výměrou 94 m2 (sklad 48,80 m2), pozemková parc. č. 85/15 s výměrou 1 728 m2. Budova byla postavena v r. 1981 jako SOU svářecí školy. Nemovitost odpovídá uvedenému stáří z doby výstavby a je celkově v dobrém stavu. Dále jsou na pozemku stavby ocelového skladu. Přípojky inženýrských sítí: elektrická, vodovodní, kanalizační a teplovodní přípojka. Drátěný plot, zpevněné plochy.
V této lokalitě došlo ke změně ÚP. Výšková hladina nové zástavby max. 4NP bez podkroví, pokud nepřevýší úroveň hřebene nebo římsy původní rekonstruované zástavby, resp. max. výška římsy nové zástavby max. 14 m nad terénem. Koeficient zastavění max. 0,7.
Parametry nemovitosti
| Dostupné od | 9. 3. 2026 |
|---|---|
| Konstrukce budovy | Skeletová |
| Číslo inzerátu | 999322 |
| PENB | C - Úsporná |
| Plocha nebytového prostoru | 800 m² |
| Stav | Dobrý |
|---|---|
| Vybaveno | Nevybaveno |
| Vlastnictví | Osobní |
| Poloha nebytového prostoru | Samostatný |
| Cena za jednotku | 27 500 Kč / m2 |
Co tato nemovitost nabízí?
| Parkování |
V okolí nemovitosti najdete
Tato nemovitost již od 92 235 Kč měsíčně s roční úrokovou sazbou od 4,79 %.




















