Zobrazit mapu
Byty k pronájmu • Německo • Bavorsko • Landkreis Passau • Bad Griesbach i.Rottal
(3 nemovitosti)
Pronájem
Byt
Vybrat nějaké
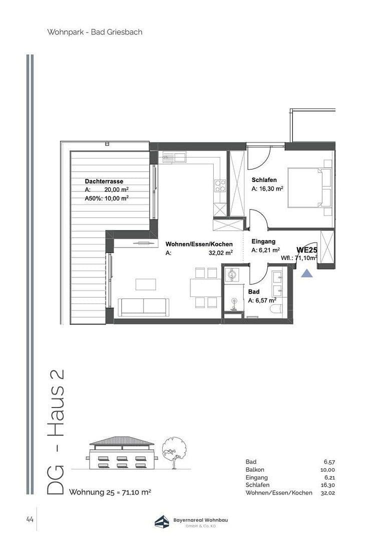
Pronájem bytuAm Steinkart 5b, , Bavorsko
- 2+1
- 72 m²
MHD 4 minuty pěšky • Výtah • Parkování
855 € + 160 €(12 € / m²)
Prohlédněte si další nemovitosti
Kromě pronájmu bytů nabízíme i pronájmy domů. Dále u nás najdete prodeje bytů, prodeje domů a prodeje pozemků.








