
Prodej bytu 3+kk • 100 m² bez realitky, Bádensko-Württembersko
, Bádensko-WürttemberskoMHD do minuty pěšky • VýtahHledáte investici, která spojuje moderní design s příjemnou atmosférou? Tento světlý 3,5-pokojový byt je ideální pro rodiny, páry nebo každého, kdo ocení prostorný domov se stylem a komfortem!
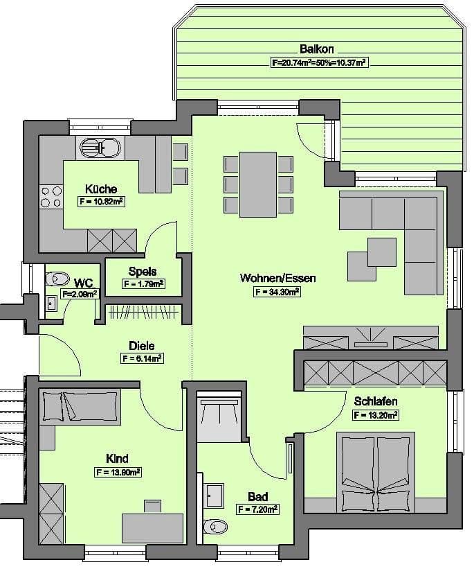
Hlavní přednosti bytu
• Podlahová plocha: 99,81 m²
• Počet pokojů: 3,5
• Prostorný balkon
Vybavení a vlastnosti
• Otevřený obývací a jídelní kout s přímým vstupem na terasu
• 2 ložnice: ideální jako pokoj na spaní a dětský pokoj
• Světelná koupelna se sprchou a samostatná toaleta pro hosty s další sprchou
• Energeticky úsporný: Standard KfW-55 pro nízké náklady na energie
• Podlahové topení: Individuálně ovladatelné v každé místnosti
• Vysoce kvalitní materiály: vinylová podlaha, exkluzivní sanitární vybavení
• Síťová připojení ve všech místnostech (optické připojení)
• Parkování: k dispozici je parkovací místo nebo místo v podzemní garáži
Dostupnost a prohlídka
Tento vysněný byt je k nastěhování ihned a čeká, až se stane vaším novým domovem.
Kontaktujte nás pro prohlídku! Těšíme se na váš dotaz a jsme vám k dispozici pro všechny případné otázky
(pod e-mailem nebo také telefonicky)
Kontaktní osoba: pan Kopp 0175 / 2094326
Nemovitost se nachází v Horb am Neckar - Bildechingen. V docházkové vzdálenosti naleznete několik restaurací, pekáren, supermarketů a kavárnu. V okolí jsou také obchodní centrum, základní škola a mateřská škola. Některé kvalitní zdravotnické služby a různé možnosti pro rekreaci a sport (včetně několika fitness center) jsou též dostupné v blízkém okolí.
Obec Bildechingen se nachází 3,5 km severovýchodně od Horb am Neckar, na jihozápadním okraji vyššího Gäusu, resp. na východním okraji severního Schwarzwaldu, ve výšce 504 m n. m. a má přibližně 2 200 obyvatel.
Vybavení:
• Vyšší vybavení
• Stavební provedení s nejlepšími řemeslníky z regionu
zaručuje vám
• Nejvyšší kvalitu a hodnotovou stabilitu
• Vysoce kvalitní okna s trojitým zasklením /
izolační skleněná okna
• Nejmodernější technika centrálního topení
s regenerační a nákladově úspornou,
nezávislou na oleji nebo plynu
• Podlahové topení s individuálním ovládáním v každé místnosti
• Ručníkova radiátory v koupelnách
• Prostorné okenní plochy
• Hostinská toaleta, sprcha v rovině s podlahou
• Obklady z přírodního kamene
• Samostatný skladovací prostor
• Zdravé klima bydlení díky vysoce kvalitní vnitřní omítce z červeného vápna
• Ekologická masivní stavební technika s cihlovým zdivem z hliněných cihel
• Vysoce kvalitní provedení dle standardu KfW Efektivhaus 55.
V okolí nemovitosti najdete
Stále hledáte to pravé?
Nastavte si hlídacího psa. Nabídky vybrané na míru dostanete souhrnně 1× denně e-mailem. S Premium profilem máte k ruce hlídačů rovnou 5 a když se něco objeví, informují vás obratem.






