
Prodej bytu 4+1 • 100 m² bez realitkyIm Ganggarten 2a, , Porýní-Falc
Im Ganggarten 2a, , Porýní-FalcMHD 2 minuty pěškyNásleduje překlad textu:
Byt, postavený v roce 2004 jako vlastnický byt v udržovaném rodinném domě, spojuje otevřenou, prostornou dispozici s kompaktní efektivitou. Vynikající uspořádání čtyř místností umožňuje flexibilní využití – ideální jak pro rodiny, tak pro kombinaci bydlení a práce z domova. Zvláštním rysem bytu je mimořádně světlý pocit prostoru: okna až od podlahy ke stropu s dvojitým otvíráním zajišťují vysoký přísun denního světla a vytvářejí přívětivou atmosféru. Balkon orientovaný na jih rozšiřuje obytný prostor směrem ven.
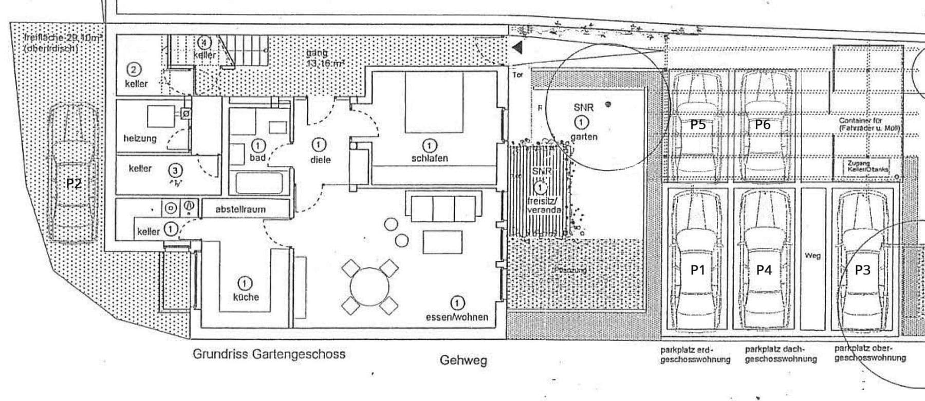
Nemovitost je ve velmi udržovaném stavu a díky vlastnímu sklepnímu prostoru nabízí další úložné možnosti. Přímo u objektu lze volitelně zakoupit až dvě parkovací místa.
Byt disponuje vlastnostmi, které podporují komfortní bydlení do vysokého věku a částečně jej činí bezbariérovým pro seniory:
• Přístupnost: Byt je téměř přístupný přímo ze země. I když objekt není zcela bez pražní, malé výškové rozdíly v přístupové oblasti výrazně usnadňují každodenní život. Jedna ze dvou koupelen je vybavena bezpražní sprchou, což výrazně zvyšuje komfort a bezpečnost při používání koupelny.
Objekt se nachází v klidné obytné čtvrti v osvědčeném městě na Moselle s kompletní infrastrukturou.
• Dostupnost: Město Trier je dosažitelné za méně než 20 minut. Geografická poloha navíc nabízí vynikající spojení pro dojíždějící do Lucemburska.
• Občanská vybavenost: Základní škola, mateřská škola, obchody s denní potřebou a gastronomické provozy se nacházejí přímo na místě.
• Okolí: Čtvrť se vyznačuje klidným obytným prostředím blízko vinic, aniž by postrádala výhody rychlého napojení na regionální centra.
Technické vybavení bytu je navrženo pro pohodlí a dlouhodobou využitelnost:
Budoucnost zabezpečující energetický koncept
Nemovitost je již připravena na budoucí energetické požadavky. Díky stávajícímu podlahovému topení a již vyhrazenému prostoru pro instalaci tepelného čerpadla je technicky snadný přechod na obnovitelné zdroje energie. V současnosti se vytápí olejem.
Komfort: Všechna okna jsou vybavena elektrickými roletami. Náklady na vodu a elektřinu se účtují samostatně pro každou bytovou jednotku.
Sanitární vybavení: Byt má dvě plnohodnotné koupelny – jednu se sprchovým koutem a jednu samostatnou koupelnu s vanou.
Kuchyň: Vestavěná kuchyň patří nájemci a tudíž není součástí prodejní nabídky.
Vlastní využití a plánování: Byt je v současnosti pronajatý. Pro případné vlastníky platí zákonná výpovědní lhůta devíti měsíců, což poskytuje kupujícím spolehlivý plánovací rámec pro stěhování, zatímco probíhající příjmy z nájmu v přechodné fázi přispívají k pokrytí nákladů.
Podmínky: Kupní cena činí 295 000 € s možností dokoupení volitelných parkovacích míst.
Možnost rozšíření: Ve stejném objektu je v současnosti k prodeji další bytová jednotka, což otevírá zajímavé perspektivy pro modely vícegeneračního bydlení nebo kombinaci vlastního bydlení a investičního využití.
V okolí nemovitosti najdete
Stále hledáte to pravé?
Nastavte si hlídacího psa. Nabídky vybrané na míru dostanete souhrnně 1× denně e-mailem. S Premium profilem máte k ruce hlídačů rovnou 5 a když se něco objeví, informují vás obratem.










