Prodej domu 5+1 • 127 m² bez realitky, Dolní Sasko
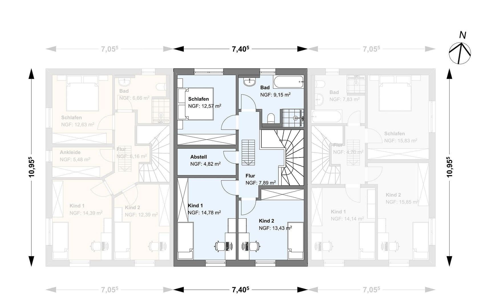
, Dolní SaskoMHD 1 minuta pěšky • ParkováníTento půvabný řadový dům zaujme prostorným dispozicím a atraktivní polohou. Disponuje dvěma obytnými podlažími postavenými v masivní stavbě a jedním nedokončeným podkrovím, které nabízí různé možnosti využití – ať už jako další obytný prostor, místnost pro koníčky nebo úložný prostor. Dům uprostřed řady nabízí v přízemí prostorný obývací-jídelní prostor s kuchyní, technickou místností, pracovnou/pokojem pro hosty nebo dalším ložnicí, hostinským WC se sprchou a halou s šatní skříní. V patře se nacházejí tři ložnice, skladovací místnost a koupelna s denním světlem. Nemovitost je vybavena komfortním podlahovým vytápěním, které zajišťuje příjemné teplo, a elektrickými rolety, jež zvyšují bezpečnost a zajišťují soukromí. Na atraktivním pozemku o rozloze celkem 753 m² vznikají tři moderní řadové domy (východní, střední a západní), které jsou stále k dispozici. Máte-li zájem o řadový dům na konci řady (západní nebo východní), kontaktujte nás, prosím.
Pozemek zůstává jako celek, přičemž každý dům získá vlastní výlučné užívací právo na terasu, zahradu a parkovací místo. Společná stanice pro dálkové vytápění zajišťuje efektivní zásobování energií. Jižní orientace poskytuje dostatek slunečního světla a příjemnou atmosféru v exteriéru. Dispozice a vybavení jsou v současnosti ještě variabilně upravitelné. Všechny domy nabízejí flexibilní dispozice, které lze přizpůsobit vašim přáním. Rovněž je možné vytvořit dvě obytné jednotky v rámci jednoho domu pro optimalizaci nákladů nebo ubytování více generací.
Tato nemovitost nabízí ideální kombinaci obytného komfortu, flexibility a slunné polohy – ideální pro rodiny nebo páry hledající domov s potenciálem. Nepořizujete si zde jen dům, ale architektonicky promyšlené bydlení, které bylo naplánováno s odbornou kompetencí, postaveno místními řemeslníky a profesionálně doprovázeno architektonickou kanceláří – to vše pro nejvyšší kvalitu, transparentnost a dlouhodobou jistotu.
Novostavba "Luhbach Auen" se nachází jižně od Kampweg v Rosdorfu. Atraktivní obec, která vyniká svou klidnou a rodinně přátelskou atmosférou. Poloha nabízí dokonalou rovnováhu mezi přírodou a blízkostí k městu. Obchodní možnosti, školy, mateřské školky a zdravotní péče jsou snadno dostupné. Místo disponuje dobrou dopravní dostupností, což usnadňuje dojíždění do nedalekého města Göttingen. To činí Rosdorf ideálním místem pro rodiny, které hledají klidné bydlení, ale přesto oceňují blízkost městských služeb. Kombinace přírody, dobré infrastruktury a přátelského sousedství činí Rosdorf tak oblíbeným. Zde naleznete domov v klidném, ale zároveň dobře dostupném místě.
Díky optickému vláknu v novostavbě je možné získat 1 Gigabitový domácí internetový připojení. V kupní ceně jsou mimo jiné zahrnuty podíl na pozemku, parkovací místo pro automobil, fotovoltaická elektrárna, dlažba příjezdové cesty a připojení domu jako elektřina, voda, dálkové vytápění a telekomunikace. Budova je zásobována dálkovým vytápěním od společnosti Biogas Göttingen GmbH.
Finanční výhoda díky standardu úsporného domu KfW
Budova splňuje energeticky úsporný stavební standard Effizienzhaus 55, což umožňuje přístup k nízkourokovým úvěrům na podporu od KfW. Aktuálně jsou podpůrné úvěry částečně dostupné již od přibližně 1 % roční úrokové sazby – což je výrazná výhoda oproti běžným úvěrům na financování výstavby. Využijte tuto příležitost pro dlouhodobě výhodné financování.
Podrobnější informace obdržíte přímo od prodávajícího.
Nebudou vám vznikat žádné poplatky makléři nebo provize.
Těšíme se na váš zájem. Prosíme o pochopení, že odpovídáme pouze na dotazy s úplným jménem, telefonním číslem a e-mailovou adresou. Samozřejmě budou tyto kontaktní údaje důvěrně zacházeny a nebudou předány třetím stranám.
Žádáme, aby se makléři zdrželi svých dotazů.
V okolí nemovitosti najdete
Stále hledáte to pravé?
Nastavte si hlídacího psa. Nabídky vybrané na míru dostanete souhrnně 1× denně e-mailem. S Premium profilem máte k ruce hlídačů rovnou 5 a když se něco objeví, informují vás obratem.











