Prodej domu 5+1 • 150 m² bez realitky, Severní Porýní-Vestfálsko
, Severní Porýní-VestfálskoMHD 1 minuta pěšky • Parkování • GarážModernizovaný rodinný dům v Rheine Hauenhorst
- Bez provize
- K nastěhování dle dohody
- Energetická třída C
Přehled:
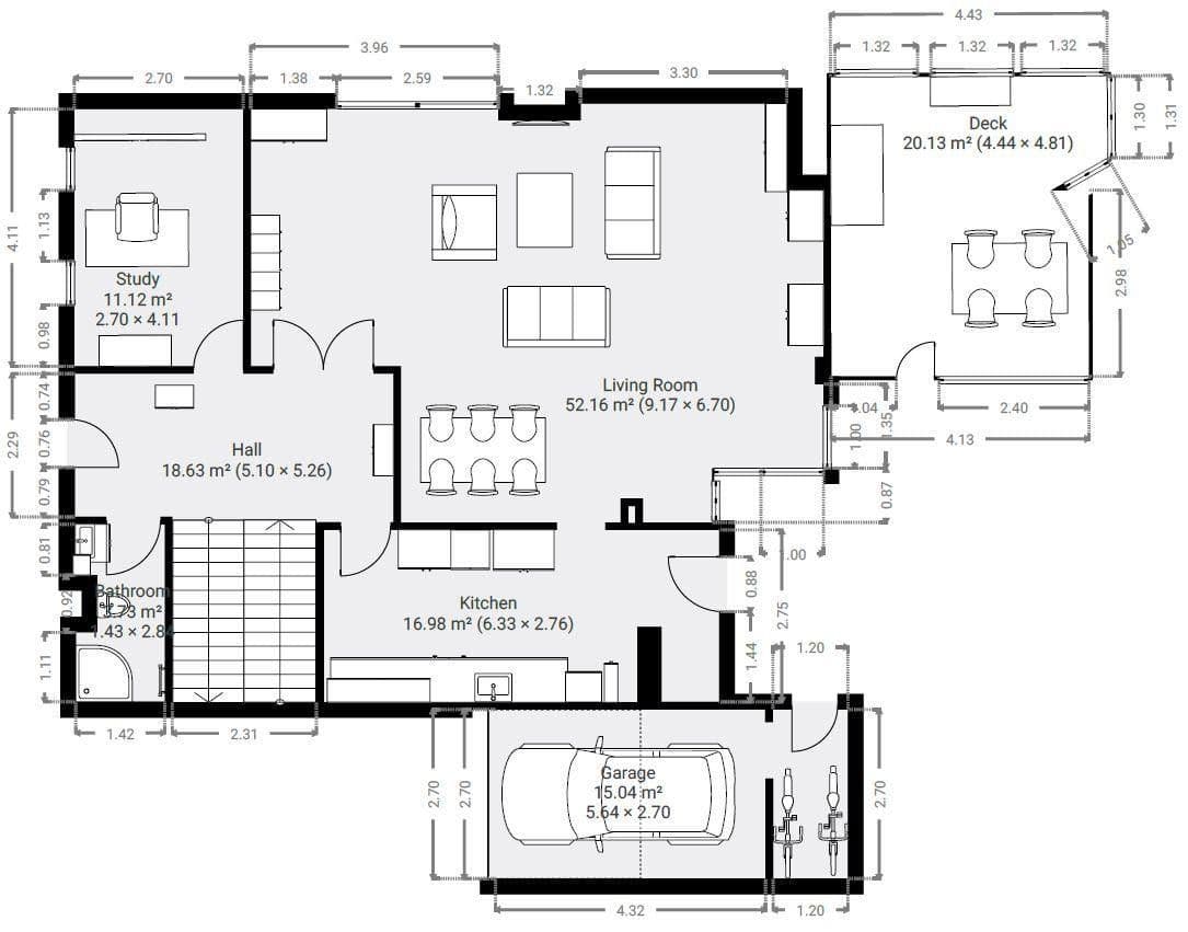
Rodinný dům, postavený v roce 1978, s přibližně 150 m² obytné plochy na pozemku o výměře 569 m². Nemovitost je kompletně s podkrovím a disponuje garáží a několika parkovacími místy.
Popis:
Tento pečlivě udržovaný a modernizovaný rodinný dům zaujme promyšleným konceptem dispozic, kvalitními detailními prvky výbavy a příjemnou atmosférou obytného prostoru. Jasná struktura dispozic umožňuje jak společné bydlení, tak i soukromé útočiště.
Nemovitost se nachází ve čtvrti Hauenhorst v Rheinu, jedné z nejoblíbenějších a nejvíce rodinně orientovaných lokalit města. Pokojné obytné ulice, dobrá infrastruktura a rychlé spojení s centrem města charakterizují tuto oblast.
Výbava a dispozice:
Přízemí: Prostorný obývací a jídelní pokoj s podlahovým vytápěním, pracovní pokoj nebo ložnice s dvojkřídlou vestavnou skříní, luxusní vestavěná kuchyně značky Nobilia s černými pracovními deskami z granitu a vestavěnými spotřebiči značky Siemens, modernizovaná koupelna se sprchou, toaletou bez obrysového rámu, umyvadlem a podlahovým vytápěním.
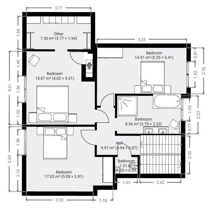
Patro: Tři ložnice, každá s vestavěnou šatní skříní, modernizovaná koupelna se sprchou, vanou, dvěma umyvadly a podlahovým vytápěním, a samostatná toaleta pro hosty.
Suterén: Celý suterén s prostornými úložnými a skladovacími prostory.
Exteriér:
Zavřená, plně upravená zahrada poskytuje chráněné útočiště. Přístřešná terasa umožňuje využití venkovního prostoru bez ohledu na počasí. Za garáží se nachází další úložný prostor pro kola a zahradní nářadí.
Závěr:
Vysoce kvalitně modernizovaný rodinný dům ve vyhledávané lokalitě Rheine-Hauenhorst. Prostorné míry, moderní vybavení a klidné obytné prostředí činí z této nemovitosti atraktivní volbu pro rodiny s dlouhodobými nároky.
V okolí nemovitosti najdete
Stále hledáte to pravé?
Nastavte si hlídacího psa. Nabídky vybrané na míru dostanete souhrnně 1× denně e-mailem. S Premium profilem máte k ruce hlídačů rovnou 5 a když se něco objeví, informují vás obratem.




















