Prodej pozemku • 449 m² bez realitkyGeroldgasse Salzburg Aigen Salzburg 5026
Tento objekt vyžadující rekonstrukci v prémiové lokalitě Aigen nabízí dokonalý základ pro vysněný domov.
Díky severovýchodní poloze původní budovy a jihozápadní orientaci zelených ploch je pozemek optimálně využit.
Klidná a slunná lokalita zve k odpočinku ve velké zahradě.
• Velikost pozemku: 449 m²
• Aktuální obytná plocha cca 120 m²
• Možnost začlenění přístavby stodoly v přízemí
• K dispozici velký, nevybudovaný podkrovní prostor
• Možnost 5 či 6 pokojů
• Částečně zkrojený sklep – malý sklep o velikosti cca 25 m² k dispozici
• Prostorná dvojitá garáž o velikosti cca 33 m² postavená v roce 1995
Městská část Aigen patří k nejexkluzivnějším rezidenčním oblastem Salzburgu a zaujme svou zelenou, klidnou okolní krajinou u paty Gaisbergu. Historické vily, rozsáhlé zahrady a blízkost řeky Salzach formují jedinečný pocit bydlení. Zároveň je staré město dosažitelné během několika minut, a tak jsou příroda a městská infrastruktura ideálně propojeny.
• Naprosto klidná a centrální lokalita v Aigenu, jen 200 metrů od Salzachu
• Centrum Salzburgu je dosažitelné během několika minut na kole
• Městský autobus, vlak (S-Bahn), supermarket, lékaři: vše v dosahu během několika minut chůze
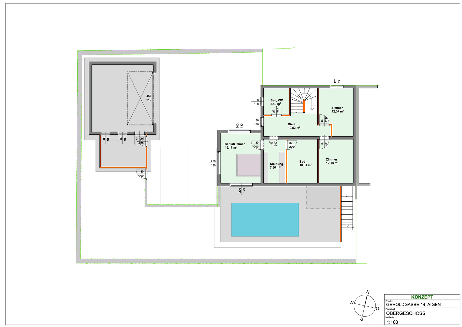
* Koncept plán jako inspirace pro rekonstrukci v rozsahu 185 m² obytné plochy byl vypracován a je zobrazen v půdorysech
Kontakt:
Christoph Stangl
0676 5867373
COCCON GmbH
Mayrwiesstraße 27
5300 Hallwang/Mayrwies
coccon.at
Parametry nemovitosti
| Číslo inzerátu | 1000652 |
|---|---|
| Cena za jednotku | 1 993 € / m2 |
| Plocha pozemku | 449 m² |
|---|
Co tato nemovitost nabízí?
| MHD 6 minut pěšky |
V okolí nemovitosti najdete
Stále hledáte to pravé?
Nastavte si hlídacího psa. Nabídky vybrané na míru dostanete souhrnně 1× denně e-mailem. S Premium profilem máte k ruce hlídačů rovnou 5 a když se něco objeví, informují vás obratem.







