
Pronájem bytu • 15 m² bez realitkyStuttgart Weilimdorf Baden-Württemberg 70499
Stuttgart Weilimdorf Baden-Württemberg 70499MHD do minuty pěškyZářivý pokoj o rozloze 15 m² ve sdíleném bytě, který byl nedávno zrenovován, v 6-členné WG s velkou terasou a zahradou. Moderní kuchyně, pračka a sušička. Klidná lokalita u Löwenmarkt s perfektní dostupností – jen 15 minut od hlavního nádraží. Teplý nájem 550 €.
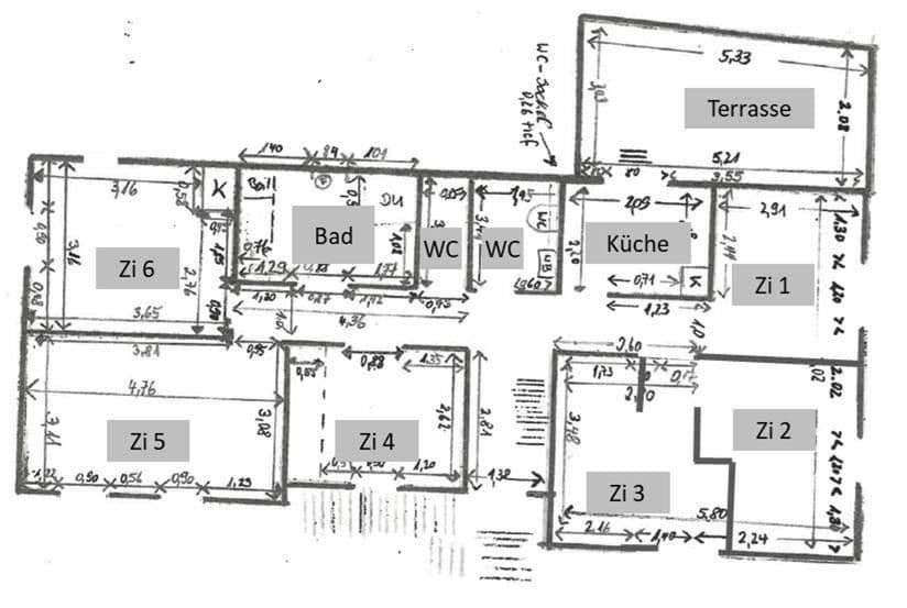
Od 1.4.2026 se uvolní světlý pokoj 15 m² ve sdíleném bytě, který se nachází v klidném a čerstvě zrenovovaném bytě.
Byt byla přestavěn designérkou barev, která mu dodala pestrý a stylový vzhled, a spojuje kouzlo starší výstavby s moderním vybavením. Je ideální pro studenty, učně nebo začínající profesionály, kteří chtějí bydlet centrálně a zároveň v klidu.
Byt:
• Celková plocha 113 m²
• 6 pokojů ve WG
• cca 40 m² společných prostor
Společné prostory:
• moderní, plně vybavená kuchyně
• koupelna se sprchou a vanou
• dvě samostatná WC
• chodba a vstupní hala
• velká terasa s designovým gaučem
Kuchyně je vybavena:
• několika lednicemi
• myčkou nádobí
• troubou a sporákem
Zvláštním lákadlem je velká terasa, která zve k odpočinku. Kromě toho je k dispozici zahradní část se sedacími místy.
WG dále nabízí:
• vlastní pračku a sušičku (pouze pro WG)
• kryté místo na kole s omezeným výhledem
Budova pochází z 50. let – pevně postavená a udržovaná – a spojuje klasický půvab domu s kreativními a pestrými detaily uvnitř.
Nájem:
• 450 € studený nájem
• 100 € poplatky za služby
• Teplý nájem: 550 €
Pronájem přímo od soukromého vlastníka – žádné poplatky makléři.
Život ve WG:
V současnosti v WG bydlí pět mladých obyvatel ve věku 18 až 25 let – studenti a učni.
Atmosféra je:
• přátelská
• uvolněná
• respektující
Není to párty-WG, ale ani čistě účelová komunita. Každý má svůj vlastní život a zároveň si váží příjemného společného soužití.
V domě se nachází ještě jedna mladá WG v předbudově. Zahradu a dvůr mohou využívat oba byty.
Byt se nachází velmi centrálně u Löwenmarkt s vynikající infrastrukturou.
Metro jezdí zhruba každých 10 minut přímo na hlavní nádraží a na veletrh.
Doba cesty na hlavní nádraží je přibližně 15 minut.
V bezprostředním okolí se nachází:
• Lidl, Rewe a dm
• obchody s bioprodukty
• pošta a lékaři
• fitness centra
• kavárny a restaurace
• obchod s vinylovými deskami „Löwen-Records“
Lokalita spojuje klidné bydlení s velmi dobrou dostupností do centra města.
Vybavení:
• velká terasa
• možnost využití zahrady
• moderně vybavená vestavěná kuchyně
• myčka nádobí
• pračka a sušička (pouze pro WG)
• koupelna se sprchou a vanou
• dvě samostatná WC
• kryté, nenápadné místo na kole
Poplatky za služby zahrnují:
• vodu
• plyn
• poplatky za společné prostory domu
• standardní spotřebu elektřiny (také v prádelně)
Nejsou zahrnuty:
• poplatky za GEZ (licence pro veřejné vysílání)
• WLAN (bude organizováno a sdíleno v rámci WG)
Máte-li zájem, napište prosím krátce:
• svůj věk
• studium / výcvik / profesi
• požadované datum nastěhování
• pár slov o sobě
• co je pro vás při soužití ve WG důležité
Čím osobnější bude vaše zpráva, tím lépe budeme moci vyhodnotit, zda do WG zapadnete a budete se tam cítit dobře.
Parametry nemovitosti
| Stáří | Nad 50 let |
|---|---|
| Vybaveno | Nevybaveno |
| Číslo inzerátu | 1000855 |
| Cena za jednotku | 30 € / m2 |
| Dostupné od | 1. 4. 2026 |
|---|---|
| Podlaží | 1. podlaží |
| Užitná plocha | 15 m² |
Co tato nemovitost nabízí?
| Terasa |
| MHD 0 minut pěšky |
V okolí nemovitosti najdete
Stále hledáte to pravé?
Nastavte si hlídacího psa. Nabídky vybrané na míru dostanete souhrnně 1× denně e-mailem. S Premium profilem máte k ruce hlídačů rovnou 5 a když se něco objeví, informují vás obratem.


















