Pronájem domu 5+1 • 133 m² bez realitkyWolfsburg Wolfsburg Niedersachsen 38440
Wolfsburg Wolfsburg Niedersachsen 38440MHD 1 minuta pěšky • ParkováníModerně zrekonstruovaný rodinný dům s chytrou energetikou v centru Wolfsburgu s velkou zahradou, fotovoltaickou elektrárnou a infrastrukturou pro domácí kancelář. 25 kW fotovoltaická elektrárna s bateriovým úložištěm, wallbox pro elektromobily, gigabitová síť ve všech místnostech a kompletní energetická rekonstrukce. Prostorné uspořádání s podkrovním studiem, terasou a 64 m² užitkového sklepa. Ideální pro rodiny nebo pracující, kteří vyžadují komfort, moderní techniku a udržitelnost.
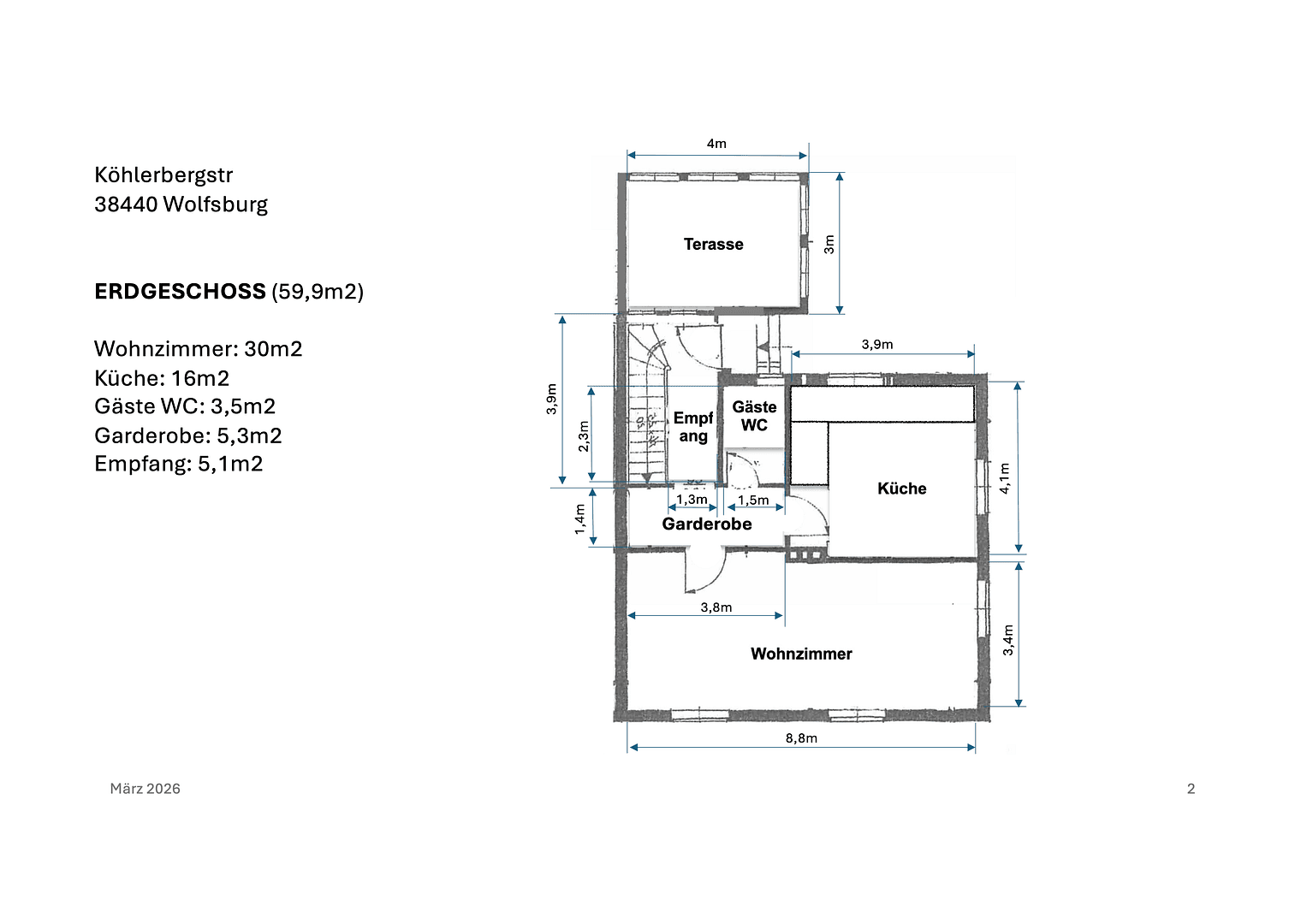
Přízemí: obývací pokoj, moderní kuchyně, hostinské WC (60 m²)
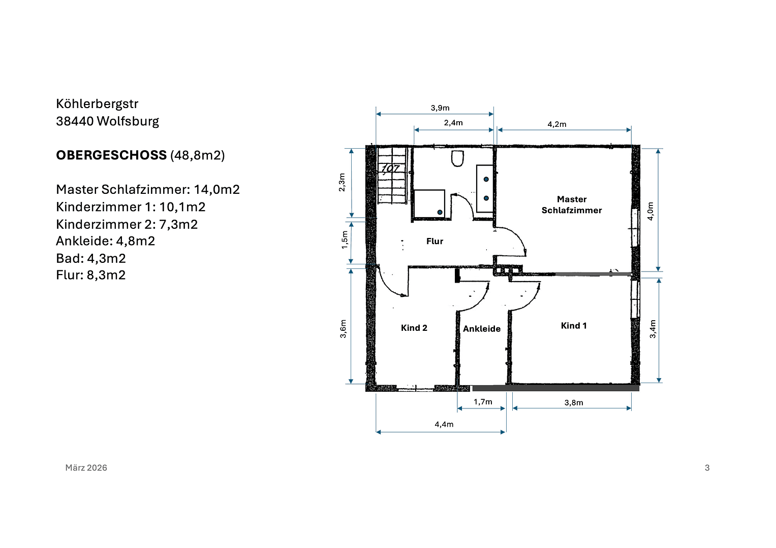
Patro: 3 ložnice a moderní koupelna (48,8 m²)
Podkrovní studio: klimatizovaný prostor – ideální pro domácí kancelář (18 m²)
Sklep: pokoj pro koníčky, prádelna, úložiště na kola a technická místnost (64 m²)
Nemovitost se nachází v centrální a přitom klidné lokalitě Wolfsburgu u Köhlerbergu. Volkswagen, centrum, školy, mateřské školy i obchody jsou rychle dostupné. Lokalita nabízí ideální kombinaci městského života a blízkosti přírody.
Tato vysoce kvalitní polodům, kompletně zrekonstruovaná v roce 2024, spojuje moderní obytný komfort s udržitelným zásobováním energií a výjimečně kvalitní technickou infrastrukturou. Na přibližně 591 m² pozemku s okolo 133 m² obytné plochy nabízí dům moderní domov pro rodiny nebo páry, kteří kladou důraz na energetickou efektivitu, komfort a centrální polohu.
Prostorná zahrada poskytuje dostatek soukromí a je kompletně oplocená. Velká terasa zve k relaxaci venku. Samostatná budova pro techniku poskytuje další úložný prostor pro kola a zahradní nářadí.
• Vybrané vybavení v celém domě
• 25 kW fotovoltaická elektrárna s 10 kWh bateriovým úložištěm
• Model nájemního proudu s 10% slevou na místní tarif elektřiny
• 3 parkovací místa přímo na pozemku
• 11 kW wallbox pro elektromobily
• Gigabitová Ethernet síť ve všech místnostech
• Televizní přípojka ve všech pokojích
• Klimatizované podkrovní studio – ideální jako domácí kancelář
• Elektrické rolety na všech oknech
• Modernizované koupelny s umyvadlovým nábytkem
• 2 hostinská WC, v suterénu a v přízemí
• Vysoce kvalitně vestavěná kuchyň s indukční varnou deskou, troubou, myčkou a mikrovlnkou od prestižních značek
• 64 m² zcela obložený sklep s prostorem pro koníčky a úložištěm na kola
• Velká oplocená zahrada s 12 m² zastřešenou prosklenou terasou
Výkonná fotovoltaická elektrárna s bateriovým úložištěm umožňuje udržitelné zásobování energií a výrazně snižuje náklady na elektřinu. Nájemníci tak mohou získat elektřinu přímo ze své střechy za atraktivních podmínek.
Fixní měsíční platba za elektřinu: přibližně 82 EUR/měsíc včetně 7,50 EUR základního poplatku podle individuálního tarifu LSW.
V okolí nemovitosti najdete
Stále hledáte to pravé?
Nastavte si hlídacího psa. Nabídky vybrané na míru dostanete souhrnně 1× denně e-mailem. S Premium profilem máte k ruce hlídačů rovnou 5 a když se něco objeví, informují vás obratem.
































