Pronájem nebytového prostoru • 73 m² bez realitkyInnsbruck Gewerbegebiet Mühlau/Arzl Tirol 6020
Innsbruck Gewerbegebiet Mühlau/Arzl Tirol 6020MHD 1 minuta pěšky • VýtahZískává se k pronájmu kvalitně provedená, univerzálně využitelná komerční/skladová plocha přímo ulice Haller vnitroblíže města Innsbruck. Jednotka se nachází v 1. suterénu a je pohodlně přístupná výtahem (přízemí → 1. suterén) – ideální pro uživatele hledající čistý prostor.
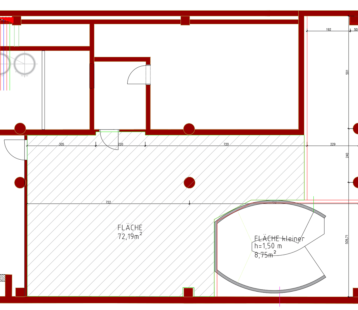
Jednotka nabízí užitnou plochu přibližně 72,19 m² s prostornými, dobře přístupnými částmi.
Provádění je – jak je patrné z fotografií – moderní a kvalitní: nově zrekonstruovaná podlaha a elektroinstalace, profesionální osvětlení a velmi upravený celkový dojem. Díky tomu se prostor hodí nejen jako sklad/archiv, ale po domluvě i jako showroom, ateliér, studio, dílna pro lehké práce nebo komerční prostory pro samostatně výdělečně činné osoby (např. poradenství, projektová činnost, prezentace produktů, online obchod se skladováním).
Volitelně lze po domluvě pronajmout další parkovací místa pro automobily, garážová stání a další sklepní prostory. Možnost nastěhování je ihned k dispozici po domluvě.
Ulice Haller patří k zavedeným dopravním tepnám města a spojuje centrální části Innsbrucku se východními částmi města a okolím směrem k Hall.
Pro zákazníky, zaměstnance i dodavatele to znamená: rychlou dostupnost, dobrou orientaci a polohu, která se hodí jak pro komerční využití, tak i pro logisticky orientované procesy (dodávka/vyzvednutí po domluvě). Spojení s nadregionální silniční sítí je pohodlné, což činí prostor zajímavým i pro osoby, které pravidelně přesouvají materiál nebo pracují na termíny.
Dostupnost v rámci Innsbrucku je také výhodná: Díky umístění na hlavní silnici jsou zajištěny krátké vzdálenosti směrem do centra, do komerčních oblastí i do okolních obcí. Po domluvě jsou k dispozici další možnosti parkování/garáže, což každodenní využití dále usnadňuje.
Přístup výtahem z přízemí do 1. suterénu (pohodlný, téměř bezbariérový přístup)
Kvalitní, velmi upravené provedení (reprezentativní vzhled)
Robustní, nově zrekonstruovaná podlaha – ideální pro sklad/showroom/pracovní prostor
Profesionální osvětlení stropu (kolejnicový systém/spoty) pro dobrou osvětlenost
Flexibilní dispozice prostor: prostorné hlavní části + přilehlý prostor.
Volitelně k doplnění: parkovací místa/garážová stání a další sklepní prostory (po domluvě).
Parametry nemovitosti
| Stáří | Nad 50 let |
|---|---|
| Stav | Po rekonstrukci |
| Číslo inzerátu | 1002154 |
| Cena za jednotku | 13,34 € / m2 |
| Dostupné od | 12. 4. 2026 |
|---|---|
| Podlaží | Podlaží neuvedeno |
| Plocha nebytového prostoru | 73 m² |
Co tato nemovitost nabízí?
| Sklep | |
| Výtah |
| MHD 1 minuta pěšky |
V okolí nemovitosti najdete
Stále hledáte to pravé?
Nastavte si hlídacího psa. Nabídky vybrané na míru dostanete souhrnně 1× denně e-mailem. S Premium profilem máte k ruce hlídačů rovnou 5 a když se něco objeví, informují vás obratem.


