
Pronájem kanceláře • 500 m² bez realitkyLondoner Ring 105 Ludwigshafen am Rhein Pfingstweide Rheinland-Pfalz 67069
Londoner Ring 105 Ludwigshafen am Rhein Pfingstweide Rheinland-Pfalz 67069MHD 1 minuta pěšky • Parkování • GarážLaboratoř, ordinace, kanceláře a čistá místnost v Ludwigshafen-Pfingstweide
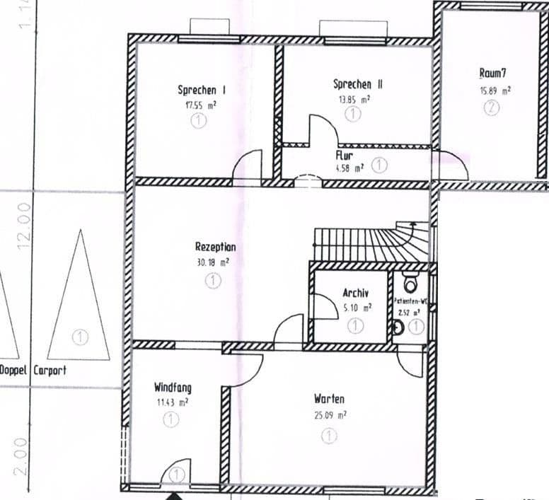
K pronájmu jsou k dispozici různě využitelné prostory vhodné jako laboratoře, ordinace, kanceláře a sklady v 67069 Ludwigshafen (Pfingstweide). Prostory jsou ideální pro podniky z oblasti medicínské techniky, biotechnologií, life sciences, pro lékařské či terapeutické ordinace, stejně jako pro laboratoře či výzkumné instituce.
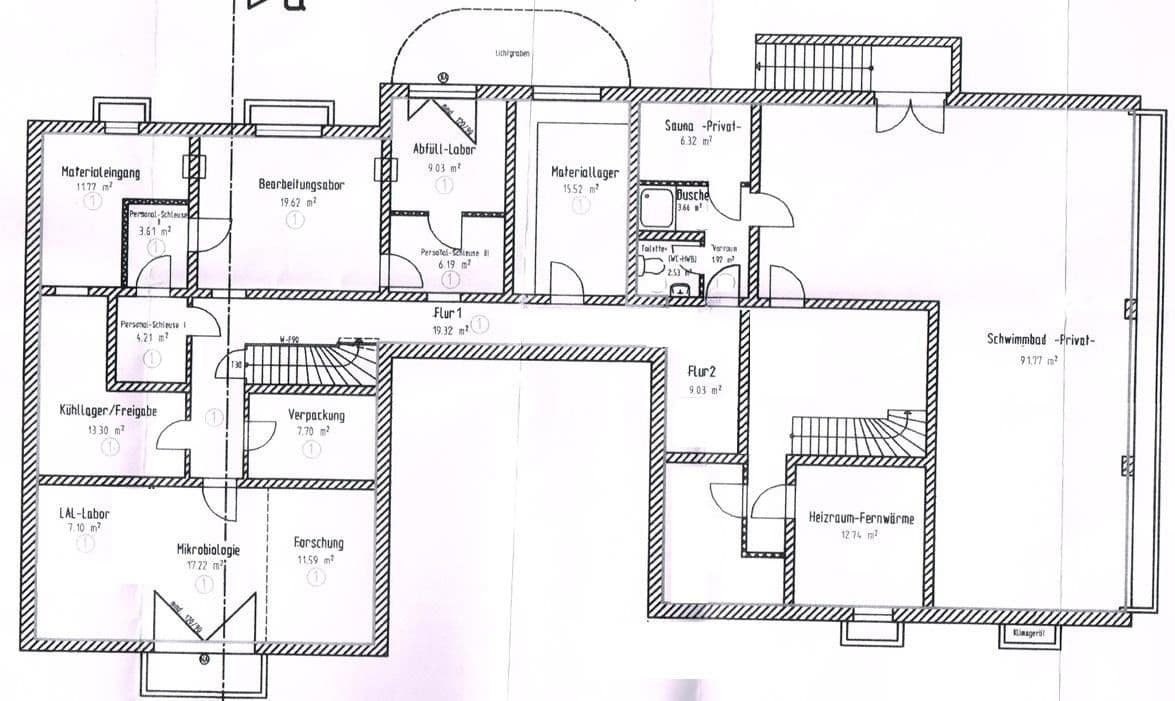
Kombinace bydlení a pracovního prostoru v budově je také možná. V suterénu je navíc možné pronajmout velkou místnost s přibližně 3,3 m x 9,5 m velkým bazénem včetně sauny, což je volitelná nabídka.
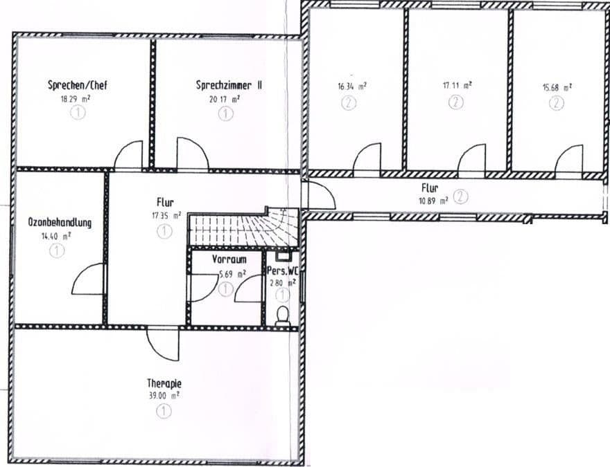
Celkem je k dispozici přibližně 500 m², rozdělených mezi suterén, přízemí a patro, skládajících se z laboratoří, ordinací, kanceláří a skladových prostor. Nájemné činí přibližně 10,00 €/m² a je vyjednatelné v závislosti na pronajaté ploše. Uvedená cena v exposé se vztahuje na ordinace v přízemí; prostory lze po dohodě rozdělit.
I v suterénu se nacházejí plně využitelné laboratoře, které jsou obzvláště vhodné pro laboratorní, skladové nebo technické účely.
Část prostor je již vybavena, neboť nábytek a laboratorní zařízení zůstaly v budově po předchozím nájemci. Patří sem mimo jiné:
• Laboratorní skříně / vysoké skříně
• Chladničky
• Bezpečnostní pracovní stoly a laboratorní pracovní místa
Některé kusy vybavení lze po dohodě převzít, přizpůsobit nebo obnovit.
Vybavení a přednosti
• Flexibilní využití jako laboratoře, ordinace, kanceláře nebo sklady
• Celková plocha cca 500 m², po dohodě rozdělitelná
• Laboratoře také v suterénu
• Částečně vybaveno / s existujícím laboratorním vybavením
• Vodovodní přípojky v několika místnostech
• Síťová kabeláž ve všech místnostech
• Světlé místnosti s velkými okenními plochami
• Samostatný vstupní prostor
• Možnost realizace sanitárních a čajových koutků
• Parkovací možnosti u objektu
• Dobrá dopravní dostupnost (A6, A650, veřejná doprava)
Lokalita
Objekt se nachází v Ludwigshafen-Pfingstweide, ve dobře dostupné a zavedené oblasti s rychlým spojením do regionu Rýn-Neckar.
Kontakt
Máte-li zájem nebo potřebujete další informace, neváhejte nás kontaktovat:
+49 176 78150188
Parametry nemovitosti
| Stáří | Nad 50 let |
|---|---|
| Číslo inzerátu | 1002165 |
| Cena za jednotku | 0 € / m2 |
| Stav | Dobrý |
|---|---|
| Plocha kanceláře | 500 m² |
Co tato nemovitost nabízí?
| Bezbariérový přístup | |
| Garáž | |
| Parkování |
| Sklep | |
| MHD 1 minuta pěšky |
V okolí nemovitosti najdete
Stále hledáte to pravé?
Nastavte si hlídacího psa. Nabídky vybrané na míru dostanete souhrnně 1× denně e-mailem. S Premium profilem máte k ruce hlídačů rovnou 5 a když se něco objeví, informují vás obratem.
































