Prodej nebytového prostoru • 2000 m² bez realitky, Hessen
, HessenMHD 2 minuty pěškyNa prodej od soukromníka, * BEZ PROVIZE *
je k mání multifunkční obytný a komerční objekt v průmyslové zóně Dieburg.
Ať už jako sklad, poštovní obchod, automobilový servis, řemeslná dílna, maloobchod, gastronomie, sport, rekreační zařízení apod., zde je mnoho možností. Máte tu příležitost se plně rozvinout. Parkovací místa jsou hojně k dispozici. Navíc tento objekt zahrnuje obytné prostory, takže kombinace práce a bydlení je jednoduchá. Dům není pronajatý a bude předán volně.
Velikost pozemku: 2000 m²
Typ stavby: Ytong; rok dokončení výstavby: 1985
Hala: se sekčními rolovacími vraty (4 x 3,7 m); strop je momentálně snesen,
Osvětlená výška: cca 3,67 m, výška okapu cca 4,87 m, výška krovu cca 5,02 m
Nemá sklep
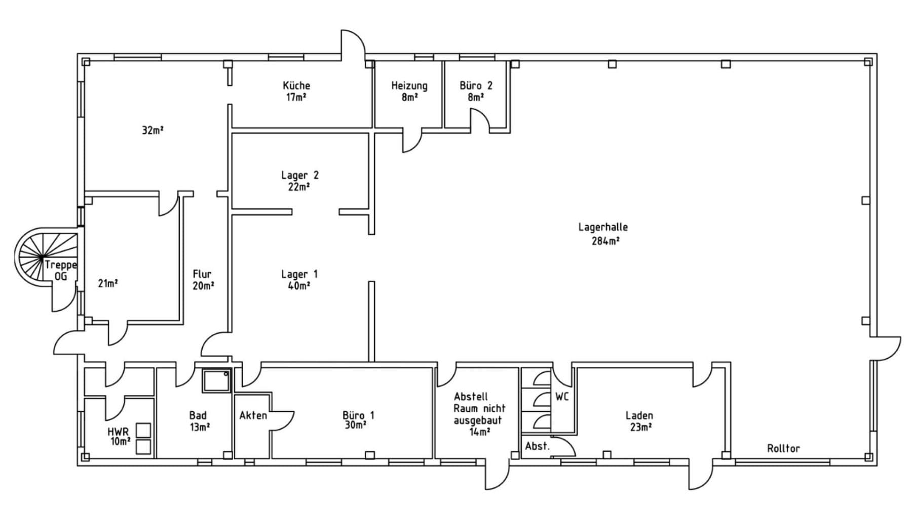
Celková skladová plocha: 346 m² – vytápěná
Kancelář: 30 m²
Místnost pro pauzu personálu: 7,5 m²
Toalety pro personál
Místnost pro topení
Prodejní prostor: 23 m²
Úložný prostor: 15 m² (nevybudovaný)
Dále:
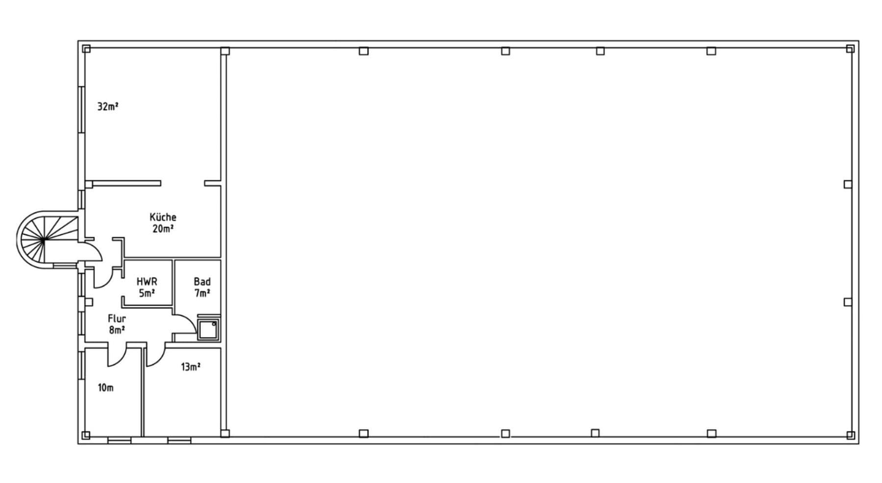
Suterén: kancelářské prostory s kuchyní, WC, odpočinkovými místnostmi, přízemí cca 110 m²
Patro: byt s kuchyní, koupelnou/WC, kanceláří cca 95 m²
Pozemek je kompletně oplocen s posuvnou branou o výšce 6 m,
cca 26 parkovacích míst pro osobní vozidla.
Zadní část pozemku je v současnosti využívána jako zahrada (cca 480 m²).
Další zástavba by mohla být případně možná.
Tank na zkapalněný plyn o objemu 4200 litrů
Topení: plynová kotelna od 08/2010 s centrálním zásobením teplou vodou (200 L),
spotřeba energie cca 89 kWh/m²
Novinka v roce 2024/25: přívod vody a 2× balkonová elektrárna
Energetický štítek je k dispozici
Veškeré údaje jsou poskytovány bez záruky na jejich správnost a úplnost.
Podrobný popis objektu s adresou a kontaktními údaji obdržíte po zaslání vaší kompletní adresy.
Dopravně výhodná poloha v Dieburgu, průmyslová zóna sever – ideálně s dobrou příjezdovou cestou.
Před podáním žádosti prosím zkontrolujte, zda je objekt zásadně vhodný pro vaše účely a zda lze získat financování pro komerční nemovitost.
Prohlídky interiéru jsou možné pouze po předložení aktuálního potvrzení o financování.
Děkuji za pochopení.
Parametry nemovitosti
| Stáří | Nad 50 let |
|---|---|
| Číslo inzerátu | 1002169 |
| Plocha pozemku | 2 000 m² |
| Stav | Dobrý |
|---|---|
| Plocha nebytového prostoru | 2 000 m² |
| Cena za jednotku | 445 € / m2 |
Co tato nemovitost nabízí?
| Bezbariérový přístup | |
| MHD 2 minuty pěšky |
| Terasa |
V okolí nemovitosti najdete
Stále hledáte to pravé?
Nastavte si hlídacího psa. Nabídky vybrané na míru dostanete souhrnně 1× denně e-mailem. S Premium profilem máte k ruce hlídačů rovnou 5 a když se něco objeví, informují vás obratem.














