Prodej domu 4+1 • 170 m² bez realitky, Dolní Sasko
, Dolní SaskoMHD 2 minuty pěšky • ParkováníTento půvabný dům se slámovou střechou se nachází v srdci Luhmühlen.
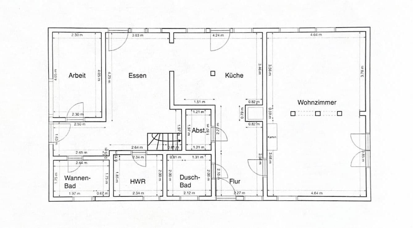
V roce 2007 byl dům přeměněn z dvojrodinného domu na rodinný dům. Půdorys byl upraven a vznikly velké, rodině přátelské prostory.
V centru domu se nachází srdce domu, velká obytná kuchyň. Vesnická, světle zelená kuchyň byla nově zrekonstruována v roce 2018 a nabízí velké množství úložného prostoru. Odtud je přímý vstup na jižní terasu a do krásné zahrady.
Kuchyň je vybavena sporákem s indukční deskou, myčkou na nádobí a ledničkou. Domácí prádelna nabízí dostatek prostoru pro mrazák, pračku a sušičku.
V přízemí se nachází krásná široká podlaha z dubových parket, s výjimkou koupelen a obývacího pokoje (dlažba a laminát). Ve většině přízemí, kromě obývacího pokoje, je podlahové vytápění.
Sprchový kout i vana jsou světlé a moderní.
Na šikmé straně směřující na západ se nachází velký, útulný obývací pokoj s krbem. Zde byla částečně instalována půdorysná okna.
Další menší místnost, která je momentálně šatnou, se nachází na straně orientované na východ.
Hezkým dřevěným schodištěm se dostanete do patra. Tam se nacházejí ještě další dvě velkorysá zařízení a prostorná chodba. V patře jsou nainstalovány radiátory.
Na zahradě se nachází dřevěný saunový dům, který byl postaven před přibližně 7 lety.
Celý pozemek je oplocen. Na střeše se nachází hromosvod.
Na začátku roku 2023 byl dům následně vybaven alarmovým systémem. Na konci roku 2023 bylo instalováno nové plynové topení. Na začátku roku 2024 byla postavena velká nová krytá garáž pro 3 auta, s malým prostorem pro odpadkové koše a velkým prostorem pro zahradní nářadí a zahradní nábytek. Na začátku roku 2025 byla slámová střecha oprášena a opravená.
Dům není zapsán jako památkově chráněný.
Luhmühlen je malá venkovská lokalita, která patří do obce Salzhausen. Centrum obce je vzdáleno přibližně 2 km a nabízí řadu nákupních možností, několik malých obchodů, lékaře a lékárny. K dispozici je také veřejný bazén, který je dosažitelný na kole.
Salzhausen disponuje školním centrem se základní a střední školou a gymnáziem.
Pro jezdecké nadšence se v Luhmühlen nachází AZL a několik dalších jezdeckých stájí, ke kterým je rovněž možné se dostat na kole.
V okolí nemovitosti najdete
Stále hledáte to pravé?
Nastavte si hlídacího psa. Nabídky vybrané na míru dostanete souhrnně 1× denně e-mailem. S Premium profilem máte k ruce hlídačů rovnou 5 a když se něco objeví, informují vás obratem.
























