Prodej nebytového prostoru • 810 m² bez realitkyBremen Hemelingen Bremen 28309
Bremen Hemelingen Bremen 28309MHD 1 minuta pěškyVýrobní hala dokončená v roce 2013 se solidním kancelářským komplexem ve stavbě s nízkou energetickou náročností se nachází v bezprostřední blízkosti dálnice A1. Skvělá poloha je doložena přímým spojením s Brématy prostřednictvím dálnicového přípojového úseku a blízkostí k Bremer-Kreuz. Infrastruktura je zajištěna čerpacími stanicemi, hotelem a gastronomií. Tento objekt se vyznačuje instalovaným solárním systémem s přibližně 57 kWp a sloupovým otočným jeřábem s ramenním výtahem o délce 8 m a nosností 3,2 t.
Je excelentně vhodný pro výrobní průmysl i jakékoli jiné využití. K dispozici je elektrické připojení o výkonu 200 kW a také výtěžek přibližně 58 000 kWh, který umožňuje rychlé nabíjení elektromobilů. Dvě sekční vrata o rozměrech 4×5 m, jedno o rozměrech 5×5 m a výška haly 6–8 m činí tento objekt multifunkčním. Díky rezervě pro další výstavbu o ploše cca 600 m² je objekt velmi dobře přizpůsobitelný flexibilním požadavkům. Momentálně je na pozemku k dispozici 20 parkovacích míst.
Celá budova se vyznačuje nízkou spotřebou energie, která činí přibližně 128 €/měsíc. Toho je dosaženo díky vodou protékajícím stropním žebříkům, jež vytvářejí příjemnou atmosféru. Příjmy ze solárních zařízení při vlastní spotřebě, oceněné na 28,70 Ct/kWh netto, činí tento objekt atraktivním – tyto příjmy jsou navíc fixovány na dalších 8 let.
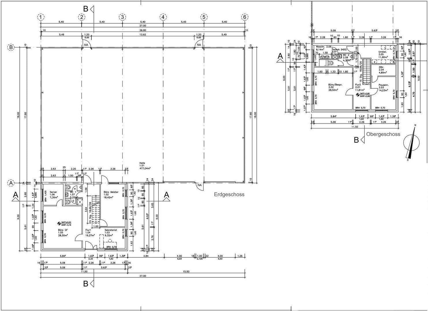
Správní komplex zahrnuje dvě kanceláře, recepci, zasedací místnost, servernu, kuchyň a sociální místnosti, přičemž většina prostoru je chráněna před sluncem vnějšími žaluziemi. V hale je rovněž k dispozici jeřábový systém, stlačený vzduchový systém a LED stropní osvětlení.
Nabízená nemovitost se nachází v brémaském průmyslovém parku Hansalinie přímo u dálnice A1 Bremen-Hemelingen. Tato oblast byla znovu rozvinuta až v roce 2012. Strategicky výhodně situovaná nedaleko od Bremer-Kreuz a v dosahu Mercedes-Benz, s blízkým umístěním montážních hal pro automobilový průmysl. Oblast je napojena na MHD a vyniká svou polohou.
– Správní budova/sociální místnosti: 173 m²
– Výrobní hala 1: 477 m²
– Výrobní a skladová hala 2: 159 m²
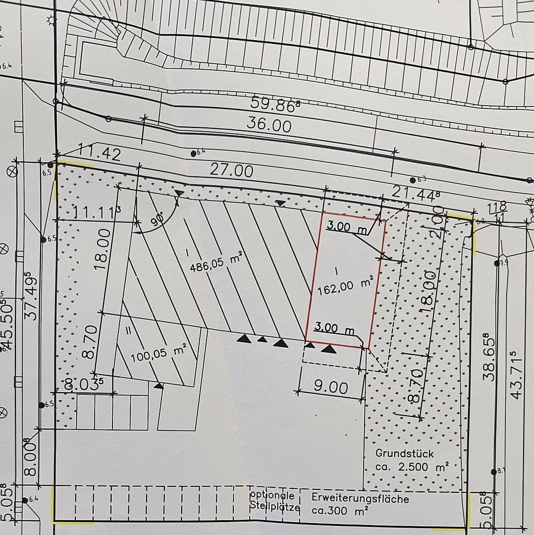
– Pozemek: 2800 m²
– Zpevněná volná plocha: 942 m²
– Solární systém: 57 kWp
– Rychlost internetu přibližně: 50 Mb/s
– Podlahová deska: 20 cm železobeton
– Rezerva pro rozšíření: cca 600 m²
Energiekosten GAS: 128 €/měsíc
Výnosy ze solární energie: cca 16 000 € netto/rok (možnost vlastní spotřeby)
200 kW elektrické připojení
20 parkovacích míst
Parametry nemovitosti
| Stáří | Nad 50 let |
|---|---|
| Číslo inzerátu | 1002679 |
| Plocha pozemku | 2 800 m² |
| Stav | Velmi dobrý |
|---|---|
| Plocha nebytového prostoru | 810 m² |
| Cena za jednotku | 0 € / m2 |
Co tato nemovitost nabízí?
| MHD 1 minuta pěšky |



















