
Pronájem bytu 2+1 • 46 m² bez realitkyBahnstrasse 36 Bad Vöslau Bad Vöslau Niederösterreich 2540
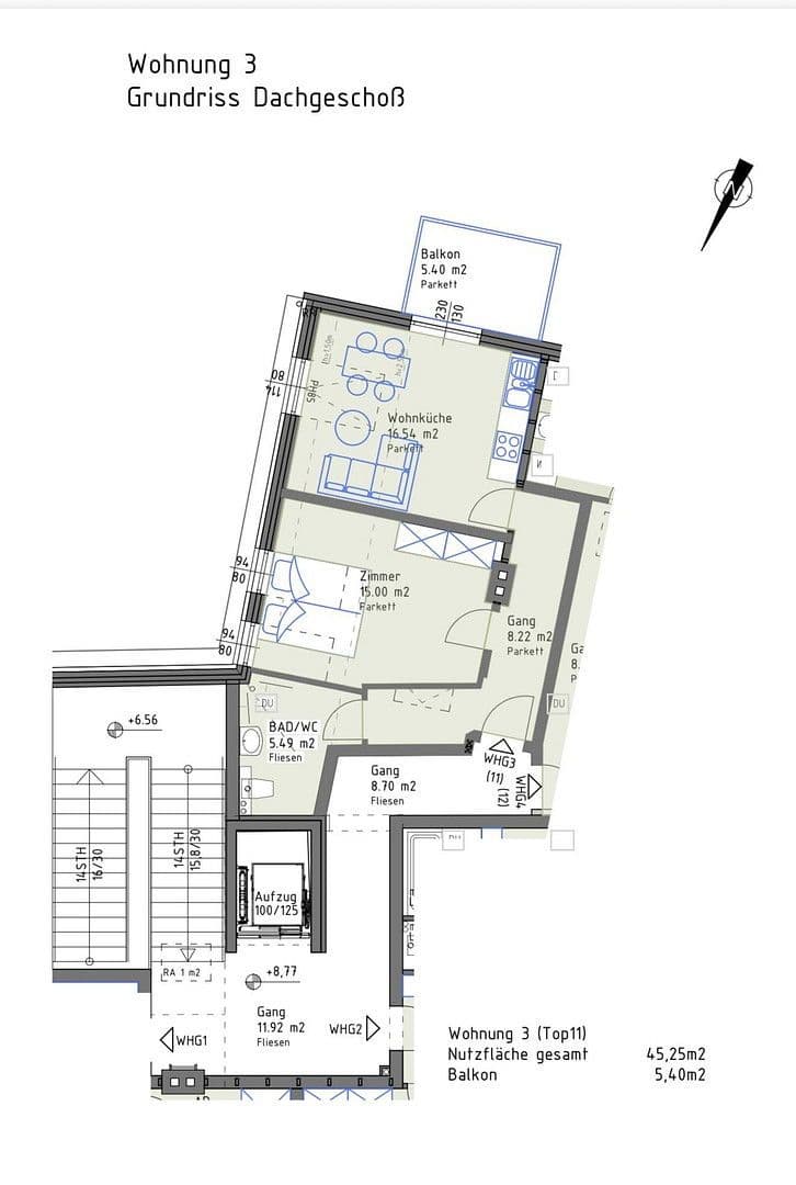
Bahnstrasse 36 Bad Vöslau Bad Vöslau Niederösterreich 2540MHD 2 minuty pěšky • Výtah • ParkováníTento moderní podkrovní byt (Top 11) na Bahnstraße 36 v Bad Vöslau je součástí nově zrekonstruované půdní podlahy, realizované v roce 2026, a je poprvé k pronájmu – skutečný prvotný nástup. Na přibližně 45,25 m² obytné plochy vás očekává světlá obývací kuchyně o rozloze cca 16,5 m², ložnice o rozloze cca 15 m², moderní koupelna s toaletou a praktická předsíň dle přiloženého půdorysu.
Výtah jede přímo do podkroví, takže je byt i v běžném životě snadno dostupný. Kvalitní parketové podlahy, moderní sanitární vybavení a podlahové vytápění ve všech místnostech zajišťují příjemný pocit z bydlení. Technika domu s tepelným čerpadlem a fotovoltaickou elektrárnou na střeše nabízí velmi dobré energetické hodnoty a nízkou spotřebu energie.
Balkón o rozloze přibližně 5,4 m² rozšiřuje obytný prostor směrem ven a je ideální k relaxaci po práci. Byt bude pravděpodobně k dispozici od září, a v případě zájmu je možný i nájem s vybavením. Do nájemného je zahrnuto i sklepní kóje, a parkovací místo přímo před domem si lze pronajmout za 60 € měsíčně.
Byt se nachází přímo vedle nádraží Bad Vöslau – do Vídně (Meidling) se dostanete za méně než 30 minut. Obchody, gastronomie a lékárna jsou v docházkové vzdálenosti. Klidná rezidenční ulice s vysokou kvalitou života v termální oblasti.
• Výtah až do podkroví
• První nástup po novostavbě podkrovního přestavby
• Užitečná plocha cca 45,25 m², 2 místnosti
• Balkón cca 5,4 m²
• Podlahové vytápění ve všech místnostech
• Tepelné čerpadlo + fotovoltaická elektrárna na střeše, velmi dobré energetické hodnoty (HWB 38,7 kWh/m²a, třída B; fGEE 0,71, třída A)
• Kvalitní parketové a dlažební podlahy, moderní sanitární vybavení
• Sklepní kóje zahrnuta
• Parkovací místo volitelně (60 €/měsíc)
• Možnost pronájmu vybaveného bytu na požádání
V okolí nemovitosti najdete
Stále hledáte to pravé?
Nastavte si hlídacího psa. Nabídky vybrané na míru dostanete souhrnně 1× denně e-mailem. S Premium profilem máte k ruce hlídačů rovnou 5 a když se něco objeví, informují vás obratem.




