
Pronájem bytu 2+1 • 66 m² bez realitkyIndustriestrasse, , Bavorsko
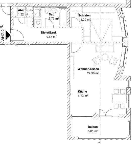
Industriestrasse, , BavorskoMHD 3 minuty pěšky • Výtah • ParkováníTento moderní a velmi udržovaný 2-pokojový byt (postaven v roce 2019) oslní svým kvalitním vybavením, velmi dobrým dispozicím a slunným jižním balkonem. Byt se nachází ve 2. patře klidného a upraveného činžovního domu a je pohodlně dostupný výtahem.
Prostorný obývací a jídelní prostor s integrovanou vestavěnou kuchyní (lze odkoupit), světlá ložnice, moderní koupelna i praktická komora nabízejí komfortní obytné prostředí.
Řízené větrání obytných prostor navíc zajišťuje trvale čerstvý vzduch a příjemné klima.
K bytu náleží venkovní parkovací místo.
Nástup: od 31.01.2026, případně i dříve po dohodě.
Lokalita – 1A dopravní dostupnost
Byt se nachází v Ergoldsbachu (okres Landshut), ve velmi žádané lokalitě s rychlým spojením do všech směrů.
Vzdálenosti a doby jízdy:
• Nádraží Ergoldsbach: cca 4 min. pěšky
• Hlavní nádraží Landshut: cca 12 min. vlakem
• Hlavní nádraží Mnichov: cca 45–55 min. vlakem
• Mnichovské letiště: cca 35 min. přes A92
• Regensburg: cca 25 min. vlakem / cca 30 min. autem
• B15n: cca 2 min. autem
• Dálnice A92 (Altheim/Essenbach): cca 10 min. autem
Místní služby – dosažitelné pěšky (cca 150–400 m):
• Pekařství, řeznictví, supermarkety
• Trh s nápoji a gastronomií
• Kadeřnictví, pošta, lékaři
• Fitness centra naproti (otevřená 24/7)
• Kavárny, restaurace
Vybavení
Pokoje:
• Obývací pokoj / jídelna / kuchyň
• Ložnice
• Koupelna s vanou i sprchou, připojením pro pračku
• Skladovací místnost
• Jižní balkon (soukromý, nenahlédnutelný)
Vybavení bytu:
• Kvalitní podlaha s dřevěným vzhledem
• Plastová okna s trojitým zasklením (u vnitřní strany bílá)
• Elektrické žaluzie
• Řízené větrání obytných prostor (nově přidané)
• Výtah v domě
• Vestavěná kuchyň (možnost odkupu)
• Video zabezpečení u hlavního vchodu
• Bezbariérový přístup
• Venkovní parkovací místo; za poplatek lze navíc pronajmout místo v krytém stání (carport) nebo v podzemní garáži
V okolí nemovitosti najdete
Stále hledáte to pravé?
Nastavte si hlídacího psa. Nabídky vybrané na míru dostanete souhrnně 1× denně e-mailem. S Premium profilem máte k ruce hlídačů rovnou 5 a když se něco objeví, informují vás obratem.









