
Pronájem kanceláře • 288 m² bez realitkyDanziger Str. 211 Berlin Prenzlauer Berg Berlin 10407
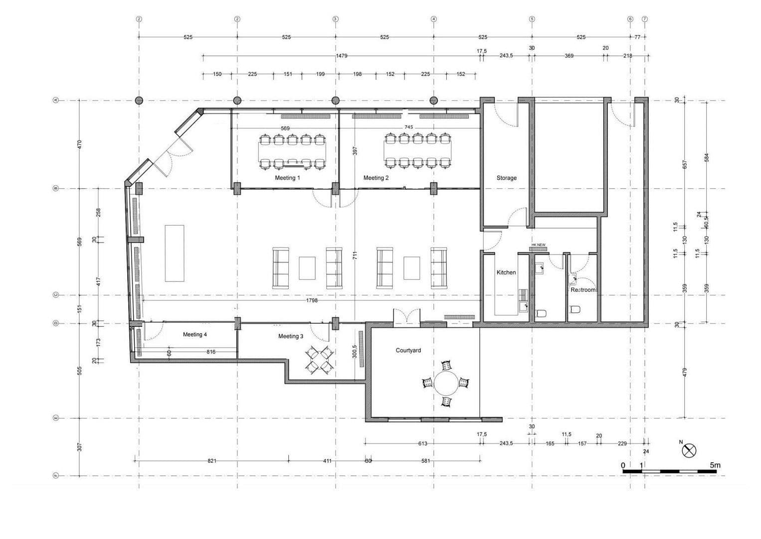
Danziger Str. 211 Berlin Prenzlauer Berg Berlin 10407MHD 1 minuta pěškyNabízená plocha se nachází v přízemí udržovaného obytně-obchodního domu z roku 1996 a byla naposledy v roce 2019 kompletně zmodernizována. Na přibližně 288 m² máte k dispozici pět prostorných místností (po domluvě i v otevřeném provedení), které lze flexibilně využít jako pracovní prostory, zasedací místnosti nebo kreativní prostory. Otevřený, moderní půdorys vytváří příjemnou pracovní atmosféru a nechává prostor pro individuální úpravy.
Prostory přesvědčují svým současným standardem a jsou ihned k nastěhování. Už jsou zde k dispozici recepce s pultem, kvalitně vybavená vestavěná kuchyň a moderní sanitární zařízení (včetně hostinského WC), což vám usnadní začátek provozu. Další komfort poskytuje úložný prostor pro materiály nebo dokumenty.
Díky bezbariérovému přístupu jsou prostory bez problémů přístupné jak pro zaměstnance, tak pro zákazníky. Topení je zajištěno centrálním zdrojem tepla (telefonické vytápění); energetický průkaz uděluje třídu B. Klidné přestávky nebo krátké týmové schůzky lze uspořádat ve střeženém vnitřním dvoře.
Nemovitost je ideální pro firmy, které kladou důraz na reprezentativní prostředí, flexibilní využití a vynikající polohu.
Prostory se nacházejí na adrese Danziger Straße 211, v srdci Berlína – v oblasti Prenzlauer Berg, jedné z nejoblíbenějších částí hlavního města. Okolí nabízí úspěšnou kombinaci městského života, kulturní rozmanitosti a vynikající infrastruktury.
V bezprostřední blízkosti vás zve Volkspark Friedrichshain na relaxační procházky či sportovní aktivity.
Doprava městskou hromadnou dopravou je vynikající: Tramvajová zastávka linky M10 je vzdálena jen pár kroků, zatímco nádraží S-Bahn Landsberger Allee je dosažitelné za přibližně 10 minut chůze. Odtud se rychle dostanete ke klíčovým dopravním uzlům města. Berlínské hlavní nádraží je dosažitelné přibližně za 20 minut jízdy a letiště BER za přibližně 40 minut.
Centrální poloha v Prenzlauer Berg zajišťuje vynikající dostupnost prostorů pro zaměstnance i zákazníky a zároveň nabízí atraktivní, živé prostředí.
Vybavení prostor je přizpůsobeno moderním pracovním požadavkům a zaujme řadou doplňkových výhod:
- Moderní vestavěná kuchyň se všemi potřebnými spotřebiči pro přestávky a občerstvení
- Recepce s pultem, ideální pro kontakt se zákazníky a klienty
- Hostinské WC a moderní sanitární zařízení pro dodatečný komfort
- Bezbariérový přístup v přízemí
- Praktický úložný prostor pro kancelářské materiály
- Centrální topení s energetickou účinností třídy B
- Možnost využití vnitřního dvora pro přestávky nebo týmové akce
Prostory jsou plně zmodernizované, ihned k provozu použitelné a lze je dle dohody individuálně přizpůsobit potřebám vaší společnosti.
Parametry nemovitosti
| Stáří | Nad 50 let |
|---|---|
| Stav | Velmi dobrý |
| Plocha kanceláře | 288 m² |
| Dostupné od | 19. 3. 2026 |
|---|---|
| Číslo inzerátu | 1003084 |
| Cena za jednotku | 23 € / m2 |
Co tato nemovitost nabízí?
| Bezbariérový přístup | |
| MHD 1 minuta pěšky |
| Terasa |
V okolí nemovitosti najdete
Stále hledáte to pravé?
Nastavte si hlídacího psa. Nabídky vybrané na míru dostanete souhrnně 1× denně e-mailem. S Premium profilem máte k ruce hlídačů rovnou 5 a když se něco objeví, informují vás obratem.
















