
Prodej domu 4+kk • 125 m² bez realitky, Dolní Sasko
Die impozantní polovina dvojdomku ve stylu Bauhaus má obytnou plochu přibližně 125 m² rozloženou na 4,5 místnosti.
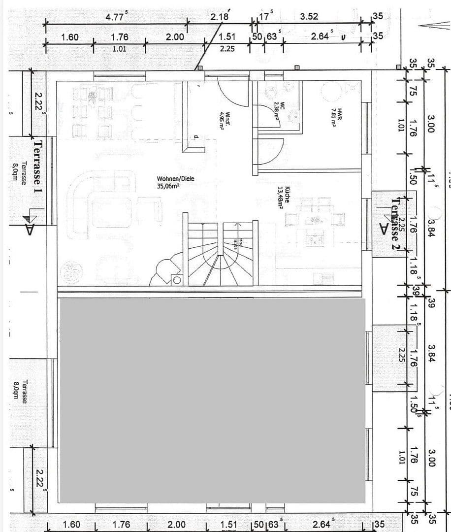
Moderní, otevřený půdorys v kombinaci se světlými a prostornými místnostmi dodává nemovitosti uvolněný a bezstarostný charakter. Moderní dům se řídí heslem: Nastěhuj se a užívej si pohodlí!
Prostorná, světlá hala vítá obyvatele a hosty této nemovitosti. Prostor pro bydlení a stolování je zde propojen. Kuchyňský kout s ostrovem je sice oddělený, ale díky otevřenému uspořádání obytného prostoru je z obývací části dobře vidět. Z kuchyně vede na malou terasu a malou zahrádku na severní straně, kde je v teplých letních dnech vždy zastíněno a příjemné se zdržovat.
Z prostorného obývacího a jídelního prostoru se dostanete do zahrady, kde byla vybudována přední jižní terasa s přibližně 50 m² zahradní plochou. Přilehlá technická místnost, sloužící mimo jiné jako prádelna (s připojením pro pračku), nabízí dostatek úložného prostoru pro různé předměty.
Dále se zde nachází nádrž na teplou vodu, která je primárně ohřívána pomocí solární termie instalované na střeše.
Prostory přízemí je doplněno vlastním toaletou pro hosty, vybavenou kvalitními a renomovanými sanitárními výrobky.
V horním patře se nacházejí dva dětské pokoje, koupelna s vanou a sprchou bez prahu a rodičovská ložnice s přilehlou šatnou. Šatna disponuje také oknem a dveřmi, díky nimž si stávající majitelé vytvořili zde pracoviště.
Pozemek je ohraničen dvojitými vraty, což umožňuje plné využití plochy.
Bezprostředně u domu se nachází velký osvětlený carport, pod kterým je zabudována kůlna pro další úložný prostor.
Wallbox pro nabíjení elektrických vozidel je již rovněž nainstalován.
Isernhagen se nachází na severu Hannoveru a patří k nejoblíbenějším rezidenčním oblastem v okolí hlavního města spolkové země.
Lidé, kteří milují přírodu, ale nechtějí se vzdát blízkosti velkoměsta, tu budou nadšeni. Centrum Hannoveru dosáhnete autem přibližně za 20 minut. Dojíždějícím na trase Hamburg–Hannover je zajištěno perfektní napojení na nejbližší dálnicový přístup (A7), který je dosažitelný během několika minut, stejně jako propojení na Messeschnellweg a A2.
Dům se nachází v klidné příjezdové ulici v Isernhagen FB. V sousedství převážně stojí rodinné a řadové domy.
Supermarket REWE, obchod s nápoji i autobusová zastávka jsou dosažitelné pěšky během 2 minut.
Místní školka je vzdálena 3 minuty autem.
Základní škola je dosažitelná během 5 minut.
Město Großburgwedel a školní centrum v Großburgwedelu jsou dostupné autem či autobusem během 3–5 minut.
Vybavení domu:
- Dvě patra bez šikmých stropů
- Velmi vysoká izolační hodnota a nízká spotřeba energie, fasáda s omítkou s tepelně izolačním systémem (WDVS)
- Rozsáhlé elektroinstalace
- Předpřipravený komín (pro krb)
- Protipozmolový trojsklo
- Elektricky či automaticky ovládané rolety
- Podlahové vytápění
- Plynový kondenzační kotel
- Podlahové krytiny z dubového parketu a šedých dlaždic (0,80 m x 0,80 m)
- Vestavěná kuchyň s kuchyňským ostrovem
- Technická místnost s připojením pro pračku a zásobníkem vody, ohřívanou solární termií na střeše
Vybavení koupelen:
- Toaleta pro hosty v přízemí
- Koupelna v patře s vanou a sprchou
- Vysoce kvalitní a renomované sanitární výrobky
- Vestavěné armatury
- Sprcha s efektem deště
Vybavení venku:
- Osvětlený carport a kůlna
- Vlastní příjezdová cesta, dlážděná
- Pozemek je celý oplocen
- Wallbox (Elli VW / ID. Charger Connect, 11 kW – 4,5 m)
V okolí nemovitosti najdete
Stále hledáte to pravé?
Nastavte si hlídacího psa. Nabídky vybrané na míru dostanete souhrnně 1× denně e-mailem. S Premium profilem máte k ruce hlídačů rovnou 5 a když se něco objeví, informují vás obratem.

































