Pronájem domu 5+1 • 130 m² bez realitkyAsamstr. 44a Ingolstadt Ingolstadt Bayern 85053
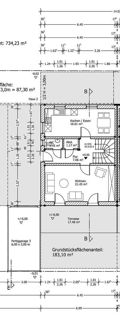
Asamstr. 44a Ingolstadt Ingolstadt Bayern 85053MHD 1 minuta pěšky • Parkování • GarážCihlová masivní stavba dle standardu KFW 55, zrekonstruovaný hobby pokoj v obytné výšce ve sklepě, masivní dřevěné schody, třísklíčková okna s roletami.
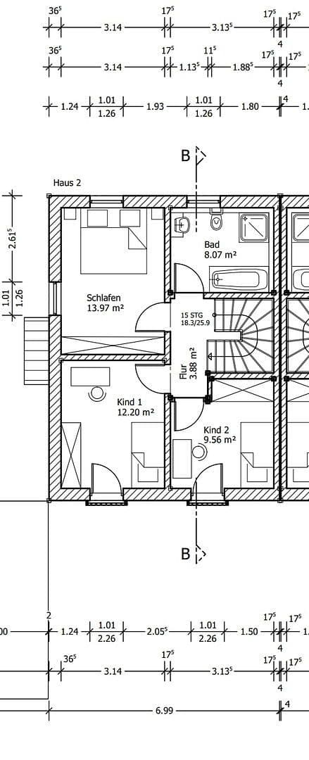
Podkroví je zrekonstruováno (studiový prostor).
Ingolstadt Süd, Asamstr. 44, mateřská škola, lékárna, zastávka linky 30 vzdálená 50 m, supermarket dosažitelný pěšky!
Centrální plynové topení kombinované se solárním systémem, centrální řízené větrání s rekuperací tepla, podlahové topení, garáž a parkovací místo.
TV a LAN připojení v obytných místnostech, připojení na optické vlákno, parketová podlaha v obývacím pokoji a ložnici; všechny ostatní prostory jsou obloženy dlaždicemi.
V okolí nemovitosti najdete
Stále hledáte to pravé?
Nastavte si hlídacího psa. Nabídky vybrané na míru dostanete souhrnně 1× denně e-mailem. S Premium profilem máte k ruce hlídačů rovnou 5 a když se něco objeví, informují vás obratem.












