
Pronájem bytu 2+1 • 55 m² bez realitkyUrbánkova, Brno - Komín, Jihomoravský kraj
Máte o nabídku zájem?
Ušetřete 19 000 Kč na provizi a komunikujte se všemi majiteli.
Nabízíme Vám pronájem útulného bytu 2+1 po částečné rekonstrukci v panelovém domě.
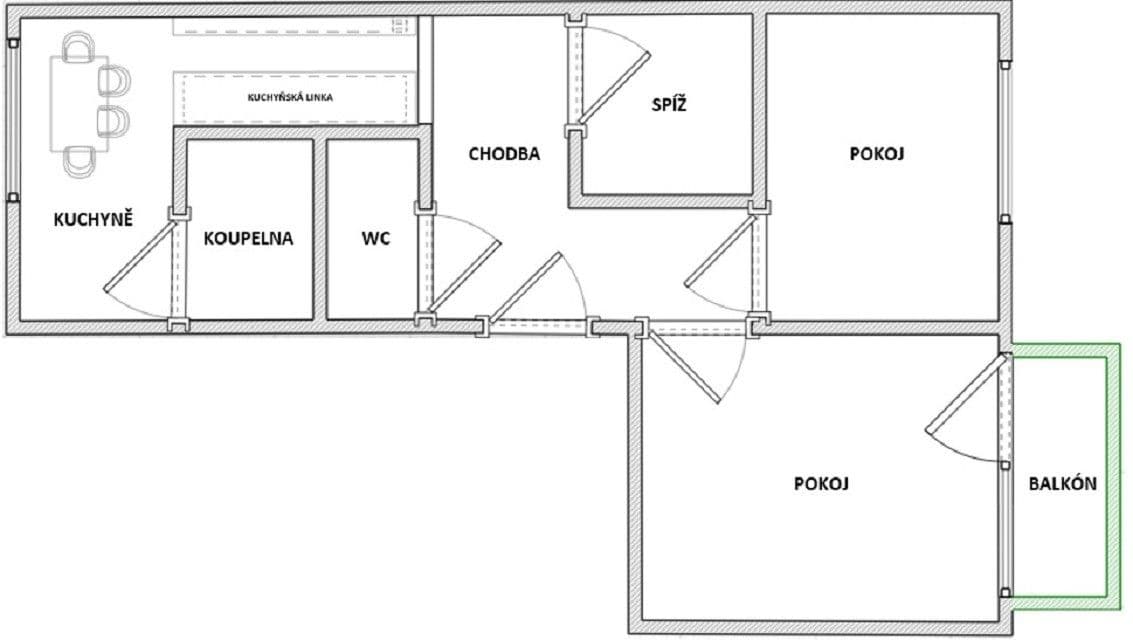
Poloha bytu je ve velmi atraktivní lokalitě klidné městské části Brno – Komín. Cca 100m je zastávka trolejbusu. V blízkosti bytu je veškerá občanská vybavenost (pošta, lékárna, obchod, škola, školka, restaurace). Byt se nachází v posledním patře čtyřpodlažní budovy bez výtahu. Celková plocha bytu je 55 m2, byt se sestává z chodby, 2 obytných pokojů, kuchyně s kuchyňskou linkou, samostaného wc, koupelny se sprchovým koutem a spíže. V bytě je vybavená kuchyňská linka včetně indukční varné desky a elektrické trouby, digestoř. Byt je vytápěn centrálně.
Byt se nabízí jako částečně zařízený a je ihned k dispozici (od 1.4.2026). V případě zájmu o prohlídku nás kontaktujte.
V okolí nemovitosti najdete
Máte o nabídku zájem?
Ušetřete 19 000 Kč na provizi a komunikujte se všemi majiteli.


Pronájem bytuPalackého třída, Brno - Královo Pole, Jihomoravský kraj- 2+kk
- 74 m²
18 000 Kč + 7 000 Kč22 000 Kč
Ušetříte 4 000 Kč


Stále hledáte to pravé?
Nastavte si hlídacího psa. Nabídky vybrané na míru dostanete souhrnně 1× denně e-mailem. S Premium profilem máte k ruce hlídačů rovnou 5 a když se něco objeví, informují vás obratem.














