Prodej domu • 3097 m² bez realitkyHaidelausigker Weg 2-6 Dessau-Roßlau OT Kochstedt Kochstedt Sachsen-Anhalt 06847
Haidelausigker Weg 2-6 Dessau-Roßlau OT Kochstedt Kochstedt Sachsen-Anhalt 06847MHD 4 minuty pěšky • Parkování • GarážDie 2 Mehrfamilienhäuser befinden sich auf einem großen, grünen und sehr gepflegten Grundstück. Sie bilden eine weitläufige, großzügige Wohnanlage.
31 PKW-Stellplätze, 18 Carport-Stellplätze und 2 Garagen, bieten ein sehr mieterfreundliches Ambiente. Großzügige Rasenflächen, mit Wäschetrockenplatz und großzügigen Sitzmöglichkeiten, runden das Angebot ab
Freie Carports und Stellplätze sind noch vorhanden.
Balkone und eine Ausstattung aus der Kernsanierung im Jahr 2000, bieten eine gute Wohnqualität.
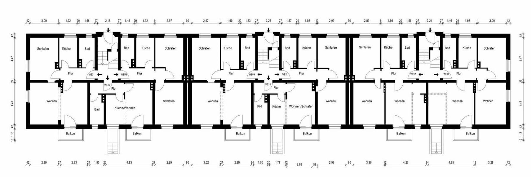
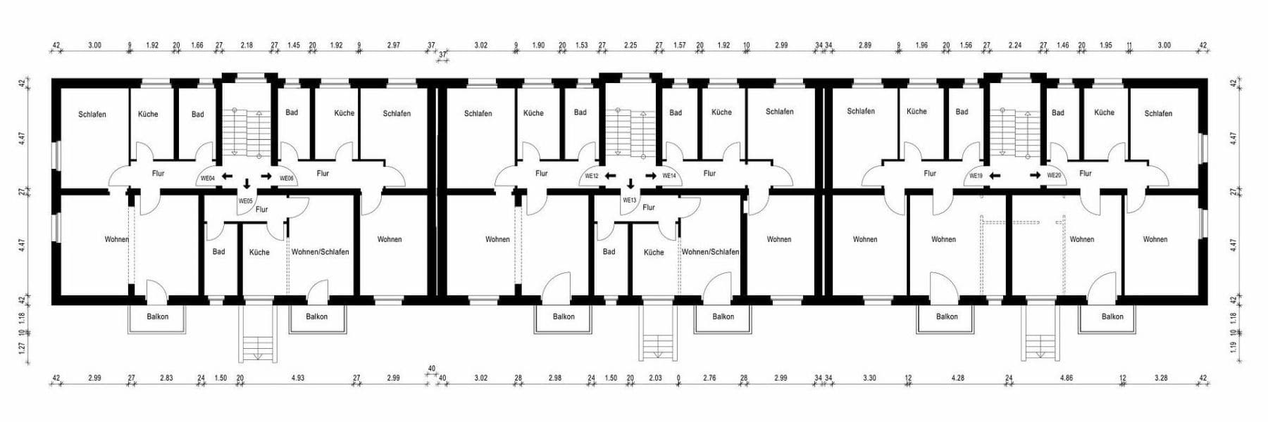
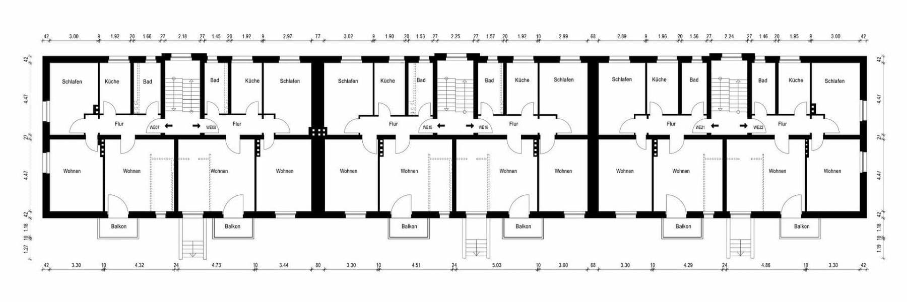
Jede Wohnung verfügt über einen Mieterkeller.
In allen 6 Hausaufgängen befinden sich jeweils ein Fahrrad- und ein Trockenraum
Die mit Fernwärme versorgten Objekte bestechen durch die Energieklassen B (Haidelausigker Weg) und C (Hoyersdorfer Straße).
Beide Häuser sind dreigeschossig und voll unterkellert.
Das 6.717 m2 große und gepflegte Grundstück befindet sich in einer gewachsenen, großzügigen Wohnsiedlung.
Der Ortsteil Kochstedt im südwestlichen Bereich von Dessau Roßlau begeistert mit ruhiger, naturnaher Wohnlage und zugleich guter Anbindung an Stadt und Region. Inmitten familienfreundlicher Eigenheim- und Siedlungsstrukturen bietet der Standort ein charmantes Umfeld zum Wohnen und Leben.
Verkehrsanbindung
-ÖPNV: Direkt im Ortsteil Kochstedt befindet sich die Buslinie N2 (z.B. Haltestellen „Hauerwinkel", „Semmelweisstraße") sowie weitere Verbindungen, die den Anschluss an das Zentrum von Dessau-Roßlau sicherstellen.
-Straßenanbindung: Von Kochstedt führen gut ausgebaute Landes- bzw. Gemeindestraßen in die Umgebung; die Lage auf einer Anhöhe (ca. 65 m) sorgt für gute Durchfahrts- und Zufahrtswege.
-Autobahn / Schnellverbindung: In der Region von Dessau-Roßlau ist u. a. die Bundesautobahn A9 in relativer Nähe, was eine gute überregionale Erreichbarkeit bietet.
-Bahn-/Busbahnhof: Der Hauptbahnhof von Dessau-Roßlau ist gut erreichbar und bietet Anschluss an Regional- und Fernverkehr.
Einkaufen & Versorgung
-Supermärkte: Im Ortsteil ist z. B. der NP Markt Dessau Kochstedt in der Lichtenauer Straße 34-35 mit Vollsortiment vorhanden.
-Weitere Supermärkte wie z. B. in der Stadt Dessau-Roßlau, liegen in angemessener Entfernung und sichern die tägliche Versorgung.
-Die medizinische Versorgung ist über das Stadtgebiet von Dessau-Roßlau gesichert und gut erreichbar.
Erholung & Natur
-Grünflächen & Wege: Kochstedt und Umgebung bieten naturnahe Rückzugsräume — z. B. den Naturlehrpfad zwischen Zoberberg und Alten.
-Wohnlage: Die erhöhte Lage und die ruhige Siedlungsstruktur tragen zu einem angenehmen Wohngefühl bei — ideal für Familien und Menschen, die Ruhe und Natur schätzen.
-Rad- und Wanderwege: Rundtouren und regionale Radwege durch das Stadtgebiet von Dessau-Roßlau führen auch durch Kochstedt.
Freizeit & Kultur
-Vereine & Sport: Im Ort ist der TuS Kochstedt?eV. aktiv mit vielfältigen Sportangeboten
- wie Pilates, Zumba, Kindersportgruppen ansäsig.
-Treffpunkte & Jugend: Der Jugendtreff Kochstedt bietet Jugendlichen Raum für Freizeitgestaltung in direkter Nachbarschaft.
-Kultur & Geschichte: Die Region besitzt historische Elemente — z.B. das Gutshaus des Vorwerks Kochstedt (1811) und die Franzoseneiche; als Naturdenkmal in der Mosigkauer Heide
Bildungseinrichtungen
-Kita: Kindertagesstätte „Sausewind".
-Grundschule: An der Heide in der Hirtenhausiedlung Kochstedt, mit Spiel- und Sportplatz.
-Weiterführende Schulen & Berufsschulen: Im Stadtgebiet von Dessau-Roßlau steht ein Netz von Sekundar-, Gemeinschafts- und Gymnasialschulen sowie Berufsschulzentren zur Verfügung.
-Universität: Für Hochschulbildung ist die regionale Universität im näheren Umfeld erreichbar — eine starke wohnortnahe Bildungs und Lebensqualität ist somit gegeben.
Schluss
Dank der ruhigen, naturnahen Lage im Ortsteil Kochstedt mit guter Anbindung an Stadt und Region, Versorgung in der Nähe sowie
familienfreundlichem Umfeld bietet das Objekt eine attraktive Wohnlage mit hohem Lebenswert.
------------------------------------------------------------------------------
Překlad do češtiny:
Tyto dvě rodinné domy se nachází na rozsáhlém, zeleném a velmi udržovaném areálu. Společně vytvářejí rozlehlý a prostorný obytný komplex.
31 parkovacích míst pro automobily, 18 míst pod přístřešky (carport) a 2 garáže nabízejí nájemcům velice přívětivé prostředí. Nabídku doplňují prostorné trávníkové plochy s prostorem na sušení prádla a dostatkem místa k posezení.
Volná místa pod přístřešky a parkovací stání jsou stále k dispozici.
Balkóny a vybavení z rekonstrukce jádra budovy v roce 2000 poskytují kvalitní obytné podmínky.
Každý byt disponuje sklepem určeným pro nájemníky.
V každém ze šesti domovodů se nachází místnost na kola a také místnost pro sušení.
Objekty, které jsou zásobovány dálkovým vytápěním, se pyšní energetickými třídami B (ulice Haidelausigker) a C (ulice Hoyersdorfer).
Oba domy mají tři podlaží a jsou kompletně zkrocené.
Rozlehlý a udržovaný pozemek o rozloze 6 717 m² se nachází v vybudované a prostorné obytné čtvrti.
Čtvrť Kochstedt v jihozápadní části Dessau-Roßlau okouzluje tichou, přírodní polohou a zároveň výborným spojením do města a regionu. V prostředí přívětivém pro rodiny, obklopeném rodinnými domky a osadní strukturou, nabízí toto místo půvabné prostředí pro bydlení a život.
Dopravní spojení:
- Městská hromadná doprava: Přímo v čtvrti Kochstedt je zastávka autobusové linky N2 (např. zastávky „Hauerwinkel“, „Semmelweisstraße“) a další spojení, která zajišťují dopravu do centra Dessau-Roßlau.
- Silniční spojení: Z Kochstedt vedou dobře udržované krajské nebo obecní silnice do okolí; poloha na mírném kopci (cca 65 m nad úrovní moře) zajišťuje výborné příjezdové i průjezdové cesty.
- Dálnice / rychlá spojení: V regionu Dessau-Roßlau se nachází mimo jiné i dálnice A9, která je v relativní blízkosti, což zajišťuje dobrou regionální dostupnost.
- Nádraží pro vlak/bus: Hlavní nádraží Dessau-Roßlau je snadno dostupné a nabízí spojení regionální i dálkovou dopravou.
Nákupy a zásobování:
- Supermarkety: V této čtvrti se nachází například obchod NP Markt Dessau Kochstedt na adrese Lichtenauer Straße 34-35, který nabízí kompletní sortiment.
- Další supermarkety, například v centru Dessau-Roßlau, jsou v přiměřené vzdálenosti a zajišťují denní potřeby.
- Zdravotní péče je v rámci města Dessau-Roßlau zajištěna a snadno dostupná.
Rekreace a příroda:
- Zeleň a stezky: Kochstedt a jeho okolí nabízejí přírodní útočiště – například naučnou stezku mezi Zoberberg a Alten.
- Lokalita bydlení: Vyvýšená poloha a klidná osadní struktura přispívají k příjemnému pocitu z bydlení – ideální pro rodiny a pro ty, kteří ocení klid a přírodu.
- Cyklotrasy a pěší stezky: Okružní vycházky a regionální cyklotrasy vedoucí městem Dessau-Roßlau také procházejí oblastí Kochstedt.
Volný čas a kultura:
- Kluby a sport: V místě je aktivní TuS Kochstedt e.V. s širokou škálou sportovních aktivit,
například pilates, zumba nebo dětské sportovní skupiny.
- Setkávací místa a mládež: Mládežnické centrum Kochstedt poskytuje mladým lidem prostor pro volnočasové aktivity přímo v jejich okolí.
- Kultura a historie: Region se pyšní historickými prvky – například panství Vorwerk Kochstedt (1811) a Francouzská dub, který je zapsán jako přírodní památka v Mosigkauer Heide.
Vzdělávací zařízení:
- Mateřská škola: Mateřská škola „Sausewind“.
- Základní škola: Škola „An der Heide“ v osadě Hirtenhausiedlung Kochstedt, vybavená hřištěm a sportovištěm.
- Střední a odborné školy: V městské části Dessau-Roßlau je k dispozici síť středních škol, družstevních škol a gymnázií, stejně jako střediska odborného vzdělávání.
- Univerzita: Pro vysokoškolské vzdělání je v blízkém okolí dosažitelná regionální univerzita – což zajišťuje vysokou kvalitu bydlení a vzdělávacích možností v místě bydliště.
Závěr:
Díky klidné, přírodě blízké poloze v čtvrti Kochstedt, vynikajícímu dopravnímu spojení do města a regionu, dostupnosti služeb v okolí a přívětivému prostředí pro rodiny nabízí tento objekt atraktivní lokalitu s vysokou kvalitou života.
Parametry nemovitosti
| Stáří | Nad 50 let |
|---|---|
| Číslo inzerátu | 1004320 |
| Užitná plocha | 3 097 m² |
| Celkem podlaží | 3 |
| Stav | Po rekonstrukci |
|---|---|
| PENB | C - Úsporná |
| Plocha pozemku | 6 717 m² |
| Cena za jednotku | 775 € / m2 |
Co tato nemovitost nabízí?
| Balkón | |
| Garáž | |
| Parkování |
| Sklep | |
| MHD 4 minuty pěšky |
V okolí nemovitosti najdete
Stále hledáte to pravé?
Nastavte si hlídacího psa. Nabídky vybrané na míru dostanete souhrnně 1× denně e-mailem. S Premium profilem máte k ruce hlídačů rovnou 5 a když se něco objeví, informují vás obratem.




































