Prodej domu • 368 m² bez realitkyNeuendorf 1, , Braniborsko
Neuendorf 1, , BraniborskoMHD do minuty pěšky • Parkování • GarážSchönes Wohn- und Geschäftshaus, erbaut 1908 -> Krásný obytně-obchodní dům, postavený v roce 1908
ohne Denkmalschutzauflagen -> bez omezení vyplývajících z památkové ochrany
Grundstücksfläche von 1568 m² -> stavební pozemek o rozloze 1568 m²
ab Mai 2026 verfügbar -> k dispozici od května 2026
Bei Bedarf, angrenzendes Flurstück mit 532 m² zusätzlich zu erhalten -> V případě potřeby lze získat i přilehlý pozemek o rozloze 532 m²
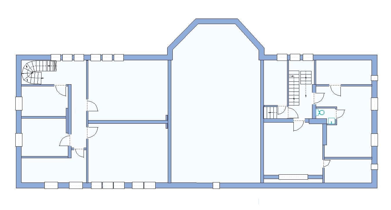
Zwei Wohnungen und ein ehemaliges Restaurant erstrecken sich auf einer Grundfläche von 27,3 m x 10,1 m / 235 m² Wohnfläche im Erdgeschoß / 133 m² im Obergeschoß.
-> Dvě byty a bývalá restaurace se rozprostírají na základové ploše 27,3 m x 10,1 m, s obytnou plochou 235 m² v přízemí a 133 m² v horním patře.
Dazu gehört ein begehbarer Dachboden 76 m² (ausbaufähig) sowie ein Spitzboden 72 m².
-> K domu patří prostupný podkrovní prostor o velikosti 76 m² (s možností přístavby) a střešní podkroví o velikosti 72 m².
Das Haus besitzt 11 Zimmer (2 Schlafräume, 2 Wohnzimmer, 2 Küchen, 2 Kinderzimmer, 3 Bäder) sowie ein ehemaliges Restaurant (2 Gasträume, 1 große Küche, Gäste-WC, 2 Lagerräume).
-> Dům disponuje 11 pokoji (2 ložnice, 2 obývací pokoje, 2 kuchyně, 2 dětské pokoje, 3 koupelny) a bývalou restaurací (2 jídelní místnosti, 1 velkou kuchyní, toaletou pro hosty, 2 skladovými místnostmi).
Ein Umbau auf 4-5 Wohneinheiten ist denkbar, aktuell sind Räume von 5 m² bis 75 m² vorhanden.
-> Přestavba na 4–5 bytových jednotek je možná, aktuálně jsou k dispozici prostory o rozloze od 5 m² do 75 m².
Drei separate Gewölbe-Keller (zusammen 56 m²) bieten zusätzlich Möglichkeiten für Hobby, Wein- oder Vorratslagerung.
-> Tři samostatné sklepní klenby (celkem 56 m²) dále poskytují možnosti pro hobby, skladování vína nebo zásob.
Eine großzügig überdachte Terrasse/Carport im Eingangsbereich steht für Ihre Sommerparty oder einfach nur als zusätzliche Abstellmöglichkeit für PKW zur Verfügung.
-> Štědrá přístřešková terasa/carport u vstupu je k dispozici pro vaši letní párty nebo jen jako dodatečné parkovací místo pro automobil.
Voraussetzungen für Arbeitsplätze im Homeoffice sind durch einen schnellen Internetanschluss gegeben (Knotenpunkt direkt vor dem Haus, aktuell 250 Mbit/s im Download für TV/Internet).
-> Podmínky pro práci z domova jsou zajištěny díky rychlému internetovému připojení (rozdělovací uzel přímo před domem, aktuálně 250 Mbit/s pro stahování TV/internetu).
Zwei Hofzufahrten und 4 Hauseingänge sorgen für eine bequeme Nutzung des Areals.
-> Dva vjezdy na dvůr a čtyři vstupy do domu zajišťují pohodlné využívání areálu.
Sanitäre Einrichtungen, Fenster und Elektrik erhielten eine Modernisierung vor ca. 25 Jahren.
-> Sanitární zařízení, okna a elektrické rozvody byly zhruba před 25 lety zmodernizovány.
Für Wärme in der kalten Jahreszeit sorgt eine Zentral-Heizung (aktuell Öl, Gasanschluss liegt unmittelbar vor dem Grundstück).
-> V chladném období zajišťuje teplo centrální topení (aktuálně naftové; plynové připojení se nachází těsně u pozemku).
Allerdings besteht auch die Möglichkeit ca. 700 m² Dachfläche zur nachhaltigen Energie-/Wärmegewinnung zu nutzen.
-> Existuje však rovněž možnost využít přibližně 700 m² střešní plochy pro udržitelnou výrobu energie/tepla.
Das Grundstück eignet sich darüber hinaus für eine Tiefenbohrung zur sparsamen/autarken Versorgung über Erdwärme.
-> Pozemek je také vhodný pro hlubinné vrtání, které může zajistit úsporné/autonomní zásobování zemním teplem.
In einem 10-Jahresrückblick wurden (bei voller Auslastung, Wohnungen & Restaurant) durchschnittlich 5355 Liter Heizöl für Warmwasserversorgung und Heizung benötigt.
(Durchschnittliche Heiz-Kosten ca. 3100€/Jahr)
-> V desetiletém období (při plné obsazenosti – byty a restaurace) bylo průměrně potřeba 5355 litrů topného oleje na ohřev teplé vody a topení.
(Průměrné náklady na vytápění cca 3100 €/rok)
Der Käufer findet eine sehr solide und gut erhaltene Bausubstanz vor (massives traditionelles Ziegelmauerwerk, Sockel des Hauses Feldsteinmauerwerk).
-> Kupující objeví velmi solidní a dobře udržovanou stavební hmotu (masivní tradiční cihlové zdivo, základ domu z Feldsteinmauerwerk).
Mit schönen engobierten Biberschwänzen ist das Dach im Jahr 2003 erneuert worden, der Giebel ist, wie regional sehr häufig anzutreffen, zu 1/3 abgewalmt.
-> Střecha byla v roce 2003 obnovena s krásnými engobierten (intušenými) „Biberschwänzen“ a štít (giebel) je, jak je regionálně časté, ze třetin poškozený.
Das Haus besticht durch seine Wertigkeit, die Außenanlagen sowie die vielfältigen Nutzungsmöglichkeiten und es lässt viel Platz für Kreativität.
-> Dům zaujme svou hodnotou, venkovním uspořádáním a pestrými možnostmi využití, přičemž nabízí dostatek prostoru pro kreativitu.
Hier können Sie sich verwirklichen.
-> Zde se můžete naplno realizovat.
Eine Gewerbenutzung, aber auch Wohnprojekte oder ein Mehrgenerationenhaus sind denkbar.
-> Jsou možné jak komerční využití, tak obytné projekty nebo vícegenerační dům.
Der Käufer kann zusätzlich auf zwei Nebengebäude zurückgreifen.
-> Kupující má navíc k dispozici dvě přilehlé budovy.
1. Nebengebäude 73m², für Hobby, Wohnungen, Ferienwohnungen oder Gewerbe, Garage und Werkstatt, im Obergeschoss befindet sich ein schöner ehemaliger Heuboden (80m²)
-> 1. vedlejší budova o rozloze 73 m², vhodná pro hobby, byty, rekreační apartmány nebo komerční využití, s garáží a dílnou; v horním patře se nachází krásný bývalý slámový sklad (80 m²)
2. Nebengebäude 28 m², für Garage, Hobby, Rasentraktor oder Gartengeräte
-> 2. vedlejší budova o velikosti 28 m², vhodná pro garáž, hobby, sekačku nebo zahradní nářadí
Ein großer Garten (blickgeschützt durch eine Liguster-Hecke) mit altem Baumbestand für Grillabende oder Spielplatz, ist auch geeignet zur Errichtung eines weiteren Wohnhauses (bauplanungsrechtliche Auskunft - Bauleitplanung Landkreis Barnim liegt vor).
-> Rozlehlá zahrada (chráněná výhledem pomocí živého plotu z ligustru) se starými stromy, ideální pro grilování či hřiště, je rovněž vhodná pro výstavbu dalšího obytného domu (informace o územním plánu – projektová příprava okresu Barnim je k dispozici).
Das gesamte Grundstück ist als lastenfrei zu bezeichnen.
-> Celý pozemek je bez jakýchkoli zátěží.
Das Grundstück ist nordöstlich von Berlin, verkehrsgünstig im Oderberger Ortsteil Neuendorf zu finden.
-> Pozemek se nachází severovýchodně od Berlína, dopravně výhodně v části Oderberg, konkrétně v Neuendorfu.
Neuendorf ist eingebettet in eine reizvolle Umgebung aus Feldern und Wäldern mit hohem Erholungswert.
-> Neuendorf je zasazen do malebného prostředí polí a lesů s vysokou rekreační hodnotou.
Ein unmittelbarer Zugang zur Natur mit Reit- und Wanderwegen (Misch- und Nadelwald) oder Naturbeobachtungen ist gegeben.
-> Zajištěn je přímý přístup do přírody s jezdeckými a turistickými stezkami (smíšený a jehličnatý les) či možnostmi přírodovědných pozorování.
Der Ortsteil beheimatet ca. 80 Einwohner. Es besteht eine intakte Nachbarschaft und Dorfgemeinschaft mit gegenseitiger Wertschätzung.
-> Tato část obce obývá přibližně 80 obyvatel. Panuje tu pevná sousedská a vesnická komunita se vzájemným respektem.
Das Biosphärenreservat Schorfheide-Chorin, der Naturpark Unteres Odertal und der drittgrößte natürliche See Brandenburgs - der Parsteiner See sind in direkter Nähe.
-> V bezprostřední blízkosti se nachází biosférická rezervace Schorfheide-Chorin, přírodní park Dolní odpadla a třetí největší přírodní jezero Braniborska – Parsteiner See.
Eine ÖPNV-Haltestelle ist nur 50 m entfernt mit Linien nach Angermünde, Bad Freienwalde und Eberswalde. Diese Mittelzentren sind in 20-30 min zu erreichen.
-> Veřejná dopravní zastávka je vzdálena pouze 50 m s linkami do Angermünde, Bad Freienwalde a Eberswalde. Tato střední města jsou dosažitelná za 20–30 minut.
Bildungseinrichtungen, Kita, Ärzte, Einkaufsmöglichkeiten findet man im Umkreis von 3 km.
-> V okruhu 3 km naleznete vzdělávací instituce, jesle, lékaře a obchody.
Es fallen für den Käufer keine zusätzlichen Maklerkosten an.
-> Kupující není zatížen žádnými dodatečnými makléřskými poplatky.
Bitte haben Sie dafür Verständnis, dass wir nur Anfragen mit Ihrem vollständigen Namen, der vollständigen Anschrift sowie Ihrer Telefonnummer annehmen können.
-> Prosíme o pochopení, že přijímáme pouze poptávky s uvedením vašeho úplného jména, úplné adresy a telefonního čísla.
Besichtigungstermine sind nach vorheriger telefonischer Absprache, in der Regel kurzfristig, möglich.
-> Prohlídky je možné domluvit telefonicky předem – obvykle se jedná o krátkodobé termíny.
Ansprechpartner: Jörg Hieronimus, Mobil: 0152-59597453
-> Kontaktní osoba: Jörg Hieronimus, mobil: 0152-59597453
Parametry nemovitosti
| Stáří | Nad 50 let |
|---|---|
| Stav | Po rekonstrukci |
| PENB | G - Mimořádně nehospodárná |
| Plocha pozemku | 1 568 m² |
| Cena za jednotku | 747 € / m2 |
| Dostupné od | 1. 5. 2026 |
|---|---|
| Číslo inzerátu | 1004457 |
| Užitná plocha | 368 m² |
| Celkem podlaží | 2 |
Co tato nemovitost nabízí?
| Sklep | |
| MHD 0 minut pěšky |
| Garáž | |
| Parkování | |
| Terasa |
V okolí nemovitosti najdete
Stále hledáte to pravé?
Nastavte si hlídacího psa. Nabídky vybrané na míru dostanete souhrnně 1× denně e-mailem. S Premium profilem máte k ruce hlídačů rovnou 5 a když se něco objeví, informují vás obratem.






















