Prodej domu • 303 m² bez realitkyLohstraße 12, , Bavorsko
Lohstraße 12, , BavorskoMHD 2 minuty pěšky • ParkováníNa adrese Lohstraße 12, 94469 Deggendorf, vzniká moderní bytový dům se v celku pěti kvalitně navrženými bytovými jednotkami dle energeticky úsporného standardu KfW-55. Městské náměstí je dosažitelné pěšky za 10 minut.
Novostavba spojuje současnou architekturu, promyšlené dispozice a udržitelný energetický koncept pro bydlení orientované na budoucnost. Světlé obývací a jídelní prostory, funkční členění místností a terasy, balkony nebo atraktivní podkrovní byty vytvářejí příjemné prostředí jak pro vlastní bydlení, tak pro investory do nemovitostí. Energeticky úsporná konstrukce zajišťuje nejen nízké provozní náklady, ale také dlouhodobou hodnotu nemovitosti.
Doplňuje ji nabídka carportů a venkovních parkovacích míst a klidná, avšak centrálně situovaná lokalita s dobrou dostupností do centra města a infrastruktury v Deggendorfu.
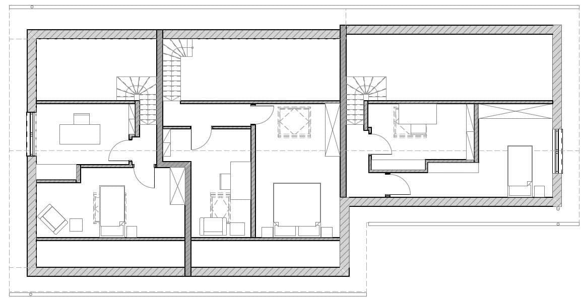
Byty jsou rozděleny následovně:
• Byt č. 1 – 2+kk byt – přízemí – 51,53 m² obytné plochy
• Byt č. 2 – 2+kk byt – přízemí – 34,46 m² obytné plochy
• Byt č. 3 – 4+kk byt – 1. a 2. patro – 73,79 m² obytné plochy
• Byt č. 4 – 3+kk byt – 1. a 2. patro – 63,03 m² obytné plochy
• Byt č. 5 – 4+kk byt – 1. a 2. patro – 79,88 m² obytné plochy
Byty je možné pronajmout za 14–16 € čistého nájmu měsíčně. Obě místa v carportu je možno pronajmout za 70 € za kus a pět venkovních parkovacích míst za 50 € měsíčně. Celkově tak měsíční nájemné dosahuje výše 4 781,03 €, což odpovídá hrubé výnosnosti z nájmu přibližně 3 %.
Na všech pět bytů již byly sjednány KfW půjčky z programu 296, s dobou splácení 11–25 let, s dobou bez splátek na začátku po dobu 1–3 let a s efektivní úrokovou sazbou 0,76 %. Tyto půjčky budou po dokončení stavebního projektu převedeny na kupujícího.
Ekonomika a kvalita lokality: Zavedená rezidenční oblast v ekonomicky stabilním univerzitním a okresním městě.
Centrální poloha / dopravní situace:
Dálniční přípojka – nedaleko se nachází dálnicový uzel Deggendorf (spojení A92 a A3).
Demografický vývoj a poptávka:
Zpráva o trhu s nemovitostmi ukazuje stabilní poptávku, zejména po obytných objektech a zastavěných pozemcích.
Cenový vývoj:
Ceny za metr čtvereční vlastních bytů v Deggendorfu mírně rostou.
Všechny byty budou vybaveny kvalitními dlaždicemi a špičkovou vinylovou podlahou. Každý byt disponuje vestavěnou kuchyní včetně elektrospotřebičů. Protože se vícebytový dům stále staví, může být vnitřní vybavení navíc individuálně přizpůsobeno.
Kupní cena je splatná až po úplném dokončení objektu.
Parametry nemovitosti
| Stáří | Nad 50 let |
|---|---|
| Stav | Novostavba |
| Užitná plocha | 303 m² |
| Celkem podlaží | 3 |
| Dostupné od | 1. 7. 2027 |
|---|---|
| Číslo inzerátu | 1004617 |
| Plocha pozemku | 510 m² |
| Cena za jednotku | 6 353 € / m2 |
Co tato nemovitost nabízí?
| Balkón | |
| Parkování | |
| Terasa |
| MHD 2 minuty pěšky |
V okolí nemovitosti najdete
Stále hledáte to pravé?
Nastavte si hlídacího psa. Nabídky vybrané na míru dostanete souhrnně 1× denně e-mailem. S Premium profilem máte k ruce hlídačů rovnou 5 a když se něco objeví, informují vás obratem.











