Prodej domu • 221 m² bez realitkyAm Giesenbach 14, , Bádensko-Württembersko
Am Giesenbach 14, , Bádensko-WürttemberskoMHD 3 minuty pěšky • ParkováníTento prostorný, masivně zkonstruovaný dům byl postaven kolem roku 1973 a v průběhu let byl kontinuálně modernizován. Díky četným rekonstruaním vyplývá fiktivní rok výstavby zhruba 1999. Nemovitost se nachází v klidné a příjemné obytné čtvrti Lahr-Reichenbach a zaujme promyšleným dispozicím a udržovaným celkovým stavem.
Dům nabízí široké možnosti využití:
Je ideální jako prostorný rodinný dům nebo jako dům pro více generací.
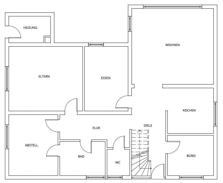
V přízemí se nachází prostorný a světlem zalitý obývací pokoj s připojenou kuchyní. Z obývacího pokoje se dostanete do nádherné zahrady. Dále se v přízemí nachází i hostinská toaleta, dvě ložnice a moderní koupelna.
V prvním patře se nachází další tři ložnice, koupelna a další velký obývací pokoj s připojenou kuchyní.
S malým úsilím se z domu dá vytvořit klenot.
Dům je vytápěn plynovým ústředním topením.
Energetický průkaz je momentálně ve zpracování.
Makléřské dotazy nejsou výslovně vítány a nebudou zodpovězeny.
Parametry nemovitosti
| Stáří | Nad 50 let |
|---|---|
| Číslo inzerátu | 1004651 |
| Plocha pozemku | 857 m² |
| Cena za jednotku | 1 943 € / m2 |
| Dostupné od | 5. 4. 2026 |
|---|---|
| Užitná plocha | 221 m² |
| Celkem podlaží | 2 |
Co tato nemovitost nabízí?
| Balkón | |
| MHD 3 minuty pěšky |
| Sklep | |
| Parkování | |
| Terasa |
V okolí nemovitosti najdete
Stále hledáte to pravé?
Nastavte si hlídacího psa. Nabídky vybrané na míru dostanete souhrnně 1× denně e-mailem. S Premium profilem máte k ruce hlídačů rovnou 5 a když se něco objeví, informují vás obratem.































