
Prodej domu 4+1 • 120 m² bez realitkyHintergasse 21, , Hessen
Hintergasse 21, , HessenMHD 3 minuty pěšky • ParkováníTento láskyplně modernizovaný rodinný dům v klidné a centrální lokalitě Riedstadt-Goddelau nabízí ideální životní prostředí pro všechny, kdo si zakládají na komfortu a harmonickém domově.
Dům, postavený v roce 1922, byl v roce 2018 důkladně zrenovován a energeticky modernizován. Nemovitost tak dnes spojuje jedinečný půvab historické budovy s požadavky na moderní bydlení – aniž by bylo třeba rozsáhlých rekonstrukcí.
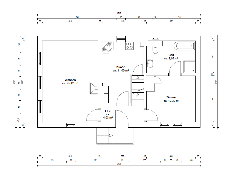
Na přibližně 120 m² obytné plochy jsou rozprostřena čtyři prostorně řešená pokoje, které nabízejí mnoho možností využití – ať už jako dětské pokoje nebo domácí kancelář. Světlý a promyšlený půdorys vytváří příjemnou atmosféru, ve které se celá rodina může rozvíjet.
Srdcem domu je útulný obývací pokoj s vlastním krbem. Kromě toho nabízí prostorný sklep mnoho místa pro zásoby nebo koníčky. Dachová přístavba byla navíc zrekonstruována, čímž vznikly dvě další místnosti, které lze využít jako úkryty pro děti nebo pracovní prostory.
Nemovitost se nachází v klidné rezidenční oblasti Riedstadt-Goddelau. Obchody s denními potřebami, školy, školky i lékaři jsou dosažitelní během několika minut. Dobré spojení s městskou hromadnou dopravou a blízkost nádraží (cca 10 minut pěšky) a dálnic zajišťují rychlou dostupnost okolních měst, jako jsou Darmstadt, Mainz a Frankfurt. Okolní příroda navíc vybízí ke procházkám a volnočasovým aktivitám.
Rodinný dům zaujme promyšleným uspořádáním místností s vysokými stropy. Zvláštní pozornost si zaslouží velký sklep, který poskytuje dostatek úložného prostoru pro domácí věci, zásoby nebo potřeby koníčků. Dům dále disponuje zrekonstruovanou střešní přístavbou, kde se nacházejí dvě další místnosti, jež lze flexibilně využít jako ložnice, pracovní či hobby místnosti. Moderní celkový stav a krb v obývacím pokoji doplňují atraktivní vybavení objektu.
Přesvědčte se sami při osobní prohlídce – těšíme se na Váš zájem!
V okolí nemovitosti najdete
Stále hledáte to pravé?
Nastavte si hlídacího psa. Nabídky vybrané na míru dostanete souhrnně 1× denně e-mailem. S Premium profilem máte k ruce hlídačů rovnou 5 a když se něco objeví, informují vás obratem.








