Pronájem bytu 2+1 • 119 m² bez realitky, Bavorsko
Tento čerstvě kompletně zrekonstruovaný 2-pokojový byt v přízemí (umístěný na svahu s jižní expozicí) domu EE70 (kompletně zrekonstruován v roce 2025, postaven v roce 1975) nabízí prvotřídní komfort bydlení o rozloze přibližně 119 m².
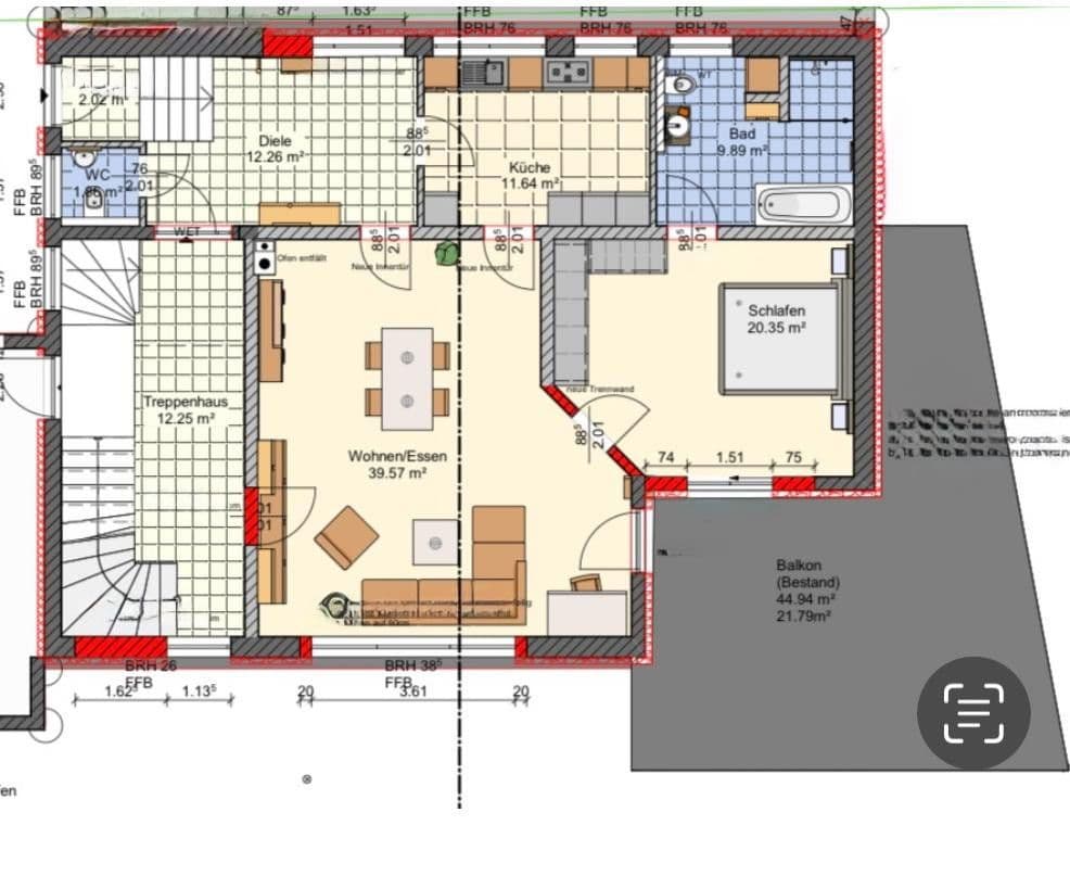
Sluncem zalitý, částečně zastřešený balkon směřující na jih (cca 45 m², z toho přibližně 22 m² přičitatelných k obytné ploše, přístupný ze dvou místností) rozšiřuje obytný prostor ven. Ten se nachází na jižní straně svahu.
Místnosti jsou velmi prostorné a díky velkým oknům krásně prosvětlené.
Byt je ideální pro jednotlivce nebo páry.
Nachází se v domě se 3 byty.
V suterénu se nachází obchodní jednotka / ordinace.
V přízemí a nadpatře se nachází vždy jeden nájemní byt.
Rozložení:
– 1 ložnice
– 1 velmi prostorný obývací/jídelní pokoj
– 1 kuchyň s vestavěnou kuchyňskou linkou
– 1 koupelna s vlastním vstupem (přístupná pouze z ložnice) s bezbariérovou otevřenou sprchou a vanou (nově zrekonstruována)
– 1 hostinská toaleta
– velký vstupní prostor s oddělenými dveřmi (schody)
– možný vstup přes zadní dvůr nebo skrze stávající garáž pomocí společného chodby
– cca 29 m² velká garáž s elektrickými vraty a připraveností pro e-nabíjecí stanici
– příjezd do dvořane před garáží jako další parkovací místo
Teplé nájemné včetně garáže a vestavěné kuchyně činí 1.590,00 €.
Byt se nachází centrálně na ulici Bahnhof, jen asi 2 minuty pěšky od nádraží. Obchody, gastronomické zařízení a příroda (řeka Rezat) jsou v bezprostřední blízkosti. Lokalita je klidná, přestože se nachází blízko nádraží – ideální pro ty, kdo hledají klid, a pro páry.
– Podlahové vytápění přes tepelné čerpadlo
– Trojitě zasklená okna
– Elektrické rolety
– Ohřev teplé vody pomocí průtokového ohřívače (nájemní elektřina)
– Zamykací systém
– Vestavěná svítidla v celém bytě
– Kvalitní vinylová podlaha a v koupelně kvalitní keramické dlaždice
– Bílé vnitřní dveře
– Řízené větrání a odvětrávání
– Vlastní garáž přímo před domem za 50 € měsíčně (s připraveností pro e-nabíjecí stanici)
– Vestavěná kuchyň včetně všech spotřebičů (bez lednice) za 50,00 € měsíčně
Věnujeme velkou pozornost odpovědným a spolehlivým nájemcům.
Byt je ideální pro jednotlivce nebo páry.
Domácí mazlíčci jsou možné po předchozí dohodě.
Podmínky:
Pevný příjem, nekuřácký byt, záznam v Schufa/nebo vyplněné nájemní sebeohodnocení
Pokud máte vážný zájem, těšíme se na Vaši zprávu.
V okolí nemovitosti najdete
Stále hledáte to pravé?
Nastavte si hlídacího psa. Nabídky vybrané na míru dostanete souhrnně 1× denně e-mailem. S Premium profilem máte k ruce hlídačů rovnou 5 a když se něco objeví, informují vás obratem.






















