Pronájem bytu 5+1 • 120 m² bez realitkyHamburg Rahlstedt Hamburg 22147
- ideální pro firmy a týmy zaměstnanců!
- 5-pokojový byt pro řemeslníky v Hamburku-Berne
- pro 4 nebo až 11 zaměstnanců
- byt je zcela zrekonstruovaný a čerstvě renovovaný
- plně zařízený nábytkem a kompletně NOVÝ vybavený
- byt se nachází v 8. patře
- s výtahem
- jihozápadní balkon o rozloze 11 m²
- doba nájmu je flexibilní
- výborné spojení přímo u stanice U1 Berne
- v klidné uličkové lokalitě
- parkovací místo v podzemní garáži
- mnoho veřejných parkovacích míst nebo bezplatné parkování přímo na ulici
Hledáte byt pro řemeslníky v centrální části Hamburku, který vašim zaměstnancům nabídne nejen místo k spánku, ale i komfort a odpočinek po práci?
Pak je náš čerstvě renovovaný a kompletně vybavený 5-pokojový byt v Hamburku-Berne přesně to pravé pro váš tým!
Zde řemeslníci po dlouhém pracovním dni najdou ten odpočinek a komfort, který si zaslouží.
TOP lokalita – centrálně a s vynikající dopravní dostupností:
Byt se nachází v klidné uličkové oblasti v Hamburku-Berne, přímo u stanice metra Berne (U1).
• 15 minut do centra Hamburku
• Několik supermarketů, mnoho restaurací, pekáren a týdenní trhy dosažitelné pěšky
• Zelené plochy, jako např. Berner Au nebo Volksdorfer Wald, lákají po práci k odpočinku
Přednosti ubytování:
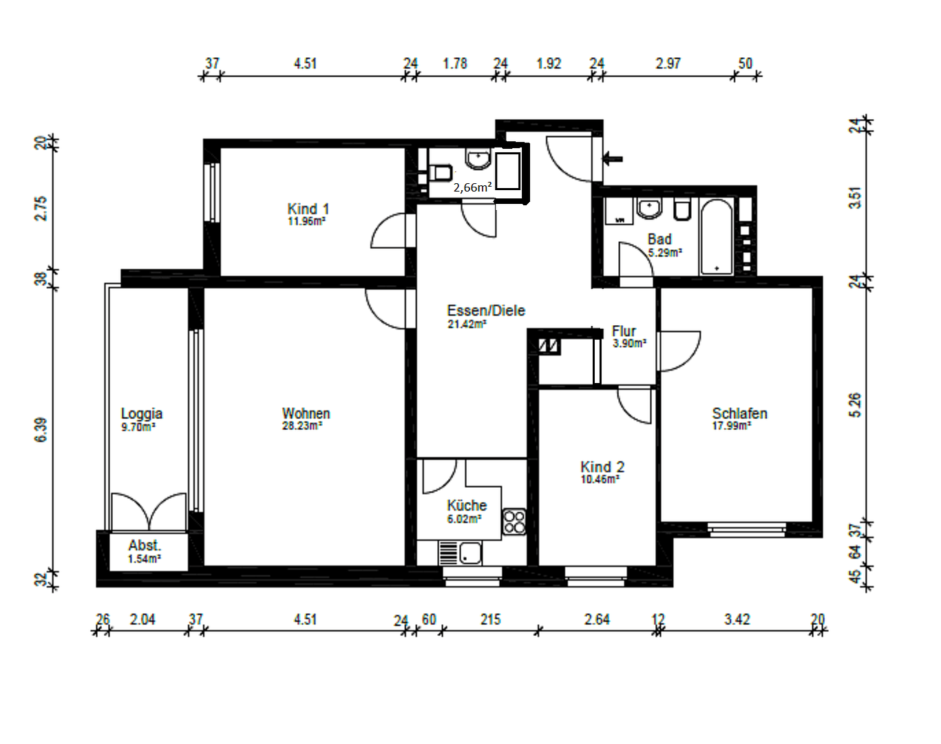
• cca 120 m² obytné plochy – světlý, prostorný a plně zařízený!
• Až 11 lůžek – ideální pro týmy, s dostatečným soukromím
• 4 moderně zařízené ložnice s pohodlnými postelemi,
• skříněmi a příborníky
• 2 čerstvě renovované koupelny s topnými sušiče ručníků
• 2 WC a 2 umyvadla
• Ručníky a ložní prádlo v ceně
• Plně vybavená kuchyň-obývací část
• Myčka nádobí
• 2 kombinované chladničky
• keramická varná deska
• Trouba a digestoř
• Mikrovlnná trouba
• Kávovar a konvice
• Kuchyňské náčiní a nádobí
• Útulný obývací a jídelní kout
• Smart TV
• Free WLAN (250 MBit)
• Pračka a sušička
• Úložný prostor a balkon
• Výtah
• Parkovací místo v podzemní garáži
• mnoho parkovacích míst přímo před domem
Podmínky:
• Měsíční kompletní nájemné od 4.500 EUR včetně všech poplatků, elektřiny, internetu až 6.500 EUR (v závislosti na obsazení a délce pronájmu)
• Ceny se liší podle délky nájmu a obsazenosti – cena je k jednání!
• Minimální doba nájmu: 6 měsíců
• Volný ihned!
• Byt se pronajímá jen celý!
• Obsazení: až 11 osob
• Nekouřící byt, bez domácích zvířat
• Kauce 10.000 EUR
Nyní se zeptejte a zajistěte si prohlídku!
PRONÁJEM upřednostňujeme výhradně firmám pro jejich zaměstnance a projektové týmy!
ŽÁDNÝ PRONÁJEM RODINÁM NEBO SOUKROMÝM OSOBÁM!
V okolí nemovitosti najdete
Stále hledáte to pravé?
Nastavte si hlídacího psa. Nabídky vybrané na míru dostanete souhrnně 1× denně e-mailem. S Premium profilem máte k ruce hlídačů rovnou 5 a když se něco objeví, informují vás obratem.















































