Prodej domu 6+kk • 137 m² bez realitkySchwabenweg, , Bádensko-Württembersko
Schwabenweg, , Bádensko-WürttemberskoMHD 1 minuta pěšky • Parkování***DEN OTEVŘENÉHO STAVENIŠTĚ DNĚ 24.04.2026 OD 13:00 DO 16:00 HOD.***
V novém, centrálně položeném stavebním území v Dettingen an der Iller se od jara 2026 postaví 11 moderních řadových dvojdomků a řadových středních domů.
Zvláštní kvalitativní znak tohoto novostavby je udržitelná stavební technika:
Všechny domy jsou postaveny podle standardu KfW-40 a budou certifikovány razítkem QNG-Plus. To zajišťuje energeticky efektivní bydlení, nízké provozní náklady a dlouhodobé zachování hodnoty nemovitosti. Navíc bude každý dům vybaven fotovoltaickou elektrárnou – další výhoda pro environmentálně uvědomělé a na budoucnost orientované bydlení.
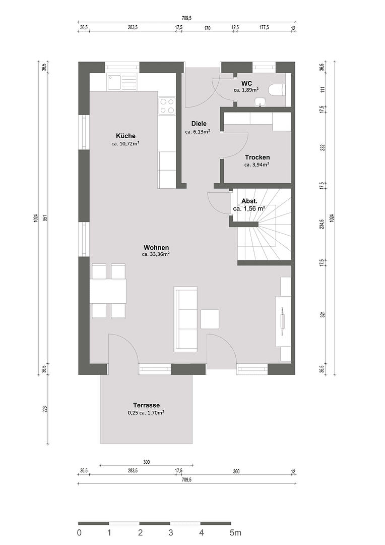
Obytné domy budou postaveny bez sklepa, avšak díky promyšlenému uspořádání s 4,5 až 6,5 obytnými místnostmi (v závislosti na zvolené doplňkové výbavě) a s odděleným úložným prostorem poskytují dostatek místa pro individuální životní koncepce. Ať už jako prostorný rodinný dům nebo jako moderní řešení pro kombinaci bydlení a práce pod jednou střechou – tyto domy nabízejí flexibilitu pro každou životní fázi.
Otevřený obytný a jídelní prostor tvoří srdce domu a zve k posezení. K dispozici máte soukromé zahrady a terasy – ideální pro relaxační chvíle venku.
Klidná poloha přímo uprostřed obce, kombinovaná s krátkými cestami ke všem důležitým zařízení, činí tento projekt obzvláště atraktivním řešením bydlení – jak pro rodiny s dětmi, tak pro páry nebo pracující.
Jestliže jsme vzbudili váš zájem, neváhejte nás kontaktovat. Těšíme se na váš dotaz.
V srdci Dettingen an der Iller, idylické obce v okrese Biberach (Baden-Württembersko), vzniká atraktivní nová stavební oblast, která bude od léta 2025 uvolněna k výstavbě. Centrální poloha území spojuje výhody venkovského klidu s vynikajícím spojením s regionální infrastrukturou.
Stavební území se nachází přímo v centru obce a je obklopeno zavedenou obytnou zástavbou a udržovanými zahradami. Obchodní možnosti pro každodenní potřeby, pekárna, mateřská škola i místní základní škola jsou dosažitelné pěšky během několika minut. Také sociální zařízení, hřiště a volnočasové možnosti jsou snadno dostupné, což lokalitu činí obzvláště atraktivní pro rodiny.
Dopravně výhodná poloha s připojením ke spolkové silnici a dálnici umožňuje rychlý přístup do měst Memmingen, Ulm a Biberach an der Riß. Veřejná doprava, například autobusové linky, je k dispozici a zajišťuje dobré spojení s regionální dopravní sítí.
Krajina podél řeky Iller zve k prodlouženým procházkám, cyklistickým výletům i túrám.
Přirozená poloha v kombinaci s živou vesnickou komunitou činí nové stavební území ideálním místem pro udržitelné a rodinně přívětivé bydlení.
Nejdůležitější základní údaje na první pohled:
- Standard KfW 40
- Certifikováno podle QNG-Plus
- Zateplená cihlová konstrukce
- Obytná plocha: 137 m²
- Pokoje: 6,5
- Vinylové podlahy a dlaždice
- Promyšlená dispozice s úložným prostorem
- Velký otevřený obytný/jídelní prostor
- Zařízený podkrovní prostor
- Vana a sprcha
- Garáž (volitelně)
Technické detaily:
- Trojitě zasklená plastová okna
- Vzduchové tepelné čerpadlo
- Podlahové vytápění
- Elektrické rolety
- Fotovoltaická elektrárna
- Bateriové úložiště (volitelné)
Možnost volitelného vybavení (příklad speciálních přání):
- Bateriové úložiště pro fotovoltaickou elektrárnu
- Samostatná garáž
Není zahrnuta výsadba travního osiva.
Plánované zahájení výstavby je na jaro 2026; plánované dokončení ve druhém čtvrtletí 2027.
***DEN OTEVŘENÉHO STAVENIŠTĚ DNĚ 24.04.2026 OD 13:00 DO 16:00 HOD.***
- Energetický štítek zatím neexistuje, protože se jedná o projekt nové výstavby.
- Těšíme se na váš dotaz.
Prosím, kontaktujte nás na čísle 08395 910769 0
Impresum
Max Wild GmbH
Leutkircher Straße 22
88450 Berkheim
Telefon: +49 8395 920-0
Fax: +49 8395 920-650
info@maxwild.com
www.maxwild.com
Zastupující jednatelé: Max Wild, Roland Wild, Elmar Wild, Jochen Wild, Christian Wild
Registrový soud: Okresní soud v Ulmu
Registrační číslo: HRB 640308
Identifikační číslo pro DPH dle § 27 a zákona o DPH:
DE 144891755
Upozornění na odpovědnost: Navzdory pečlivé kontrole obsahu nepřebíráme odpovědnost za obsah externích odkazů. Za obsah odkazovaných stránek odpovídají výhradně jejich provozovatelé.
https://www.maxwild.com/impressum/
V okolí nemovitosti najdete
Stále hledáte to pravé?
Nastavte si hlídacího psa. Nabídky vybrané na míru dostanete souhrnně 1× denně e-mailem. S Premium profilem máte k ruce hlídačů rovnou 5 a když se něco objeví, informují vás obratem.













