Prodej domu 6+1 • 220 m² bez realitky, Severní Porýní-Vestfálsko
FREIESLEBEN-IMMOBILIEN Vám představuje tento mnohoúčelový rodinný dům, rozdělený na tři samostatné byty, nacházející se v udržovaném okolí Recklinghausen Süd / König-Ludwig.
Rodinný dům byl postaven přibližně kolem roku 1900 v masivní konstrukci, plně zkosený a na samostatném pozemku o rozloze přibližně 360 m².
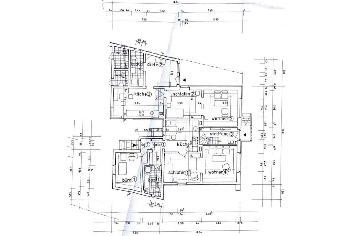
Nabízí přibližně 220 m² obytné plochy, rozdělené do dvou bytů v přízemí s přibližně 63 m² a 60 m² obytné plochy a jednoho bytu v podkroví o přibližně 97 m².
Již existuje plán dělení a pro každý z bytů je vyhotoven list vlastnictví. Jsou tedy již vytvořeny tři samostatné byty, které lze po akvizici využít k vlastnímu bydlení, pronajmout či i samostatně prodat.
Větší byt o rozloze přibližně 63 m² v přízemí nabízeného rodinného domu nabízí obývací pokoj, ložnici, kuchyň o velikosti přibližně 12 m², kancelář, sprchové WC, chodbu a předsíň.
Menší byt o rozloze přibližně 60 m² v přízemí nabízí obývací pokoj, ložnici, kuchyň o velikosti přibližně 16 m², chodbu o velikosti přibližně 11 m² a koupelnu s denním světlem.
Byt v podkroví nabízí přibližně 97 m² obytné plochy, rozdělené na obývací pokoj o velikosti přibližně 27 m², ložnici o velikosti přibližně 21 m², dětský pokoj o velikosti přibližně 23 m², kuchyň, koupelnu s denním světlem se stylovou rohovou vanou, prostornou chodbu a předsíň.
Všechny tři byty jsou přístupné z centrálním schodiště a mají samostatné vstupy.
V suterénu se nachází prádelna s topným zařízením a přípojkami, sušárna, tři samostatné sklepní místnosti, průchozí místnost a chodba.
Pro automobily jsou k dispozici tři parkovací stání.
Dům je vytápěn plynovým centrálním topením z roku 2015.
Aktuálně je dům prázdný.
V jižní části, přímo sousedícím, se nachází obytný a obchodní dům, který bude v dohledné době rovněž naším podnikem nabídnut k prodeji. Existuje tedy možnost pořídit si obě nemovitosti dohromady.
Chcete si dům hned prohlédnout?
Pošlete nám prosím poptávku prostřednictvím kontaktního formuláře nebo e-mailem na:
info@immobilienmakler12.de – budeme Vás ihned kontaktovat.
Písemné poptávky jsou zpracovávány výrazně rychleji než telefonické!
BEZ PROVIZE PRO KUPUJÍCÍHO
Atraktivní rodinný dům se nachází v udržovaném smíšeném území oblíbené části města Recklinghausen – čtvrti König-Ludwig.
V bezprostředním okolí se nacházejí školy, školky, lékaři, lékárny a možnosti nákupu základních potřeb.
Z pěší vzdálenosti je dosažitelné jižní koupaliště (venkovní a krytý bazén na Pappelallee) a procházky podél řeky Emscher lákají k volnočasovým aktivitám.
Autobusové zastávky dobře dostupné veřejnou dopravou jsou také dosažitelné pěšky.
Autem se dostanete do centra Recklinghausenu přibližně za 15 minut. Díky nedalekým dálnicím A43 a A2 jste výborně napojeni na města Porúří a Münsterlandu.
- Mnohoúčelový rodinný dům
- Přibližně 220 m² obytné plochy
- Již rozdělen na tři samostatné byty
- Rok výstavby přibližně 1900
- Masivní konstrukce
- Plně zkosený (se suterénem)
- Soukromý pozemek o přibližně 360 m²
- Samostatný vstup pro každý byt
- 3 parkovací stání
Toto je nezávazná nabídka společnosti
FREIESLEBEN GmbH,
Steinstraße 14
45657 Recklinghausen
Tel.: 02361 - 90 61 030
Internet: www.immobilienmakler12.de
eMail: info@immobilienmakler12.de
Můžete nás telefonicky kontaktovat od PONDĚLÍ do NEDELE
od 7:00 do 22:00. Víkendově Vám navíc nabízíme naše služby při ocenění nemovitosti, prohlídkách objektu a osobním setkání.
Ohledně tohoto objektu jsme závislí na informacích od vlastníků a úřadů. Za správnost a úplnost údajů nelze nést odpovědnost. Dále nelze za objekt převzít žádnou záruku a za platební schopnost smluvních partnerů také nebudeme ručit.
Chcete, aby byla Vaše nemovitost profesionálně zpropagována?
- Využijte naši bezplatnou službu a nechte ocenit aktuální hodnotu Vaší nemovitosti jedním z našich specialistů na nemovitosti.
- Zvýšíte šance na prodej Vaší nemovitosti, když pro Vás vytvoříme marketingový plán šitý na míru.
- Využijte naši vynikající celostátní síť, která Vám zajistí rychlý kontakt se zájemci. Stovky zájemců Vás již čekají!
Zavolejte nám, těšíme se na Vás!
Centrála Münsterland: Tel.: 0251 - 39 444 998
Centrála Ruhrgebiet: Tel.: 0234 - 92 56 98 00
V okolí nemovitosti najdete
Stále hledáte to pravé?
Nastavte si hlídacího psa. Nabídky vybrané na míru dostanete souhrnně 1× denně e-mailem. S Premium profilem máte k ruce hlídačů rovnou 5 a když se něco objeví, informují vás obratem.



















