
Prodej bytu 3+kk • 70 m² bez realitkyHlinsko - Chlum u Hlinska, Pardubický kraj
Hlinsko - Chlum u Hlinska, Pardubický krajMHD 4 minuty autem • Parkování • Terasa 20 m²Tato nemovitost již od 16 351 Kč měsíčně s roční úrokovou sazbou od 4,79 %.
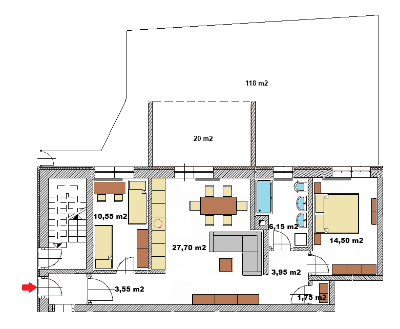
Prodej bytu dle plánu, 3+kk, viz plán.
Byt se nachází v klidné a tiché lokalitě.
Neprodáváme jen tak někomu. Hledáme rodinu s referencemi, tichou, zdvořilou, spolehlivou a milující přírodu a květiny.
Bydlíme také ve stejném domě. Nejsme Češi, jsme z Jižního Tyrolska.
Odhadovaná tržní cena: 4 200 000 Kč.
Prodejní cena: 3 900 000 Kč.
Cena dohodou.
Je cena stále příliš vysoká? Přijďte si to probrat.
Byt v rekonstrukci.
Předpokládané předání v roce 2026.
Pro více informací a podrobnosti nás prosím kontaktujte pouze po předchozí domluvě.
252 m2 komerční prostor:
(+ část společného pozemku)
- Byt č. 1, přízemí - 70 m2
- Terasa - 20 m2
- Zahrada - 118 m2
- Sklep - 9 m2
- 2 parkovací místa - 35 m2
Vytápění s tepelným čerpadlem, elektřinou a vodou z hlavního přívodu - vše nezávislé.
Komín o průměru 23 cm uprostřed obývacího pokoje s možností připojení kamen na dřevo.
Bezpečnostní vstupní dveře italské výroby.
Podlahy, dveře, okna a koupelnové doplňky – vše nové.
Byt je nezařízený.
V případě skutečného zájmu mě prosím kontaktujte. Žádné ztráty času. Děkuji.
Telefonické informace neposkytujeme.
Prosím, sjednejte si schůzku výhradně e-mailem nebo přes WhatsApp.
La Bottega – Potravinové speciality z Südtirol - Alto Adige
Parametry nemovitosti
| Dostupné od | 25. 3. 2026 |
|---|---|
| Konstrukce budovy | Cihla |
| Vybaveno | Nevybaveno |
| Číslo inzerátu | 1005337 |
| PENB | G - Mimořádně nehospodárná |
| Užitná plocha | 70 m² |
| Stav | V rekonstrukci |
|---|---|
| Dispozice | 3+kk |
| Podlaží | 1. podlaží z 2 |
| Vlastnictví | Družstevní |
| Umístění | Klidná část |
| Cena za jednotku | 55 714,29 Kč / m2 |
Co tato nemovitost nabízí?
| Bezbariérový přístup | |
| MHD 4 minuty autem |
| Předzahrádka 118 m² | |
| Parkování | |
| Terasa 20 m² |
V okolí nemovitosti najdete
Tato nemovitost již od 16 351 Kč měsíčně s roční úrokovou sazbou od 4,79 %.



