
Prodej bytu 4+1 • 93 m² bez realitkyHamburg Stellingen Hamburg 22527
Diese gepflegte, oberste Etagenwohnung wird als solide, lukrative und wertbeständige Kapitalanlage provisionsfrei verkauft und ist nach langjähriger Eigennutzung seit 2019 zuverlässig vermietet.
Tento udržovaný byt v nejvyšším patře se prodává bez provize jako solidní, lukrativní a hodnotu stabilní investice a je od roku 2019 spolehlivě pronajatý po dlouhém období vlastního užívání.
Das bestehende Mietverhältnis (Staffelmietvertrag) sorgt für planbare, steigende Mieteinnahmen.
Existující nájemní vztah (stupňovitá nájemní smlouva) zajišťuje předvídatelné, rostoucí příjmy z nájemného.
Die Wohnung befindet sich in einer sehr gepflegten Wohnanlage mit guter Bausubstanz auf einem großen Grundstück.
Byt se nachází ve velmi udržovaném obytném komplexu s kvalitní konstrukcí na rozsáhlém pozemku.
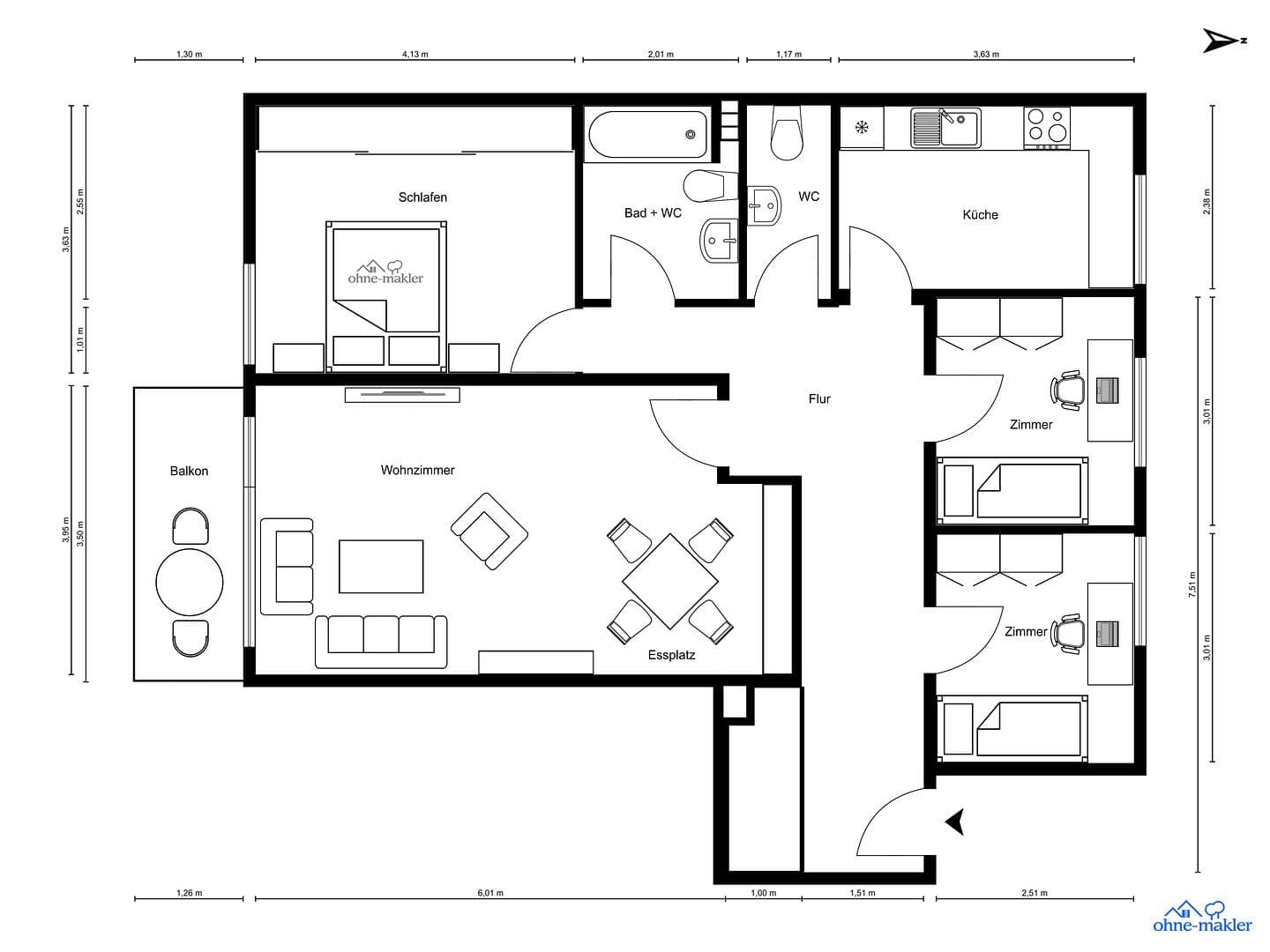
Sie hat einen Süd-Balkon mit breiter Markise.
K bytu náleží jižní balkon s širokým markýzem.
Der Fußboden in den Wohnräumen und im Flur ist einheitlich mit Multilayer Eiche Natur LHD neu ausgelegt und mit Sockelleisten HH-Profil umrandet.
Podlahy v obytných prostorech a chodbě byly kompletně znovu položeny z multilayer dubového dřeva v přirozeném odstínu (LHD) a orámovány soklovými lištami v HH-profilu.
Zur Wohnung gehört ein trockener Kellerraum mit 24 m2 Nutzfläche.
K bytu náleží suchá sklepení o užitné ploše 24 m².
Die Wohnanlage ist überwiegend von Eigentümern bewohnt.
Celý obytný komplex je převážně obýván majiteli.
Die Wandstärke des Mauerwerks beträgt 42 cm, dadurch kaum Wärmeverluste durch die Außenhülle.
Tloušťka zdí činí 42 cm, což způsobuje minimální únik tepla přes vnější obal budovy.
Energetisch ist die Wohnanlage in einem guten Zustand.
Z hlediska energetické náročnosti je obytný komplex v dobrém stavu.
Ein energetischer Sanierungsbedarf besteht nicht ( --> Energieklasse D).
Není nutná žádná energetická rekonstrukce ( --> energetická třída D).
Es gibt keinen Reparaturstau; kostenintensive Maßnahmen und evtl. Sonderumlagen stehen nicht bevor.
Není pozorován žádný neodložený stav oprav; nákladné zásahy ani mimořádné příspěvky nejsou plánovány.
Notwendige Maßnahmen wurden jeweils durchgeführt.
Všechny nezbytné zásahy byly řádně provedeny.
Die Rücklagen betragen 230.000.- EUR (Anteil Whg. = 5.635,- EUR) und sind ein gutes Polster für Instandhaltungen.
Rezervy činí 230.000 EUR (podíl bytu = 5.635 EUR) a představují solidní rezervu na údržbu.
Informationen für Kapitalanleger:
Informace pro investory:
Kaufpreis: 429.000.- € (4.612.- EUR/m²)
Kupní cena: 429.000 EUR (4.612 EUR/m²)
Baujahr 1972 Wohnfläche: 93 m²
Rok výstavby: 1972 Obytná plocha: 93 m²
Jahresnettokaltmiete: 15.720.- EUR vermietet seit 06/2019
Roční čisté nájemné: 15.720 EUR – pronajatý od 06/2019
Bruttorendite: 3,7 %
Hrubá návratnost: 3,7 %
Hausgeld gesamt: 296.- EUR (davon umlagefähig: 202,- EUR)
Celkové náklady na správu domu: 296 EUR (z toho přenositelných 202 EUR)
Mietsteigerungspotenzial: 420.- EUR p.a. (Staffelmietvertrag)
Potenciál zvyšování nájemného: 420 EUR ročně (dle stupňovité nájemní smlouvy)
Erlösanteil aus Garagen-/Stellplatzmiete: rd. 450.- EUR p.a.
Příjem z garážového/stání na auta: cca 450 EUR ročně
Rücklagen der WEG: 230.000,- EUR; davon für Eigentümer rd. 5.630,- EUR
Rezervy společenství vlastníků: 230.000 EUR; z toho pro jednotlivého vlastníka cca 5.630 EUR
Grundstücksgröße: 6.646 m²; davon Anteil der Wohnung: rd. 160 m²
Velikost pozemku: 6.646 m²; z toho podíl bytu cca 160 m²
Durchgeführte Instandhaltungen und Verbesserungen:
Provedené údržby a vylepšení:
1986 Fenster erneuert; 2001 Flachdach erneuert: 2004 neue Öl-Heizung
1986: obnova oken; 2001: obnova ploché střechy; 2004: nová topení na olej
2010 Fassade saniert (gereinigt, Klinker teils ersetzt, Gebäudefugen erneuert, Wände teils hydrophobiert)
2010: fasáda rekonstruována ( očištěna, obkladové cihly částečně vyměněny, fugi budovy obnoveny, stěny částečně hydrofobizovány)
Vordächer an 6 Hauseingängen neu eingedeckt mit Edelstahl
Nástiěny přístřešky u 6 vstupů do domu nově zakryty z nerezové oceli
Balkonsanierung im Innenbereich; u.a. Balkonboden gefliest
Rekonstrukce balkonu na vnitřní straně; mimo jiné dlaždicová podlaha balkonu
Grundstück mit Zaun eingefriedet, Gartentor erneuert
Pozemek oplocen, zahradní brána vyměněna
Mauerbrüstungen an Garageneinfahrt mit Edelstahlblechen abgedeckt
Nárazníky (parapety) u vjezdu do garáže zakryty nerezovými plechy
Mauern auf Pergola verkürzt, Umrandungen mit Edelstahlblechen abgedeckt
Zdi u pergoly překráteny, ohraničení zakryty nerezovými plechy
Pumpen an Drainagen erneuert; Abflüsse an Kelleraußentreppen erneuert,
Čerpadla u drenáží obnovena; odtoky u vnějších schodišť sklepení obměněny,
Türanlage eines Hauses erneuert; Haustürklingelanlage erneuert
Dveřní systém jednoho domu obnoven; domovní zvonkový systém vyměněn
Müllcontainerboxen erneuert (7 Stck.) für Mülltrennungskonzept
Kontejnerové boxy na odpad (7 ks) vyměněny pro koncept třídění odpadu
Fahrradständer erneuert mit Edelstahlbügeln (13 x)
Držáky na kola vyměněny za ty s nerezovými závěsy (13 ks)
2022 Erneuerung aller Armaturen an Wasserleitungsrohren im Kellerbereich
2022: Obnova všech armatur na vodovodních potrubích v oblasti sklepení
2022 Erneuerung aller Ventile und hydraulischer Abgleich an den Heißwasserleitungen
2022: Obnova všech ventilů a hydraulické vyrovnání u zásobování teplou vodou
2025 Malerarbeiten an Balkonen (Straßenseite)
2025: Malířské práce na balkonech (strana orientovaná ke ulici)
2024 Dichtheitsprüfung aller Abflussleitungen im Kellerboden
2024: Kontrola těsnosti všech odtokových potrubí v sklepním podlaží
2025 Sanierung defekter Schmutzwasserrohre; Dichtigkeitsnachweis bestätigt
2025: Rekonstrukce poškozených špinavých odpadních trubek; potvrzen důkaz těsnosti
Die Wohnung wird ausschließlich als Kapitalanlage verkauft. Sie ist zuverlässig vermietet.
Byt je prodáván výhradně jako investice a je spolehlivě pronajatý.
Die Wohnung befindet sich in einer gehobenen Wohnanlage mit 6 versetzt gebauten, zusammenhängenden Häusern auf einem großen Grundstück. Die Wohnstraße ist verkehrsberuhigt.
Byt se nachází v prestižním obytném komplexu, který tvoří 6 vzájemně posunutých, propojených domů na rozsáhlém pozemku. Ulice je zónou s omezeným provozem.
Das nahe Niendorfer Gehege und die Wiesen am Kollau-Wanderweg bieten Gelegenheit für Spaziergänge u.a. Der Tierpark Hagenbek ist in der Nähe.
V blízkosti se nachází přírodní areál Niendorf a louky podél turistické stezky Kollau, kde lze podnikat procházky mimo jiné. Nedaleko je také zoologická zahrada Hagenbek.
Verkehrsanbindung besteht über 2-Buslinien zur U-Bahn Hagenbek.
Doprava je zajištěna dvěma autobusovými linkami napojujícími se na metro Hagenbek.
Der BAB-Anschluss zur A7 in Stellingen liegt ganz in der Nähe. Die A7 verläuft unter dem Stellinger Deckel.
Přípojka na dálnici A7 v Stellingen je velmi blízko. Dálnice A7 prochází pod Stellinger Deckel.
Zwei Einkaufszentren (Eidelstedt und Niendorf/Tibarg) liegen ganz nah.
Dvě nákupní centra (Eidelstedt a Niendorf/Tibarg) jsou v bezprostřední blízkosti.
Zum Gemeinschaftseigentum gehören zwei gut ausgestattete Waschküchen mit Miele-Geräten sowie 5 Trockenräume.
Ke společnému majetku náleží dvě dobře vybavené prádelny s přístroji značky Miele a také 5 sušáren.
Hervorzuheben ist das 6.646 m² große Grundstück. Die Wohnung liegt somit abseits der Straße in die Gartenanlage eingebettet.
Je třeba zdůraznit rozlohu pozemku 6.646 m². Byt tak leží mimo hlavní ulici, zasazen přímo do zahradní části areálu.
Bei Interesse freuen wir uns über Ihre Kontaktaufnahme und stellen Ihnen gerne weitere Informationen zur Verfügung.
V případě zájmu nás neváhejte kontaktovat; rádi vám poskytneme další informace.
V okolí nemovitosti najdete
Stále hledáte to pravé?
Nastavte si hlídacího psa. Nabídky vybrané na míru dostanete souhrnně 1× denně e-mailem. S Premium profilem máte k ruce hlídačů rovnou 5 a když se něco objeví, informují vás obratem.
















