Prodej pozemku • 8724 m² bez realitkySonnblickstraße Böckstein Böckstein Salzburg 5645
Nový
Sonnblickstraße Böckstein Böckstein Salzburg 5645MHD 4 minuty pěškyCena3 800 000 €
Přeloženo pomocí AI
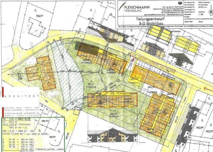
Kurzdaten
přibližně GFZ 1, GRZ 0,35
Venkovské jádro (vhodné pro bydlení, komerční využití – pronájem apod.)
přibližně 6 215 m² venkovského jádra
přibližně 1 386 m² čisté obytné zóny
přibližně 1 123 m² travnaté plochy
velmi dobrá infrastruktura
celodenně slunečno, nadmořská výška 1 100 m
předběžný návrh k dispozici (architekt Doringer)
vyjednatelná cena 3,8 milionu – možnost i částečných parcel!
Parametry nemovitosti
| Číslo inzerátu | 1005622 |
|---|---|
| Cena za jednotku | 436 € / m2 |
| Plocha pozemku | 8 724 m² |
|---|
Co tato nemovitost nabízí?
| MHD 4 minuty pěšky |
V okolí nemovitosti najdete
MHDBöckstein Sonnblick
🚶 300 m (4 min)
PoštaPost Filiale 5640
🚘 2 562 m (4 min)
ObchodBilla
🚘 1 231 m (2 min)
BankaOberbank
🚘 2 380 m (4 min)
RestauraceGasthof zur Post
🚶 748 m (9 min)
LékárnaKurapotheke
🚘 2 365 m (4 min)
ŠkolaVolksschule
🚘 2 436 m (4 min)
Mateřská škola
🚶 363 m (4 min)
SportovištěWalter Aichinger Sporthalle
🚘 2 459 m (5 min)
Hřiště
🚘 1 834 m (4 min)
Vzdálenost k:
Cena3 800 000 €
Stále hledáte to pravé?
Nastavte si hlídacího psa. Nabídky vybrané na míru dostanete souhrnně 1× denně e-mailem. S Premium profilem máte k ruce hlídačů rovnou 5 a když se něco objeví, informují vás obratem.
