
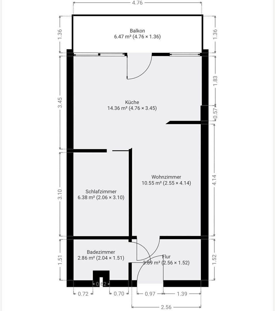
Prodej bytu 2+1 • 43 m² bez realitkyCoventrystraße 57 Frankfurt am Main Nied Hessen 65934
Coventrystraße 57 Frankfurt am Main Nied Hessen 65934MHD 3 minuty pěšky • Výtah • ParkováníNa prodej je čerstvě zrekonstruovaný 2-pokojový byt v udržovaném bytovém domě z roku 1971 ve Frankfurt-Nied.
Byt zaujme svou kompaktní a dobře pronajímatelnou velikostí cca 43 m², promyšleným uspořádáním místností a stabilními příjmy z pronájmu. Díky již existujícímu nájemnímu vztahu se tento objekt ideálně hodí pro investory, kteří chtějí okamžitě generovat příjmy.
K nabídce patří také parkovací místo v krytém stání (dalších 10 000), což dále zvyšuje atraktivitu pro nájemce.
Ekonomika / Výnosnost:
– Základní nájemné: 850 € / měsíc
– Roční základní nájemné: 10 200 €
– Správcovský poplatek: 351 € / měsíc
z toho: přičitatelných 235 €
a nepřičitatelných 116 €
Kupní ceny:
– Byt: 169 000 €
– Kryté parkovací místo: 10 000 €
Celková kupní cena: 179 000 €
Hrubá návratnost: cca 5,7 % – 6 %
Spolehlivá investice se stabilním cash flow a potenciálem rozvoje.
Hlavní údaje na první pohled:
• Rok výstavby: 1971
• Obytná plocha: cca 43 m²
• Pokoje: 2
• Stav: čerstvě zrekonstruován
• Pronajato: ano
• Parkovací místo: kryté stání (odděleně)
Byt se nachází v oblíbené čtvrti Frankfurt-Nied, vyhledávané oblasti s velmi dobrou infrastrukturou.
Okolí nabízí:
• Možnosti nakupování v bezprostřední blízkosti
• Dobré spojení s veřejnou dopravou
• Rychlou dostupnost frankfurtského centra
• Blízkost k průmyslovým a obchodním zónám (vysoká poptávka po pronájmu)
Obzvláště atraktivní pro dojíždějící a pracovní obyvatele – stabilní obsazenost zaručena.
Byt nabízí:
• Světlé a příjemné místnosti
• Funkční dispozici 2-pokojového bytu
• Modernizované vybavení po rekonstrukci
• Koupelnu s moderním vybavením
• Nenáročné podlahové krytiny
• K dispozici sklepní kóji
• Vestavěnou kuchyň s kompletním vybavením
• Kryté parkovací místo
Tato nemovitost je vynikající volbou pro investory hledající spolehlivou a dlouhodobou investici v ekonomicky silném regionu.
Prohlídka je možná v krátkém termínu. Rádi Vám poskytneme další podklady.
Makléřské kontakty nejsou vítány!
Podle § 7 UWG je nevyžádané kontaktování makléři bez výslovného souhlasu příjemce zakázáno!
V okolí nemovitosti najdete
Stále hledáte to pravé?
Nastavte si hlídacího psa. Nabídky vybrané na míru dostanete souhrnně 1× denně e-mailem. S Premium profilem máte k ruce hlídačů rovnou 5 a když se něco objeví, informují vás obratem.







